Prodej výrobních prostor, Bohumín, Šunychelská, 1082 m2 (ID: 2034278)

Šunychelská, Bohumín, Šunychl

15 900 000 Kč
/za nemovitost
včetně poplatků, včetně provize, včetně právního servisu
Hypotéka od 71 063 Kč /měs. Chci hypotéku

Parametry nemovitosti

AdresaŠunychelská, Bohumín, Šunychl
ID00053
StavbaCihlová
Stav objektuDobrý
VybavenoNe
Lokalita objektuOkraj obce
Užitná plocha1082 m2
Zastavěná plocha925 m2
Třída energetické náročnostiG - Mimořádně nehospodárná
Elektřina230V, 400V
PlynPlynovod
OdpadSeptik
KomunikaceAsfaltová
TelekomunikaceInternet
DopravaVlak, Dálnice, Silnice, MHD, Autobus
VodaMístní zdroj vody
Zdroj topeníPlynový kotel
Zdroj teplé vodyPlynový kotel
Garáž
Výtah
Bezbarierový přístup
Parkování

Origo partneři v Bohumíně

Popis

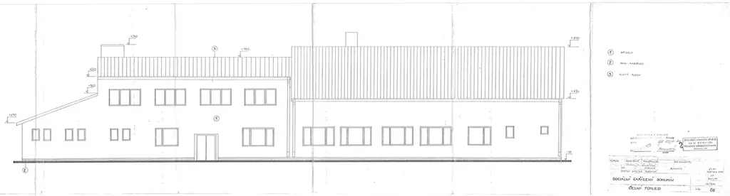
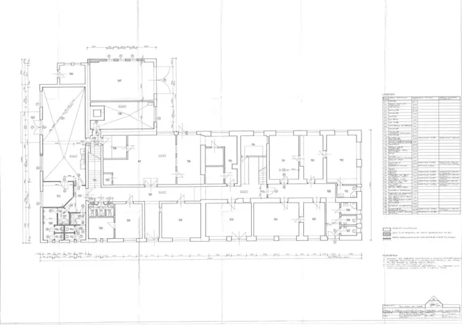
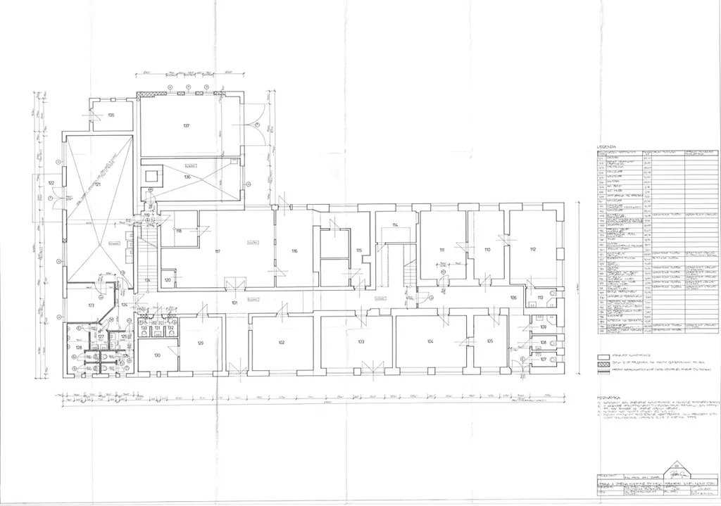
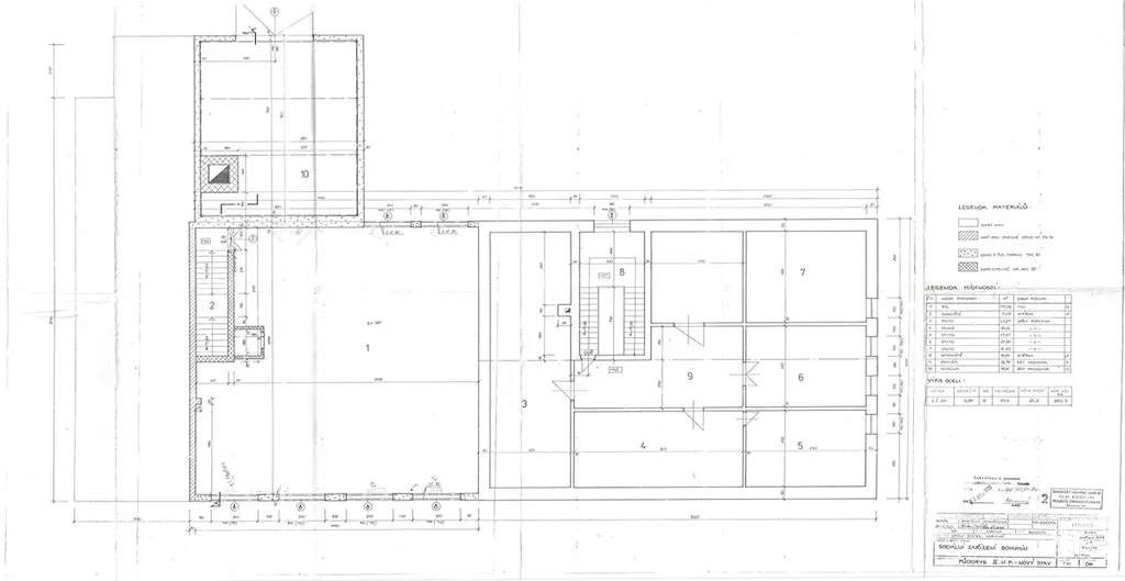
Exkluzivní prodej komerčního objektu s rozlehlým pozemkem v atraktivní podnikatelské lokalitě na ulici Šunychelská v Bohumíně v okrese Karviná. Nemovitost se nachází přímo u sjezdu z dálnice D1 (exit 372), pouhé 4 km od hranic s Polskem a 10 km od Ostravy. Strategická poloha zajišťuje vynikající dostupnost v rámci ČR i Polska, což ji činí ideální volbou pro podnikatele a firmy hledající prostory pro další rozvoj. Objekt byl původně postaven v letech 1979–1980 jako administrativní budova pro vedení Státního Statku Bohumín. V roce 2000 prošel rozsáhlou rekonstrukcí, která zahrnovala přeměnu části přízemí a patra na moderní GASTROCENTRUM s potravinářským provozem, výrobními prostory, prodejnou a společenským sálem. Sál je i dnes využíván pro plesy, oslavy a jiné společenské akce. Budovy nabízejí široké možnosti využití – lze je rekonstruovat a přizpůsobit specifickým potřebám podnikání nebo zcela přestavět a vybudovat moderní provoz odpovídající současným standardům podnikání. Celková plocha pozemku činí 4 376 m², z čehož zastavěná plocha je 925 m² a volná plocha 3 451 m². Rovinatý pozemek spadá do zóny V-3, která je určena pro lehkou výrobu a skladování. Maximální koeficient zastavění je 0,6 a výšková hladina budov může dosahovat až 12 m nad terénem. Budovy nabízejí užitnou plochu 604 m² v přízemí a 479 m² v patře. Technické zázemí zahrnuje hlavní jistič s kapacitou 160 A, kotelnu o výkonu 2x50 kW a dostatečné zpevněné plochy pro parkování nebo manipulaci. Tato nemovitost představuje jedinečnou příležitost pro firmy, které chtějí využít její výborné dopravní napojení, flexibilitu a potenciál pro rozvoj podnikání. Perfektní pro polské firmy expandující do ČR nebo firmy hledající prostor pro výrobu, skladování či další podnikatelské aktivity. Neváhejte a domluvte si prohlídku ještě dnes – tato nabídka je připravena pro vaše podnikatelské plány.

Makléř

Máte zájem o tuto nemovistost?

Tímto, v souladu s nařízením Evropského parlamentu a Rady (EU) 2016/679, v platném znění, prohlašuji, že mi je alespoň 16 let a uděluji tak svůj souhlas se zpracováním zadaných údajů (jméno, telefon, e-mail, ip adresa) společnosti B3 Technology, s.r.o., IČ: 07330600, se sídlem Novostavby 126/23, 435 11 Lom (správce dat), za účelem předání dotazu z tohoto formuláře Vámi vybranému inzerentovi a zpětného kontaktování mé osoby. Osobní údaje bude správce zpracovávat manuálně i automaticky přímo prostřednictvím svých zaměstnanců. Informace předané tímto formulářem budou uloženy v databázi správce maximálně po dobu 10 let. Odvolání souhlasu s uložením a zpracováním poskytnutých dat lze e-mailem na info@origo-reality.cz. V případě podezření na neoprávněné použití Vámi poskytnutých údajů máte právo předat podnět k šetření Úřadu pro ochranu osobních údajů. Více informací
Chystáte se prodat nemovitost?
Pomůžeme Vám!

Přihlášení k odběru

Nenechte si ujít nejnovější nabídky prodeje výrobních prostor v Bohumíně.