Pronájem bytu 2+kk, Praha - Háje, Loosova, 54 m2

Loosova, Praha, Háje

22 000 Kč
/za měsíc
zálohy na služby 4000,-Kč + 1000,-Kč elektřina, včetně garážového stání a sklepa
Získejte výhodnou HYPOTÉKU Chci hypotéku

Parametry bytu

AdresaLoosova, Praha, Háje
ID137
StavbaCihlová
Stav objektuNovostavba
Patro3. z 3
VybavenoNe
VlastnictvíOsobní
Užitná plocha54 m2
Podlahová plocha54 m2
Třída energetické náročnostiB - Velmi úsporná
Elektřina230V
OdpadVeřejná kanalizace
TopeníÚstřední dálkové
KomunikaceAsfaltová
TelekomunikaceInternet, Kabelová televize
DopravaDálnice, Silnice, MHD, Autobus
VodaVodovod
Topné tělesoRadiátory
Garáž
Sklep
Terasa
Bezbarierový přístup
Parkování

Origo partneři v Praze 4

Stěhovací služby

Výkup a prodej starého nábytku

Popis

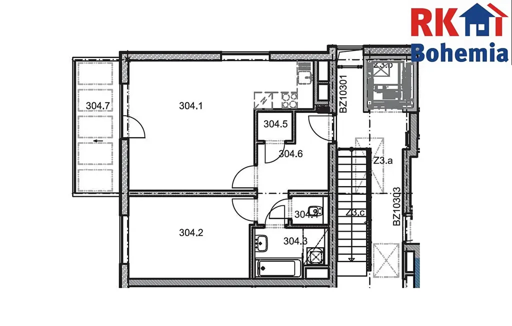
Exkluzivě - v zastoupení majitele zprostředkujeme možný dlouhodobý pronájem prostorného, světlého bytu 2kk o rozloze 52m2, + balkón 8m2, situovaný ve 3. nadzemním podlaží třípodlažní cihlové novostavby s výtahem ve vyhledávané lokalitě Milíčovský háj, nedaleko metra C - Háje, v Loosově ulici, Praha 4 - Háje.

Byt sestává z obývacího pokoje s kuchyňským koutem (25m2) se vstupem na prostorným balkón, a ložnice 13m2. Koupelny s vanou a samostatné toalety. K bytu garážové stání a sklep v ceně nájmu. Byt se pronajímá nezařízený.

Kuchyňský kout je vybavený moderní kuchyňskou linkou s vestavěnými spotřebiči, sklokeramická varná deska, elektrická trouba, mikrovlnná trouba, velká myčka nádobí a lednice s mrazákem.

Z obývacího pokoje lze vyjít na velmi prostorný balkon s pěkným výhledem do Milíčovského lesa. Ve vstupní chodbě šatní skříň.

Podlahy v bytě jsou plovoucí, v koupelně a předsíni dlažba. V bytě je zavedeno kabelové připojení internetu a televizi od společnosti Kabelservis.

Celý byt je velice světlý, a to díky velkým dřevěným oknům s trojsky na západ. Okna mají žaluzie a sítě proti hmyzu.

Energetická náročnost budovy podle PENB je ve třídě B.

Dům je má vlastní zahradu, hřiště a kout na grilování. Lze volně využívat.

Byt je umístěn v novostavbě z roku 2014. Dům se nachází ve výhodné a poptávané lokalitě s veškerou potřebnou občanskou vybaveností nedaleko jsou obchodní centrum Westfield, supermarkety, školky, školy, restaurace, kavárny, hřiště, obchody. Okolí skýtá spoustu možností trávení volného času, například v oblíbeném blízkém lese či v rekreačně sportovním areálu Hostivařské přehrady nebo Aquapalace v nedalekých Čestlicích.

Výborná dopravní obslužnost: MHD: 1 minutu pěšky od domu se nachází zastávka busu MHD a 8 minut pěšky je to na metro C - Háje. Vynikající je rovněž spojení autem, kterým se lze velmi snadno napojit na D1, Jižní spojku a jejím prostřednictvím na městský okruh a blízké výpadovky.

Makléř

Máte zájem o tento byt?

Tímto, v souladu s nařízením Evropského parlamentu a Rady (EU) 2016/679, v platném znění, prohlašuji, že mi je alespoň 16 let a uděluji tak svůj souhlas se zpracováním zadaných údajů (jméno, telefon, e-mail, ip adresa) společnosti B3 Technology, s.r.o., IČ: 07330600, se sídlem Novostavby 126/23, 435 11 Lom (správce dat), za účelem předání dotazu z tohoto formuláře Vámi vybranému inzerentovi a zpětného kontaktování mé osoby. Osobní údaje bude správce zpracovávat manuálně i automaticky přímo prostřednictvím svých zaměstnanců. Informace předané tímto formulářem budou uloženy v databázi správce maximálně po dobu 10 let. Odvolání souhlasu s uložením a zpracováním poskytnutých dat lze e-mailem na info@origo-reality.cz. V případě podezření na neoprávněné použití Vámi poskytnutých údajů máte právo předat podnět k šetření Úřadu pro ochranu osobních údajů. Více informací
Chystáte se prodat nemovitost?
Pomůžeme Vám!