Soccer reality

Pronájem bytu 1+kk, Praha, 34 m2 (ID: 2034044)

Praha 9

20 000 Kč
/za měsíc
poplatky 3.073Kč, kauce 20.000Kč
Získejte výhodnou HYPOTÉKU Chci hypotéku

Parametry bytu

AdresaPraha 9
ID938608
StavbaPanelová
Stav objektuVelmi dobrý
VybavenoČástečně
Lokalita objektuKlidná část obce
VlastnictvíOsobní
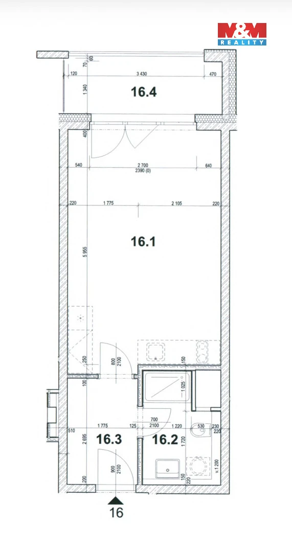
Užitná plocha34 m2
Lodžie

Origo partneři v Praze 9

Stěhovací služby

Výkup a prodej starého nábytku

Popis

Nabízíme k pronájmu moderní byt o dispozici 1+kk s lodžií, v novostavbě v atraktivním projektu Harfa Living.
Byt o celkové ploše 34,9 m² zaujme především praktickým dispozičním řešením a důrazem na kvalitu provedení. Obytný prostor je vybaven rohovou kuchyňskou linkou se spotřebiči a nabízí dostatek místa pro komfortní bydlení.
V předsíni se nachází vestavěná šatní skříň zajišťující dostatek úložného prostoru.
Velkou předností bytu je prostorná lodžie(5,4m²) orientovaná do klidného vnitrobloku, která poskytuje skvělou možnost relaxace.
K bytu náleží sklepní kóje(5m²).
Lokalita Vysočan patří mezi dynamicky se rozvíjející části Prahy a nabízí kompletní občanskou vybavenost i výbornou dopravní dostupnost. V bezprostřední blízkosti se nachází zastávky MHD, vlakové nádraží i stanice metra. V okolí najdete také parky, cyklostezky a obchodní centra.
Luxusní byt v presižní ulici na vás čeká, rezervujte si prohlídku!

Makléř

Máte zájem o tento byt?

Tímto, v souladu s nařízením Evropského parlamentu a Rady (EU) 2016/679, v platném znění, prohlašuji, že mi je alespoň 16 let a uděluji tak svůj souhlas se zpracováním zadaných údajů (jméno, telefon, e-mail, ip adresa) společnosti B3 Technology, s.r.o., IČ: 07330600, se sídlem Novostavby 126/23, 435 11 Lom (správce dat), za účelem předání dotazu z tohoto formuláře Vámi vybranému inzerentovi a zpětného kontaktování mé osoby. Osobní údaje bude správce zpracovávat manuálně i automaticky přímo prostřednictvím svých zaměstnanců. Informace předané tímto formulářem budou uloženy v databázi správce maximálně po dobu 10 let. Odvolání souhlasu s uložením a zpracováním poskytnutých dat lze e-mailem na info@origo-reality.cz. V případě podezření na neoprávněné použití Vámi poskytnutých údajů máte právo předat podnět k šetření Úřadu pro ochranu osobních údajů. Více informací
Chystáte se prodat nemovitost?
Pomůžeme Vám!