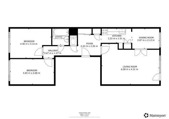
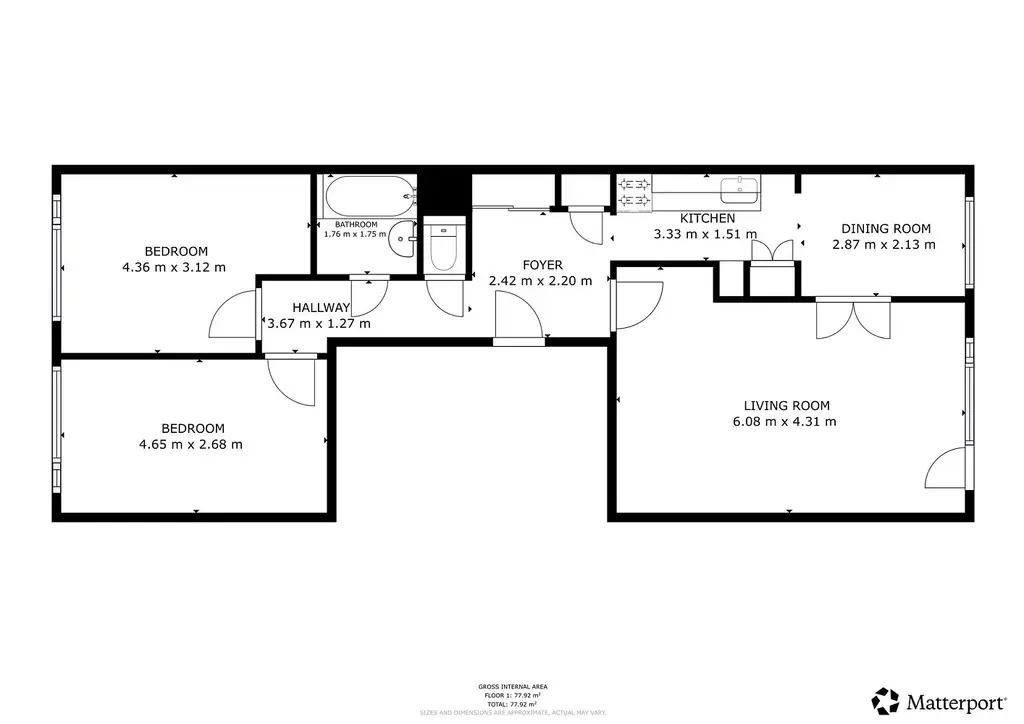
Prodej bytu 3+1, Praha - Bohnice, Toruňská, 81 m2 (ID: 2033857)

Toruňská, Praha 8 - Bohnice

9 490 000 Kč

včetně provize RK
Hypotéka od 42 415 Kč /měs. Chci hypotéku

Parametry bytu

AdresaToruňská, Praha 8 - Bohnice
ID100540
StavbaPanelová
Stav objektuDobrý
VybavenoNe
VlastnictvíOsobní
Užitná plocha81 m2
Třída energetické náročnostiD - Méně úsporná
Ukazatel energetické náročnosti176 kWh/m2 za rok

Origo partneři v Praze 8

Stěhovací služby

Výkup a prodej starého nábytku

Popis

Představte si místo, kde ráno otevřete okno a místo dalšího domu vidíte zeleň. Kde děti vyrůstají v klidném prostředí, ale vy to máte všude blízko.

Tento byt o dispozici 3+1 a výměře 81 m² se nachází v 8. nadzemním podlaží panelového domu v ulici Toruňská. Díky vyššímu patru působí světlým a otevřeným dojmem, nabízí soukromí a příjemný odstup od ruchu města.

Z ložnice a dětského pokoje je krásný výhled do zeleně lesoparku – prostor, světlo a pocit volnosti. Zasklená lodžie po celé šířce bytu je dalším nadstandardním benefitem

Byt má zděné jádro a je připraven k finální rekonstrukci. To znamená jediné – můžete vytvořit domov přesně podle potřeb své rodiny. Navíc jednoduchou úpravou lze změnit dispozici na 4+1 a získat další pokoj pro druhé dítě nebo pracovnu.

Okolí domu je pro rodinný život ideální:

* školy a školky v docházkové vzdálenosti
* dětská hřiště přímo v okolí
* Lidl a další služby pár minut od domu
* metro C Kobylisy cca 10 minut
* rychlé napojení na D8 do 10 minut

Kombinace zeleně, klidného prostředí a skvělé dopravní dostupnosti dává tomuto bytu to nejdůležitější – potenciál stát se skutečným rodinným domovem na mnoho let.

Velkou výhodou je parkování v bezprostřední blízkosti domu, dostatek zeleně v okolí a několik dětských hřišť, které ocení především rodiny s dětmi.

K této nabídce máme připravenou kompletní dokumentaci, kterou vám rádi představíme ještě před prohlídkou.

Navíc se můžete projít bytem pomocí virtuální prohlídky z pohodlí vašeho domova.

Pokud hledáte prostor s potenciálem, přijďte se podívat osobně.

Makléř

Máte zájem o tento byt?

Tímto, v souladu s nařízením Evropského parlamentu a Rady (EU) 2016/679, v platném znění, prohlašuji, že mi je alespoň 16 let a uděluji tak svůj souhlas se zpracováním zadaných údajů (jméno, telefon, e-mail, ip adresa) společnosti B3 Technology, s.r.o., IČ: 07330600, se sídlem Novostavby 126/23, 435 11 Lom (správce dat), za účelem předání dotazu z tohoto formuláře Vámi vybranému inzerentovi a zpětného kontaktování mé osoby. Osobní údaje bude správce zpracovávat manuálně i automaticky přímo prostřednictvím svých zaměstnanců. Informace předané tímto formulářem budou uloženy v databázi správce maximálně po dobu 10 let. Odvolání souhlasu s uložením a zpracováním poskytnutých dat lze e-mailem na info@origo-reality.cz. V případě podezření na neoprávněné použití Vámi poskytnutých údajů máte právo předat podnět k šetření Úřadu pro ochranu osobních údajů. Více informací
Chystáte se prodat nemovitost?
Pomůžeme Vám!

Přihlášení k odběru

Nenechte si ujít nejnovější nabídky prodeje bytů 3+1 v Praze 8.