Pronájem bytu 2+kk, Praha - Smíchov, Radlická, 45 m2 (ID: 2032655)

Radlická, Praha, Smíchov

14 990 Kč
/za měsíc
Získejte výhodnou HYPOTÉKU Chci hypotéku

Parametry bytu

Náklady na bydlení2000,-Kč za teplo, teplou vodu a služby
AdresaRadlická, Praha, Smíchov
StavbaCihlová
Stav objektuVelmi dobrý
Patro2.
VybavenoNe
VlastnictvíOsobní
Užitná plocha45 m2
Výtah

Origo partneři v Praze 5

Stěhovací služby

Výkup a prodej starého nábytku

Popis

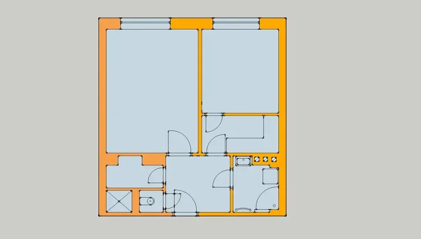
Nabízíme k pronájmu hezký, nezařízený, udržovaný byt 2+kk, 45 m2, Radlická ulice, Praha 5, Smíchov. Byt se nachází ve druhém podlaží cihlového domu s výtahem. V bytě jsou dva neprůchozí pokoje, vstupní chodba, koupelna, samostatné WC a komora. Kuchyň je oddělena od jednoho z pokojů stěnou s dveřmi. V koupelně je sprchový kout, umyvadlo a místo pro pračku. Na podlaze je PVC a dlažba. Topení a ohřev vody je centrální.
Jedná se o lokalitu s veškerou občanskou vybaveností, v pěší dostupnosti na metro Anděl nebo lze využít tramvajovou dopravu. Byt bude nově vymalovaný a připravený k nastěhování od 1. května. Vhodné k dlouhodobému pronájmu. Srdečně vás zveme na prohlídku.
Nájem 15.000,-Kč
Záloha na služby včetně vytápění a teplé vody 2.000,-Kč
Elektřina bude převedena na nájemce ( cca 800,-Kč )
Kauce 30.000,-Kč
Provize 18.000,-Kč

Makléř

Máte zájem o tento byt?

Tímto, v souladu s nařízením Evropského parlamentu a Rady (EU) 2016/679, v platném znění, prohlašuji, že mi je alespoň 16 let a uděluji tak svůj souhlas se zpracováním zadaných údajů (jméno, telefon, e-mail, ip adresa) společnosti B3 Technology, s.r.o., IČ: 07330600, se sídlem Novostavby 126/23, 435 11 Lom (správce dat), za účelem předání dotazu z tohoto formuláře Vámi vybranému inzerentovi a zpětného kontaktování mé osoby. Osobní údaje bude správce zpracovávat manuálně i automaticky přímo prostřednictvím svých zaměstnanců. Informace předané tímto formulářem budou uloženy v databázi správce maximálně po dobu 10 let. Odvolání souhlasu s uložením a zpracováním poskytnutých dat lze e-mailem na info@origo-reality.cz. V případě podezření na neoprávněné použití Vámi poskytnutých údajů máte právo předat podnět k šetření Úřadu pro ochranu osobních údajů. Více informací
Chystáte se prodat nemovitost?
Pomůžeme Vám!