Pronájem bytu 5+1, Praha - Smíchov, Štefánikova, 168 m2 (ID: 2032316)

Štefánikova, Praha, Smíchov

60 000 Kč
/za měsíc
Poplatky za služby a energie se hradí zvlášť
Získejte výhodnou HYPOTÉKU Chci hypotéku

Parametry bytu

AdresaŠtefánikova, Praha, Smíchov
ID980317
StavbaCihlová
Stav objektuVelmi dobrý
Patro5.
VybavenoNe
VlastnictvíOsobní
Užitná plocha168 m2
Podlahová plocha168 m2
Třída energetické náročnostiG - Mimořádně nehospodárná
Elektřina230V
PlynPlynovod
TelekomunikaceTelefon
DopravaSilnice, MHD
VodaVodovod
Balkon
Garáž
Terasa
Výtah

Origo partneři v Praze 5

Stěhovací služby

Výkup a prodej starého nábytku

Popis

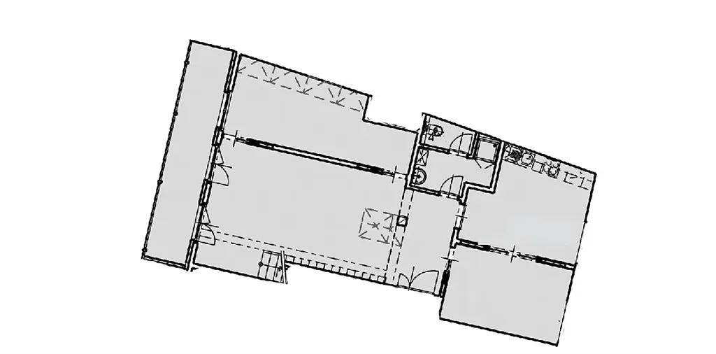
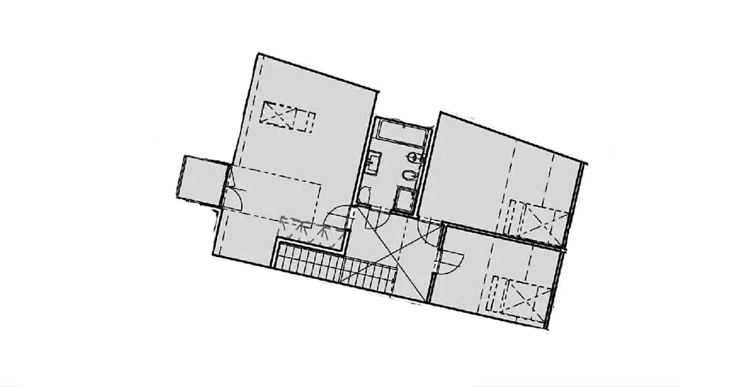
Prostorný, klimatizovaný podkrovní mezonet 5+1 ( 4 ložnice, 2 koupelny), o celkové rozloze 168,43 m2, s terasou a balkonem se nachází na 4. a 5. NP rezidenčního domu s výtahem na Praze 5 Smíchov, ulice Štefánikova.
Byt nabízí v dolní částí bytu vstupní chodbu, prostorný světlý obývací pokoj se vstupem na terasu, dále samostatnou kuchyň plně vybavenou vestavěnými spotřebiči (trouba, sporák, lednice, myčka, mikrovlnka, digestoř) s jídelní částí, dále ložnici a koupelnu se sprchovým koutem a toaletou. V horním podlaží jsou situované další 3 ložnice (jedna z ložnic disponuje balkonem) a druhá koupelna s vanou, bidetem a toaletou. Podlahy jsou dřevěné a dlažba.

Dům se nachází v blízkosti řeky Vltavy, v oblíbené lokalitě s veškerou občanskou vybaveností v pěší dostupnosti (nákupní centrum Anděl, různé obchody a široký výběr restaurací, kaváren, bister, obchodů s lahůdkami: italské, francouzské, anglické a další), a okolí historické částí Malá Strana, Kampa, atd. Pár minut chůze se nachází park Zahrady Kinských, který je propojen s parkem Petřín, Petřínskou rozhlednou, Hvězdárnou Štefánika atd. Lokalita nabízí skvělou dostupnost MHD: stanice metra Anděl (trasa B) nebo tramvaje Arbesovo náměstí.

Poplatky za služby spojené s užíváním bytu činí 100 Kč/m2/měsíčně + energie hradí nájemce přímo dodavateli. Možnost pronájmu parkovacího stání za poplatek 4500, Kč + DPH/měsíčně, dle volných kapacit.
Vratná kauce 2 nájmy. Provize RK.

Makléř

Máte zájem o tento byt?

Tímto, v souladu s nařízením Evropského parlamentu a Rady (EU) 2016/679, v platném znění, prohlašuji, že mi je alespoň 16 let a uděluji tak svůj souhlas se zpracováním zadaných údajů (jméno, telefon, e-mail, ip adresa) společnosti B3 Technology, s.r.o., IČ: 07330600, se sídlem Novostavby 126/23, 435 11 Lom (správce dat), za účelem předání dotazu z tohoto formuláře Vámi vybranému inzerentovi a zpětného kontaktování mé osoby. Osobní údaje bude správce zpracovávat manuálně i automaticky přímo prostřednictvím svých zaměstnanců. Informace předané tímto formulářem budou uloženy v databázi správce maximálně po dobu 10 let. Odvolání souhlasu s uložením a zpracováním poskytnutých dat lze e-mailem na info@origo-reality.cz. V případě podezření na neoprávněné použití Vámi poskytnutých údajů máte právo předat podnět k šetření Úřadu pro ochranu osobních údajů. Více informací
Chystáte se prodat nemovitost?
Pomůžeme Vám!