Pronájem bytu 2+kk, Praha - Dejvice, Velvarská, 40 m2

Velvarská, Praha, Dejvice

25 000 Kč
/za měsíc
+ poplatky
Získejte výhodnou HYPOTÉKU Chci hypotéku

Parametry bytu

Náklady na bydlení5 000
AdresaVelvarská, Praha, Dejvice
IDRF 0581
StavbaCihlová
Stav objektuPo rekonstrukci
Patro2. z 5
VybavenoNe
Lokalita objektuRušná část obce
VlastnictvíOsobní
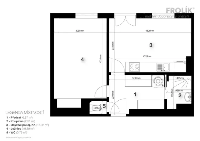
Užitná plocha40 m2
Třída energetické náročnostiG - Mimořádně nehospodárná
Elektřina230V
PlynPlynovod
OdpadVeřejná kanalizace
KomunikaceAsfaltová
TelekomunikaceTelefon, Internet, Kabelová televize, Kabelové rozvody
DopravaVlak, Silnice, MHD, Autobus
VodaVodovod
Topné tělesoRadiátory
Zdroj topeníCentrální dálkové
Sklep

Origo partneři v Praze 6

Stěhovací služby

Výkup a prodej starého nábytku

Popis

Tenhle byt si rozhodně nenechte ujít! Precizně a vkusně zrekonstruovaný, do detailu promyšlený! To je byt 2+kk, o výměře cca 40 m2, v 1. patře dobře udržovaného cihlového domu bez výtahu, v ulici Velvarská v Praze 6 - Dejvicích.

Budete to mít kousek na metro Dejvická, za nákupy i za společenským vyžitím. Francouzské okno Vám přinese kousek přírody i domů, protože budete mít výhled do pěkného parku. A před domem Vás bude každý den vítat pěkná zahrádka s posezením.

Dům bude v budoucích letech ještě vylepšený - plánuje se nová fasáda, okna, kotelna.

V bytě je využitý každý kousek plochy. Kuchyňský kout v sobě skrývá vestavěné spotřebiče (indukční varná deska, elektrická trouba, digestoř, myčka, lednice s mrazákem). Před kuchyní je místo na malý gauč a TV, u francouzského okna na jídelní stolek, případně i s osvětlením nad ním. V ložnici je šatní skříň ve zdi. Další velké skříně jsou v chodbě. V jedné z nich se skrývá i elektrický bojler na ohřev teplé vody. Topení je v domě centrální, z plynové kotelny v suterénu. Radiátory budete mít i v chodbě a koupelně. Koupelna má okno do velkého světlíku, takže byt se dá krásně větrat. Prádlo si usušíte v sušičce. Vstupní dveře do bytu jsou bezpečnostní, okna plastová s dvojskly a žaluziemi. V suterénu domu budete mít i sklípek a vedle domu pěkné společné posezení.

Kromě nájemného budete platit zálohu na domovní služby (voda, topení, úklid, odpad) 2.900 Kč/měs. + elektřinu (odhad 2.000 Kč). Ta bude napsaná na Vás. Platba nájemného a záloh bude vždy na 1 měsíc předem, jistota je 2 nájmy, provize 1 nájem.

Ještě váháte? Přijďte se co nejdříve podívat osobně, protože byt je ve skutečnosti ještě hezčí, než na fotkách! A věřím tomu, že Vás nadchne!

Byt je připravený k okamžitému nastěhování.
PENB není zpracované, podle zákona tedy musím uvádět třídu G.

Makléř

Máte zájem o tento byt?

Tímto, v souladu s nařízením Evropského parlamentu a Rady (EU) 2016/679, v platném znění, prohlašuji, že mi je alespoň 16 let a uděluji tak svůj souhlas se zpracováním zadaných údajů (jméno, telefon, e-mail, ip adresa) společnosti B3 Technology, s.r.o., IČ: 07330600, se sídlem Novostavby 126/23, 435 11 Lom (správce dat), za účelem předání dotazu z tohoto formuláře Vámi vybranému inzerentovi a zpětného kontaktování mé osoby. Osobní údaje bude správce zpracovávat manuálně i automaticky přímo prostřednictvím svých zaměstnanců. Informace předané tímto formulářem budou uloženy v databázi správce maximálně po dobu 10 let. Odvolání souhlasu s uložením a zpracováním poskytnutých dat lze e-mailem na info@origo-reality.cz. V případě podezření na neoprávněné použití Vámi poskytnutých údajů máte právo předat podnět k šetření Úřadu pro ochranu osobních údajů. Více informací
Chystáte se prodat nemovitost?
Pomůžeme Vám!

Přihlášení k odběru

Nenechte si ujít nejnovější nabídky pronájmu bytů 2+kk v Praze 6.