Pronájem vily, Praha - Nebušice, Nebušická, 254 m2

Nebušická, Praha, Nebušice

110 000 Kč
/za měsíc
Získejte výhodnou HYPOTÉKU Chci hypotéku

Parametry domu

AdresaNebušická, Praha, Nebušice
IDR2253
StavbaCihlová
Stav objektuVelmi dobrý
Typ objektuPatrový
Druh objektuSamostatný
Užitná plocha254 m2
Plocha pozemku779 m2
Třída energetické náročnostiG - Mimořádně nehospodárná
Garáž
Terasa
Bazén

Origo partneři v Praze

Stěhovací služby

Výkup a prodej starého nábytku

Popis

ID zakázky: R2253

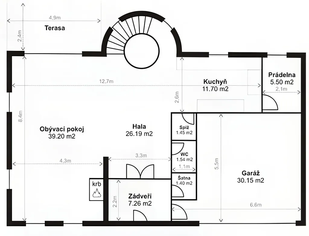
Elegantní samostatná vila je situována v uzavřeném a vysoce žádaném rezidenčním areálu v pražských Nebušicích. Dispozice domu nabízí obytnou plochu 243 m², dvojgaráž a terasu o velikosti 11 m². Součástí nemovitosti je také privátní zahrada s vyhřívaným bazénem o rozměrech 5 x 3,1 x 1,5 m.

V rámci prestižního projektu Villas Šárka, rozprostírajícího se na ploše 5 500 m², se nachází celkem sedm moderních rodinných vil. Každá z nich disponuje obytnou plochou 243 m², dvougaráží a terasou o velikosti 11 m². Ke každé vile náleží vlastní zahrada s vyhřívaným bazénem, vhodná jak pro relaxaci, tak pro aktivní odpočinek.

Domy s dispozicí čtyř ložnic jsou koncipovány s důrazem na komfort a současné standardy bydlení – samozřejmostí je podlahové vytápění i klimatizace. Vysokou úroveň vybavení podtrhují tři koupelny a tři toalety, přičemž dvě z nich jsou oddělené.

Kuchyňská linka je plně vybavena spotřebiči, jako je sklokeramická varná deska, horkovzdušná trouba, myčka nádobí, lednice s mrazákem a digestoř. Otevřený obytný prostor plynule propojuje kuchyň s obývacím pokojem, který nabízí krb a přímý vstup na zahradu.

Projekt Villas Šárka se nachází v bezprostřední blízkosti prestižní mezinárodní školy The International School of Prague. Lokalita nabízí kompletní občanskou vybavenost, včetně mateřské a základní školy, zdravotnického zařízení, obchodů, sportovní haly, tenisových kurtů a golfového hřiště. Milovníci přírody ocení blízkost přírodní rezervace Divoká Šárka. Širší infrastruktura je dostupná v nedalekých Dejvicích.

Měsíční nájemné činí 110.000,- Kč
K nastěhování ihned.

Vzhledem k absenci průkazu energetické náročnosti budovy (PENB) uvádíme v souladu se zákonem č. 406/2000 Sb. energetickou třídu G.

Pro více informací nebo domluvení prohlídky kontaktujte prosím realitního makléře.

Makléř

Máte zájem o tento dům?

Tímto, v souladu s nařízením Evropského parlamentu a Rady (EU) 2016/679, v platném znění, prohlašuji, že mi je alespoň 16 let a uděluji tak svůj souhlas se zpracováním zadaných údajů (jméno, telefon, e-mail, ip adresa) společnosti B3 Technology, s.r.o., IČ: 07330600, se sídlem Novostavby 126/23, 435 11 Lom (správce dat), za účelem předání dotazu z tohoto formuláře Vámi vybranému inzerentovi a zpětného kontaktování mé osoby. Osobní údaje bude správce zpracovávat manuálně i automaticky přímo prostřednictvím svých zaměstnanců. Informace předané tímto formulářem budou uloženy v databázi správce maximálně po dobu 10 let. Odvolání souhlasu s uložením a zpracováním poskytnutých dat lze e-mailem na info@origo-reality.cz. V případě podezření na neoprávněné použití Vámi poskytnutých údajů máte právo předat podnět k šetření Úřadu pro ochranu osobních údajů. Více informací
Chystáte se prodat nemovitost?
Pomůžeme Vám!

Přihlášení k odběru

Nenechte si ujít nejnovější nabídky pronájmu vil v Praze.