Prodej rodinného domu, Sukorady, 200 m2 (ID: 2030779)

Sukorady

12 490 000 Kč
/za nemovitost
Hypotéka od 55 823 Kč /měs. Chci hypotéku

Parametry domu

AdresaSukorady
ID1658
StavbaCihlová
Stav objektuNovostavba
VybavenoNe
Druh objektuSamostatný
Lokalita objektuKlidná část obce
Užitná plocha200 m2
Plocha pozemku841 m2
Třída energetické náročnostiB - Velmi úsporná
Elektřina230V, 400V
OdpadVeřejná kanalizace
KomunikaceAsfaltová
VodaVodovod
Topné tělesoPodlahové vytápění, Krb
Zdroj topeníTepelné čerpadlo
Zdroj teplé vodyTepelné čerpadlo
Bezbarierový přístup
Parkování

Origo partneři v Sukoradech

Popis

Hledáte dům, který je opravdu rodinný, a ne jen „dispozice na papíře“? V Sukoradech, pouhých 7 minut od Mladé Boleslavi, vznikl bungalov, který se nebojí být velkorysý. 200 m² poctivé zděné plochy, která má logiku, prostor i styl.
Žádné kompromisy: dvě plnohodnotné ložnice, dva dětské pokoje, velký obývák s kuchyní a komorou, koupelna, kde se ráno nepotkáte lokty, a terasa, na kterou vyjdete rovnou z obýváku i z ložnic. Všechno tu prostě dává smysl.
Pozemek má 841 m² – dost místa na soukromí, bazén i odpočinek, ale zároveň se nestane vaším koníčkem na celý víkend. Parkování? Dvě auta na pozemku čekají na rodinné přesuny, výlety i školní rozvozy.
Dům je připraven k dokončení, takže výsledný styl bude přesně podle vás. Ne podle developerského katalogu. Vy určíte, jak bude vypadat kuchyně, dveře nebo podlahy.

Technické parametry:
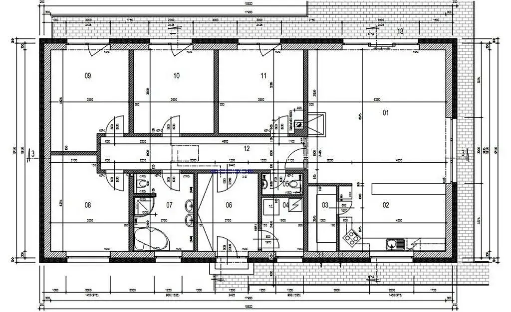
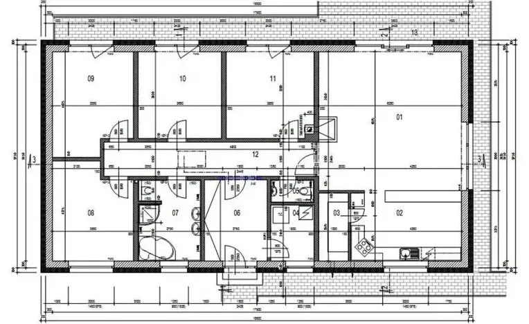
• dispozice 5+kk + komora
• HS portály
• užitná plocha 200 m²
• zděná stavba
• elektřina, voda, kanalizace přivedeny do domu
• optický kabel
• možnost okamžitého dokončení dle vašich preferencí

Dispozice
• vstupní zádveří
• 2 x ložnice
• 2 x dětský pokoj
• koupelna s vanou i sprchou
• obývací pokoj s kuchyní
• samostatná komora přístupná přímo z kuchyně


Benefity
• Nová čtvrť plná mladých rodin – bezpečné a přátelské prostředí pro děti
• Dům není katalogový typ – prostě velký, poctivý a praktický
• Není třeba čekat rok na stavbu, ladíte už jen interiér
• Český ráj kousek od domu – víkendy řeší příroda za vás
• Pěšky do obce na pizzu, bowling, potraviny i hřiště

Lokalita
Sukorady jsou přesně ta obec, která není daleko, ale zároveň je daleko od zbytečného ruchu.
V obci najdete: obchod, bowling, pizzerii, hřiště, rychlé spojení do Mladé Boleslavi i směr Jičín.
Ideální místo pro ty, kteří nechtějí žít „na samotě“, ale chtějí klid, soukromí a dobrou adresu.

Pro bližší informace jsme vám plně k dispozici.

Makléř

Máte zájem o tento dům?

Tímto, v souladu s nařízením Evropského parlamentu a Rady (EU) 2016/679, v platném znění, prohlašuji, že mi je alespoň 16 let a uděluji tak svůj souhlas se zpracováním zadaných údajů (jméno, telefon, e-mail, ip adresa) společnosti B3 Technology, s.r.o., IČ: 07330600, se sídlem Novostavby 126/23, 435 11 Lom (správce dat), za účelem předání dotazu z tohoto formuláře Vámi vybranému inzerentovi a zpětného kontaktování mé osoby. Osobní údaje bude správce zpracovávat manuálně i automaticky přímo prostřednictvím svých zaměstnanců. Informace předané tímto formulářem budou uloženy v databázi správce maximálně po dobu 10 let. Odvolání souhlasu s uložením a zpracováním poskytnutých dat lze e-mailem na info@origo-reality.cz. V případě podezření na neoprávněné použití Vámi poskytnutých údajů máte právo předat podnět k šetření Úřadu pro ochranu osobních údajů. Více informací
Chystáte se prodat nemovitost?
Pomůžeme Vám!

Přihlášení k odběru

Nenechte si ujít nejnovější nabídky prodeje rodinných domů v Sukoradech (okr. Mladá Boleslav).