Prodej bytu 1+1, Ústí nad Labem, Šípková, 34 m2

Šípková, Ústí nad Labem, Severní Terasa

2 890 000 Kč
/za nemovitost
Včetně provize a právních služeb
Hypotéka od 12 917 Kč /měs. Chci hypotéku

Parametry bytu

AdresaŠípková, Ústí nad Labem, Severní Terasa
ID653
StavbaPanelová
Stav objektuVelmi dobrý
Patro4.
VlastnictvíOsobní
Užitná plocha34 m2
Třída energetické náročnostiD - Méně úsporná
Elektřina230V
OdpadVeřejná kanalizace
VodaVodovod
Zdroj topeníÚstřední dálkové
Zdroj teplé vodyCentrální dálkový ohřev
Sklep
Výtah

Origo partneři v Ústí nad Labem

Okna a dveře

Popis

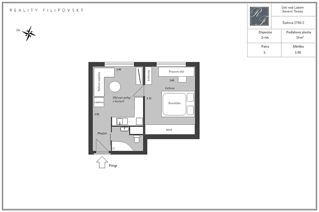
Dovoluji si Vám nabídnout zrekonstruovaný byt o dispozici 1+1 a výměře 34 m², který se nachází ve 3. patře revitalizovaného panelového domu ve velmi žádané lokalitě Ústí nad Labem – Severní Terasa.

Byt nabízí spíše ojedinělé dispoziční řešení s pokojem situovaným na pravé straně. Díky tomu jej lze snadno využít jako plnohodnotné 2+kk, což výrazně zvyšuje jeho užitnou hodnotu i atraktivitu z pohledu investice a následného pronájmu.

K bytu náleží sklepní kóje a je k němu možné využívat lodžii umístěnou v mezipatře.

Nemovitost poskytuje klidné bydlení s nízkými provozními náklady a výbornou dostupností do centra města. Lokalita je dlouhodobě vyhledávaná nejen pro vlastní bydlení, ale i mezi potenciálními nájemníky.

Makléř

Máte zájem o tento byt?

Tímto, v souladu s nařízením Evropského parlamentu a Rady (EU) 2016/679, v platném znění, prohlašuji, že mi je alespoň 16 let a uděluji tak svůj souhlas se zpracováním zadaných údajů (jméno, telefon, e-mail, ip adresa) společnosti B3 Technology, s.r.o., IČ: 07330600, se sídlem Novostavby 126/23, 435 11 Lom (správce dat), za účelem předání dotazu z tohoto formuláře Vámi vybranému inzerentovi a zpětného kontaktování mé osoby. Osobní údaje bude správce zpracovávat manuálně i automaticky přímo prostřednictvím svých zaměstnanců. Informace předané tímto formulářem budou uloženy v databázi správce maximálně po dobu 10 let. Odvolání souhlasu s uložením a zpracováním poskytnutých dat lze e-mailem na info@origo-reality.cz. V případě podezření na neoprávněné použití Vámi poskytnutých údajů máte právo předat podnět k šetření Úřadu pro ochranu osobních údajů. Více informací
Chystáte se prodat nemovitost?
Pomůžeme Vám!

Přihlášení k odběru

Nenechte si ujít nejnovější nabídky prodeje bytů 1+1 v Ústí nad Labem.