Prodej rodinného domu, Libeř - Libeň, 98 m2

Libeř

9 900 000 Kč
/za nemovitost
Hypotéka od 44 247 Kč /měs. Chci hypotéku

Parametry domu

AdresaLibeř
IDJ12517
StavbaSmíšená
Stav objektuVelmi dobrý
VybavenoČástečně
Typ objektuPatrový
Druh objektuSamostatný
VlastnictvíOsobní
Užitná plocha98 m2
Plocha pozemku625 m2
Třída energetické náročnostiG - Mimořádně nehospodárná
OdpadVeřejná kanalizace
TopeníLokální tuhá paliva, Podlahové
VodaVodovod
Topné tělesoPodlahové vytápění

Origo partneři v Libeři

Popis

Ve výhradním zastoupení majitelů Vám nabízím prodej rodinného patrového domu s udržovanou zahradou o celkové ploše pozemku 625 m², který je ve velmi dobrém udržovaném technickém stavu. Stavba byla realizována v roce 2000 a navazuje na budovu původní chaty. Nemovitost se nachází ve vyhledávané oblasti v obci Libeř sousedící s Přírodním parkem Střed Čech.
✅ Klíčové informace k nemovitosti:
- Dispozice 3+kk
- Celková plocha pozemku 625 m²
- Celková podlahová plocha domu cca 98 m²
- Zastavěná plocha 98 m²
- Plocha zahrady 527 m²
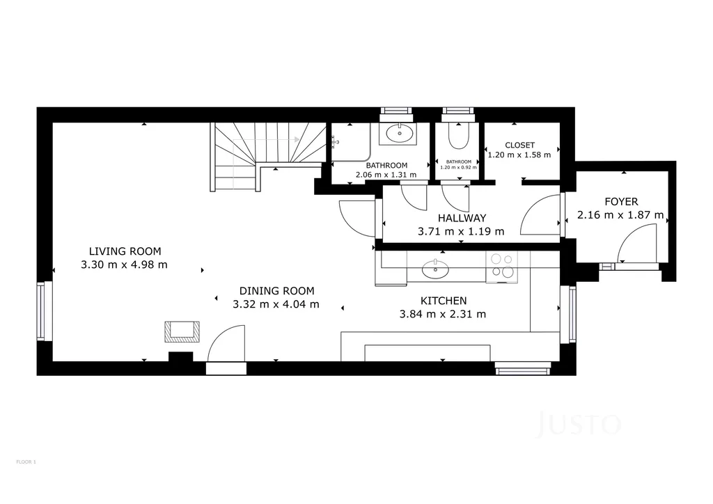
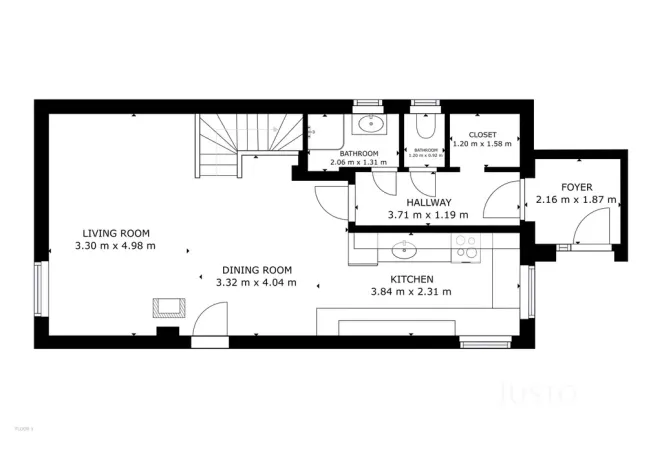
- V přízemí (cca 51 m²) se nachází:
o prostorný obývací pokoj s kuchyňským koutem a výhledem do zahrady
o koupelna, toaleta, chodba, šatna, předsíň a úložný prostor pod schody
- Ve 2. NP (cca 47 m²) se nachází
o schodiště
o dva pokoje se šikmou střechou
o komora
o koupelna (před dokončením)

- Prostřednictvím sklopných schodů je možné se dostat na půdu s velkým úložným prostorem
- Nemovitost je bez právních vad
- Všechny povinné revize jsou aktuální
- Zděná cihlová konstrukce
- Podsklepení původní části chaty
- Dům je připraven k okamžitému nastěhování bez nutnosti dalších investic

✅ Klíčové informace k lokalitě:
- Mimořádně klidná lokalita sousedící s Přírodním parkem Střed Čech
- Dostatečná občanská vybavenost a dopravní dostupnost
o sportovní a dětská hřiště, koupaliště
o potraviny, hospoda, obecní úřad
o autobusová zastávka Libeř je vzdálena 900 m od budovy
o Přímá návaznost na Budějovickou, Nemocnici Krč a Nádraží Modřany
- Ke kvalitě bydlení přispívá i blízkost přírodního parku, který je ideální k relaxaci a aktivnímu odpočinku

✅ Důležité informace k prodeji:
- Zájemce nehradí provizi RK!
- Majitelé si vyhrazují právo výběru nejvýhodnější nabídky v případě více zájemců
- Možnost zprostředkování atraktivního financování
- K nemovitosti je vypracována technická dokumentace
- Průkaz energetické náročnosti se aktuálně zpracovává a následně bude doplněn

Pokud Vás tato nemovitost zaujala, neváhejte mě kontaktovat, rád Vám tento příjemný dům osobně představím.

Makléř

Máte zájem o tento dům?

Tímto, v souladu s nařízením Evropského parlamentu a Rady (EU) 2016/679, v platném znění, prohlašuji, že mi je alespoň 16 let a uděluji tak svůj souhlas se zpracováním zadaných údajů (jméno, telefon, e-mail, ip adresa) společnosti B3 Technology, s.r.o., IČ: 07330600, se sídlem Novostavby 126/23, 435 11 Lom (správce dat), za účelem předání dotazu z tohoto formuláře Vámi vybranému inzerentovi a zpětného kontaktování mé osoby. Osobní údaje bude správce zpracovávat manuálně i automaticky přímo prostřednictvím svých zaměstnanců. Informace předané tímto formulářem budou uloženy v databázi správce maximálně po dobu 10 let. Odvolání souhlasu s uložením a zpracováním poskytnutých dat lze e-mailem na info@origo-reality.cz. V případě podezření na neoprávněné použití Vámi poskytnutých údajů máte právo předat podnět k šetření Úřadu pro ochranu osobních údajů. Více informací
Chystáte se prodat nemovitost?
Pomůžeme Vám!

Přihlášení k odběru

Nenechte si ujít nejnovější nabídky prodeje rodinných domů v Libeři.