Prodej bytu 2+1, Rosice, Husova čtvrť, 56 m2

Husova čtvrť, Rosice

5 100 000 Kč
/za nemovitost
Hypotéka od 22 794 Kč /měs. Chci hypotéku

Parametry bytu

AdresaHusova čtvrť, Rosice
ID26042102
StavbaCihlová
Stav objektuVelmi dobrý
Patro1.
VlastnictvíOsobní
Užitná plocha56 m2
Sklep

Origo partneři v Rosicích

Popis

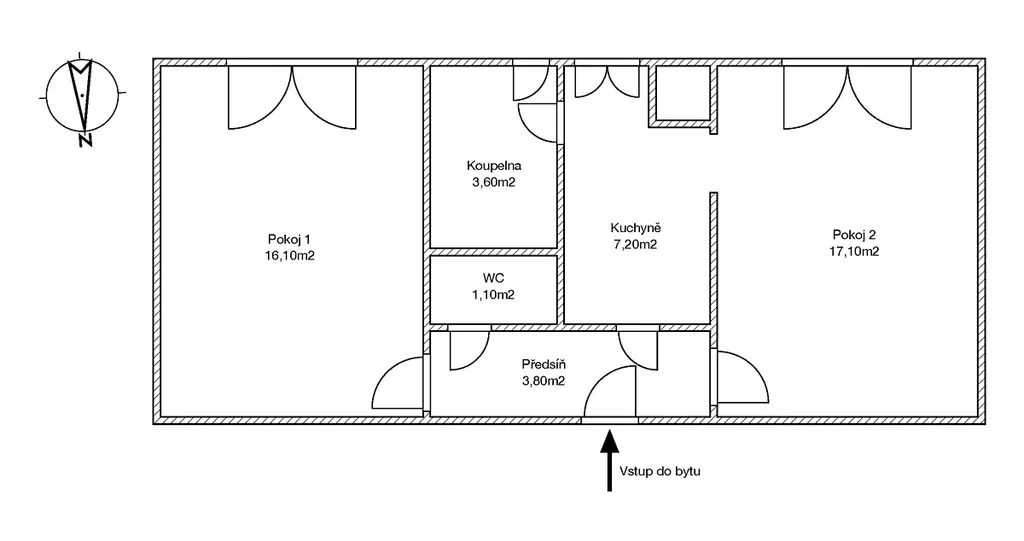
Nabízíme k prodeji byt o dispozici 2+1 a celkové výměře 56 m², situovaný v 1. nadzemním podlaží bytového domu v klidné a vyhledávané lokalitě Rosice, ulice Husova čtvrť.

Byt zaujme praktickým dispozičním řešením s neprůchozími pokoji. Při vstupu do bytu vcházíme do předsíně, ze které jsou samostatné vstupy do jednotlivých místností – dvou pokojů, kuchyně a samostatného WC. Z kuchyně je dále vstup do koupelny. Dispozice tak nabízí dostatek soukromí a komfortní uspořádání vhodné jak pro vlastní bydlení, tak i jako investiční příležitost.

Byt je vybaven vlastním plynovým kotlem, který zajišťuje vytápění i ohřev vody, což přináší nezávislost na centrálních zdrojích a možnost regulace nákladů dle vlastních potřeb. K bytu náleží také sklep o velikosti 6,8 m², poskytující dostatek úložného prostoru.

Velkou výhodou je možnost přikoupení garáže za cenu 850 000 Kč, která se nachází v blízkosti domu.

Město Rosice nabízí kompletní občanskou vybavenost – školy, školky, obchody, zdravotnická zařízení i široké možnosti volnočasových aktivit. Výborná dopravní dostupnost do Brna (cca 15–20 minut) činí z této lokality ideální kombinaci klidného bydlení s rychlým dosahem města.

V případě zájmu o bližší informace či sjednání prohlídky mě neváhejte kontaktovat.

Makléř

Máte zájem o tento byt?

Tímto, v souladu s nařízením Evropského parlamentu a Rady (EU) 2016/679, v platném znění, prohlašuji, že mi je alespoň 16 let a uděluji tak svůj souhlas se zpracováním zadaných údajů (jméno, telefon, e-mail, ip adresa) společnosti B3 Technology, s.r.o., IČ: 07330600, se sídlem Novostavby 126/23, 435 11 Lom (správce dat), za účelem předání dotazu z tohoto formuláře Vámi vybranému inzerentovi a zpětného kontaktování mé osoby. Osobní údaje bude správce zpracovávat manuálně i automaticky přímo prostřednictvím svých zaměstnanců. Informace předané tímto formulářem budou uloženy v databázi správce maximálně po dobu 10 let. Odvolání souhlasu s uložením a zpracováním poskytnutých dat lze e-mailem na info@origo-reality.cz. V případě podezření na neoprávněné použití Vámi poskytnutých údajů máte právo předat podnět k šetření Úřadu pro ochranu osobních údajů. Více informací
Chystáte se prodat nemovitost?
Pomůžeme Vám!

Přihlášení k odběru

Nenechte si ujít nejnovější nabídky prodeje bytů 2+1 v Rosicích (okr. Brno-venkov).