Remax Power 2

Prodej rodinného domu, Bohutín, 112 m2 (ID: 2029061)

Bohutín, Vysoká Pec

11 990 000 Kč
/za nemovitost
Hypotéka od 53 588 Kč /měs. Chci hypotéku

Parametry domu

AdresaBohutín, Vysoká Pec
IDN7953
StavbaDřevěná
Stav objektuNovostavba
VybavenoČástečně
Druh objektuSamostatný
Užitná plocha112 m2
Plocha pozemku948 m2
Třída energetické náročnostiG - Mimořádně nehospodárná

Origo partneři v Bohutíně

Revize elektrických zařízení

Popis

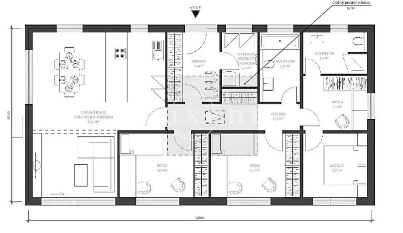
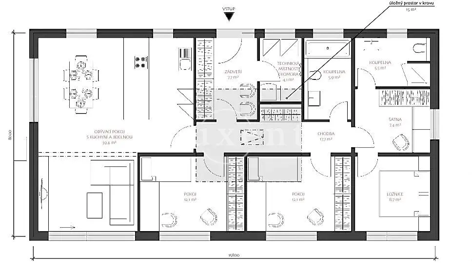
Nabízíme k prodeji samostatně stojící rodinný dům typu bungalov v klidné lokalitě Vysoká Pec u Bohutína, v okrese Příbram.

Dům o dispozici 4+kk a užitné ploše 112 m² nabízí prakticky řešený a vzdušný interiér s důrazem na komfort rodinného bydlení. Hlavní obytný prostor je propojen s kuchyňským koutem a umožňuje přímý vstup na zahradu o celkové výměře 948 m², která poskytuje dostatek soukromí i prostoru pro relaxaci, rodinné aktivity nebo další úpravy dle vlastních představ.

Nemovitost je dokončena v základním standardu, přičemž součástí jsou hotové podlahy, koupelny, kuchyňská linka i venkovní žaluzie, což umožňuje okamžité užívání s možností doladění detailů podle individuálních preferencí nového majitele. O moderní a úsporný provoz domu se stará tepelné čerpadlo v kombinaci s rekuperací, které zajišťují nízké provozní náklady a zároveň zdravé a komfortní vnitřní prostředí po celý rok.

Lokalita Vysoká Pec u Bohutína nabízí příjemné bydlení na okraji brdských lesů, ideální pro ty, kteří hledají klid a blízkost přírody, aniž by se museli vzdát dostupnosti městské infrastruktury. V nedaleké Příbrami je k dispozici kompletní občanská vybavenost včetně škol, školek, obchodů, zdravotnických zařízení i sportovního vyžití. Dopravní spojení je zajištěno autobusovou dopravou, přičemž cesta do Prahy trvá přibližně 50 minut.

Tato nemovitost představuje atraktivní volbu pro rodinné bydlení i pro zájemce hledající klidnější alternativu k městskému životu.

Pro více informací nebo domluvení osobní prohlídky nás neváhejte kontaktovat.

Makléř

Máte zájem o tento dům?

Tímto, v souladu s nařízením Evropského parlamentu a Rady (EU) 2016/679, v platném znění, prohlašuji, že mi je alespoň 16 let a uděluji tak svůj souhlas se zpracováním zadaných údajů (jméno, telefon, e-mail, ip adresa) společnosti B3 Technology, s.r.o., IČ: 07330600, se sídlem Novostavby 126/23, 435 11 Lom (správce dat), za účelem předání dotazu z tohoto formuláře Vámi vybranému inzerentovi a zpětného kontaktování mé osoby. Osobní údaje bude správce zpracovávat manuálně i automaticky přímo prostřednictvím svých zaměstnanců. Informace předané tímto formulářem budou uloženy v databázi správce maximálně po dobu 10 let. Odvolání souhlasu s uložením a zpracováním poskytnutých dat lze e-mailem na info@origo-reality.cz. V případě podezření na neoprávněné použití Vámi poskytnutých údajů máte právo předat podnět k šetření Úřadu pro ochranu osobních údajů. Více informací
Chystáte se prodat nemovitost?
Pomůžeme Vám!

Přihlášení k odběru

Nenechte si ujít nejnovější nabídky prodeje rodinných domů v Bohutíně (okr. Příbram).