Prodej chalupy, Zdíkov - Branišov, 146 m2

Zdíkov, Branišov

5 350 000 Kč
/za nemovitost
Hypotéka od 23 911 Kč /měs. Chci hypotéku

Parametry domu

AdresaZdíkov, Branišov
IDJ12524
StavbaSmíšená
Stav objektuPo rekonstrukci
VybavenoNe
Typ objektuPatrový
Druh objektuSamostatný
Lokalita objektuPolosamota
VlastnictvíOsobní
Užitná plocha146 m2
Zastavěná plocha137 m2
Podlahová plocha146 m2
Plocha pozemku371 m2
Třída energetické náročnostiD - Méně úsporná
Ukazatel energetické náročnosti114 kWh/m2 za rok
Elektřina230V, 400V
OdpadJímka
TopeníPodlahové
KomunikaceNeupravená
DopravaSilnice, Autobus
VodaVodovod
Topné tělesoPodlahové vytápění
Zdroj topeníTepelné čerpadlo
Zdroj teplé vodyBojler - elektro
Bezbarierový přístup

Origo partneři v Zdíkově

Výkup a prodej starého nábytku

Popis

Hledáte chalupu „na samotě u lesa“? Máte rádi Šumavu, cyklovýlety, turistiku, lyžování a chcete si občas odpočinout od ruchu města?

Ve výhradním zastoupení majitelů vám nabízíme k prodeji kompletně zrekonstruovanou chalupu na polosamotě v Branišově u Zdíkova (okr. Prachatice).

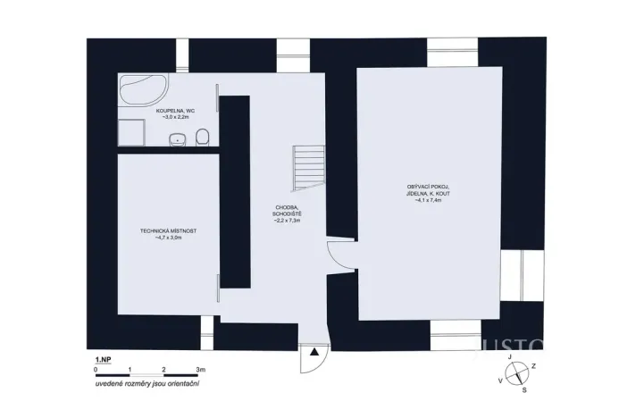
• celková užitná plocha ve dvou podlažích 146 m²
• zastavěná plocha a nádvoří 137 m²
• celková plocha pozemků 371 m²
• přízemí: velká technická místnost, koupelna, obývák/světnice
• podkroví: 3 samostatné neprůchozí pokoje, toaleta
• venku nedokončená pergola, která čeká, co s ní vymyslíte

V roce 2025 majitelé chalupu citlivě zrekonstruovali:
• podlahové vytápění, zateplení minerální vatou, okna s trojskly
• tepelné čerpadlo „vduch-voda“, 200l akumulační nádrž (možnost ovládání vytápění na dálku přes mobil)
• vyvážecí jímka, obecní vodovod s pitnou vodou, nová elektřina
• zateplená střecha, plechová krytina, trámové stropy atd.

Rodina, přátelé, anebo třeba nájemníci budou bydlet samostatně ve třech velkých podkrovních pokojích. Na patře je navíc ještě toaleta.
V přízemí využijete technickou místnost třeba pro lyže/lyžáky a kola.
Z obýváku uděláte to nejútulnější místo pro zimní zasněžené večery i teplé letní dny, kdy naplno využijete potenciál okolní přírody.

Chalupa stojí na polosamotě obce Branišov. V okolí jsou lesy a louky. V obci a blízkém okolí najdete základní občanskou vybavenost, několik restaurací, cukrárnu, supermarket, a zejména řadu turistických a sportovních atrakcí – například Klostermannovu rozhlednu, lyžařský areál Zadov nebo státní zámek Vimperk.

Pokud hledáte místo, kde si vaše rodina užije klidné bydlení s možností aktivního odpočinku v přírodě, anebo nemovitost vhodnou k rekreaci a „úniku z civilizace“, chalupa v Branišově vás zaujme.

Na koupi chalupy vám pomůžeme sjednat financování.
Napište nám skrze formulář u inzerátu. Dostanete odpověď s veškerými informacemi do 20 minut na e-mail, který uvedete. (Zkontrolujte si, prosím správnost zadaného e-mailu, a po odeslání také složky "Spam" a "Nevyžádaná pošta". Občas se tam e-mail může zatoulat.).

Makléř

Máte zájem o tento dům?

Tímto, v souladu s nařízením Evropského parlamentu a Rady (EU) 2016/679, v platném znění, prohlašuji, že mi je alespoň 16 let a uděluji tak svůj souhlas se zpracováním zadaných údajů (jméno, telefon, e-mail, ip adresa) společnosti B3 Technology, s.r.o., IČ: 07330600, se sídlem Novostavby 126/23, 435 11 Lom (správce dat), za účelem předání dotazu z tohoto formuláře Vámi vybranému inzerentovi a zpětného kontaktování mé osoby. Osobní údaje bude správce zpracovávat manuálně i automaticky přímo prostřednictvím svých zaměstnanců. Informace předané tímto formulářem budou uloženy v databázi správce maximálně po dobu 10 let. Odvolání souhlasu s uložením a zpracováním poskytnutých dat lze e-mailem na info@origo-reality.cz. V případě podezření na neoprávněné použití Vámi poskytnutých údajů máte právo předat podnět k šetření Úřadu pro ochranu osobních údajů. Více informací
Chystáte se prodat nemovitost?
Pomůžeme Vám!

Přihlášení k odběru

Nenechte si ujít nejnovější nabídky prodeje chalup v Zdíkově.