Pronájem bytu 1+kk, Praha - Strašnice, Zvěřinova, 51 m2 (ID: 2028490)

Zvěřinova, Praha, Strašnice

23 000 Kč
/za měsíc
Získejte výhodnou HYPOTÉKU Chci hypotéku

Parametry bytu

AdresaZvěřinova, Praha, Strašnice
ID20
StavbaCihlová
Stav objektuNovostavba
Patro2. z 9
VybavenoAno
VlastnictvíOsobní
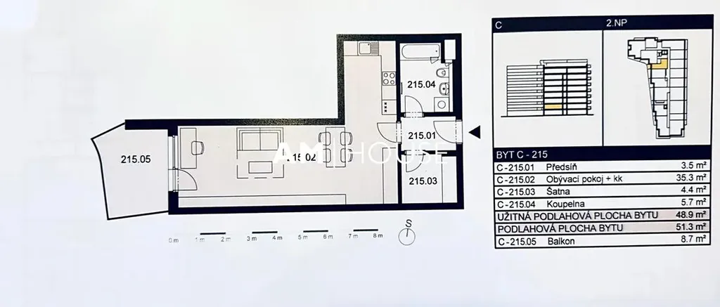
Užitná plocha51 m2
Podlahová plocha51 m2
Třída energetické náročnostiB - Velmi úsporná
DopravaMHD, Autobus
Balkon
Garáž
Výtah
Bezbarierový přístup

Origo partneři v Praze 3

Stěhovací služby

Výkup a prodej starého nábytku

Popis

Společnost Am House nabízí k pronajmu byt 1+kk o celkové ploše 51 m2 + balkon 8 m2 který se nachází v 2.NP v projektu rezidence Tulipa Trebesin, který je situován na městské části Praha 3.

K bytu náleží parkovací stani.

Ve standardu plovoucí podlahy, plastová okna s izolačním 3 sklem. Budova bude vystavěna s energetickým štítkem B, tím pádem nízkými náklady na bydlení.

Vstupy do budovy jsou na bezpečnostní čipy.

V blízkém okolí se nachází veškerá potřebná občanská vybavenost - nákupní centrum Atrium Flora, sportovní areál, plavecký bazén, školka, škola a gymnázium Nad Vodovodem, fakultní nemocnice Královské Vinohrady, Malešický park, dále je k dispozici nespočet restaurací a jiných relaxačních středisek.


Poloha domu umožňuje rychlé pojení do centra města. Autobusová zastávka Třebešín, je vzdálena cca 2 min chůze a stanice metra Želivského.

Celková cena: 23 000 Kč + 4 184 Kč poplatky + elektřina a internet.


Pro více informací ohledně nemovitostí nebo domluvení prohlídky domu nás kontaktujte, rádi se Vám budeme věnovat.

Makléř

Máte zájem o tento byt?

Tímto, v souladu s nařízením Evropského parlamentu a Rady (EU) 2016/679, v platném znění, prohlašuji, že mi je alespoň 16 let a uděluji tak svůj souhlas se zpracováním zadaných údajů (jméno, telefon, e-mail, ip adresa) společnosti B3 Technology, s.r.o., IČ: 07330600, se sídlem Novostavby 126/23, 435 11 Lom (správce dat), za účelem předání dotazu z tohoto formuláře Vámi vybranému inzerentovi a zpětného kontaktování mé osoby. Osobní údaje bude správce zpracovávat manuálně i automaticky přímo prostřednictvím svých zaměstnanců. Informace předané tímto formulářem budou uloženy v databázi správce maximálně po dobu 10 let. Odvolání souhlasu s uložením a zpracováním poskytnutých dat lze e-mailem na info@origo-reality.cz. V případě podezření na neoprávněné použití Vámi poskytnutých údajů máte právo předat podnět k šetření Úřadu pro ochranu osobních údajů. Více informací
Chystáte se prodat nemovitost?
Pomůžeme Vám!