Prodej rodinného domu, Vysoký Újezd, 160 m2

Vysoký Újezd

17 990 000 Kč
/za nemovitost
Hypotéka od 80 404 Kč /měs. Chci hypotéku

Parametry domu

AdresaVysoký Újezd
ID20082
StavbaDřevěná
Stav objektuNovostavba
Typ objektuPřízemní
Druh objektuSamostatný
Užitná plocha160 m2
Zastavěná plocha128 m2
Podlahová plocha188 m2
Plocha pozemku820 m2
Plocha zahrady674 m2
Třída energetické náročnostiA - Mimořádně úsporná
Ukazatel energetické náročnosti48 kWh/m2 za rok
Elektřina230V, 400V
OdpadVeřejná kanalizace
TopeníLokální elektrické
KomunikaceAsfaltová
TelekomunikaceInternet, Kabelová televize
DopravaDálnice, Silnice, MHD, Autobus
VodaVodovod, Retenční nádrž na dešt’ovou vodu
Topné tělesoPodlahové vytápění
Zdroj topeníTepelné čerpadlo
Zdroj teplé vodyTepelné čerpadlo
Balkon
Terasa
Bezbarierový přístup
Parkování
Nízkoenergetický

Origo partneři v Vysokém Újezdu

Popis

Moderní nízkoenergetický rodinný dům 5+1 s pozemkem 820 m², Vysoký Újezd

Nabízíme k prodeji nově zkolaudovaný, nízkoenergetický rodinný dům v klidné okrajové části obce Vysoký Újezd. Nemovitost spojuje výbornou dostupnost do Prahy s komfortem moderního rodinného bydlení v blízkosti přírody.
Dům o dispozici 5+1 disponuje podlahovou plochou 160,2 m², terasami a balkony o celkové výměře 28,4 m² a stojí na pozemku o velikosti 820 m². Jedná se o kvalitní dřevostavbu z panelů RD Rýmařov se zárukou 30 let. Energetická náročnost třídy A zajišťuje velmi úsporný provoz.
Interiér domu je navržen s důrazem na prostor, světlo a propojení se zahradou. Velkoformátová okna přivádějí do domu dostatek denního světla a vytvářejí příjemnou atmosféru. Dům je připravený k okamžitému nastěhování.

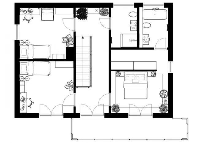
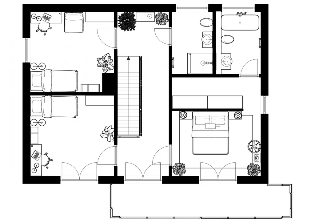
Dispozice
Přízemí:
prostorný obývací pokoj propojený s jídelnou a kuchyní se vstupem na terasu a zahradu
samostatný pokoj (pracovna / pokoj pro hosty)
koupelna s toaletou
technická místnost
vstupní chodba
1. patro:
dva dětské pokoje se společnou koupelnou
prostorná chodba
samostatná hlavní ložnice se šatnou, vlastní koupelnou a vstupem na balkon
z 1. patra je po výsuvném schodišti vstup do půdního prostoru

Technické řešení domu zahrnuje teplovodní podlahové vytápění s tepelným čerpadlem a akumulační nádrží, solární panely 2,5 kWp pro ohřev vody, předokenní elektrické žaluzie a optický internet. Vytápění má ekvitermní regulaci, dle PENB splňuje klasifikační třídu A. Napojení na obecní vodovod a kanalizaci je samozřejmostí.
Na pozemku je k dispozici parkování pro tři vozy.

Standardní vybavení zahrnuje:
Vinylové podlahy a dlažby, okna s trojskly, kvalitní interiérové dveře, designové schodiště s dřevěnými nášlapy, kompletní sanitu, regulaci vytápění, oplocení, vsakovací nádrž na dešťovou vodu, videotelefon a elektrickou vjezdovou bránu.

Lokalita:
Vysoký Újezd patří mezi velmi žádané rezidenční oblasti západně od Prahy. Díky dálnici D5 se na metro B Zličín autem dostanete přibližně za 15 minut. K dispozici je i veřejná doprava, autobusem to na metro trvá 28 minut. V obci je kompletní občanská vybavenost včetně školy, školky, pošty, obchodů a restaurací. Místní zážitková restaurace Papilio je držitelem dvou michelinských hvězd.
Okolí nabízí široké možnosti pro volnočasové aktivity blízkost Českého krasu, cyklostezky, legendární lom Amerika, turistika i prestižní golfové hřiště Albatros Golf Resort.
________________________________________
Hledáte moderní rodinné bydlení v klidné lokalitě s rychlou dostupností do Prahy? Tato nabídka je ideální volbou.
V případě zájmu nás neváhejte kontaktovat. Rádi Vám zajistíme osobní prohlídku i kompletní hypoteční a právní servis.

Makléř

Máte zájem o tento dům?

Tímto, v souladu s nařízením Evropského parlamentu a Rady (EU) 2016/679, v platném znění, prohlašuji, že mi je alespoň 16 let a uděluji tak svůj souhlas se zpracováním zadaných údajů (jméno, telefon, e-mail, ip adresa) společnosti B3 Technology, s.r.o., IČ: 07330600, se sídlem Novostavby 126/23, 435 11 Lom (správce dat), za účelem předání dotazu z tohoto formuláře Vámi vybranému inzerentovi a zpětného kontaktování mé osoby. Osobní údaje bude správce zpracovávat manuálně i automaticky přímo prostřednictvím svých zaměstnanců. Informace předané tímto formulářem budou uloženy v databázi správce maximálně po dobu 10 let. Odvolání souhlasu s uložením a zpracováním poskytnutých dat lze e-mailem na info@origo-reality.cz. V případě podezření na neoprávněné použití Vámi poskytnutých údajů máte právo předat podnět k šetření Úřadu pro ochranu osobních údajů. Více informací
Chystáte se prodat nemovitost?
Pomůžeme Vám!

Přihlášení k odběru

Nenechte si ujít nejnovější nabídky prodeje rodinných domů v Vysokém Újezdu (okr. Beroun).