Prodej rodinného domu, Rotava, Hornická, 300 m2

Hornická, Rotava

750 000 Kč
/za nemovitost
Hypotéka od 3 352 Kč /měs. Chci hypotéku

Parametry domu

AdresaHornická, Rotava
IDN2651
StavbaCihlová
Stav objektuPřed rekonstrukcí
Typ objektuPatrový
Druh objektuSamostatný
Lokalita objektuKlidná část obce
Užitná plocha300 m2
Zastavěná plocha121 m2
Podlahová plocha261 m2
Plocha pozemku121 m2
Třída energetické náročnostiG - Mimořádně nehospodárná
OdpadVeřejná kanalizace
DopravaSilnice
VodaVodovod
Sklep
Výtah

Origo partneři v Rotavě

Popis

Nabízíme k prodeji dům v obci Rotava (ul. Hornická), určený ke kompletní rekonstrukci, se zpracovanou studií na vybudování apartmánového domu o 6 jednotkách.
Dům se nachází v lokalitě bývalé hornické zástavby. V sousedství jsou obydlené domy s trvalými majiteli, nemovitost je tak vhodná nejen pro investiční záměr, ale i pro vlastní bydlení či kombinaci obojího.

Dům je připraven k rekonstrukci:
- vyklizený
- staticky zajištěný
- nová střešní konstrukce
K domu náleží oplocená zahrada, která je v současnosti užívána na základě nájemní smlouvy s městem.

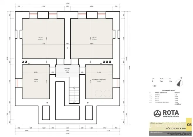
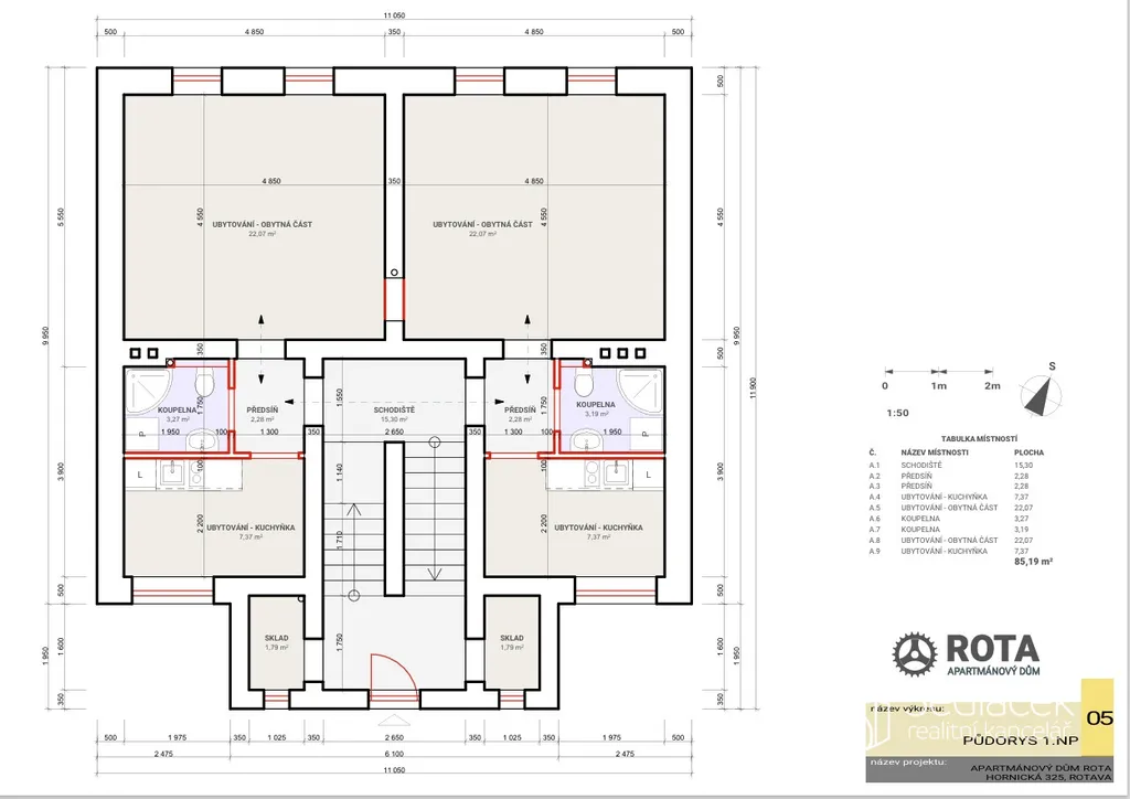
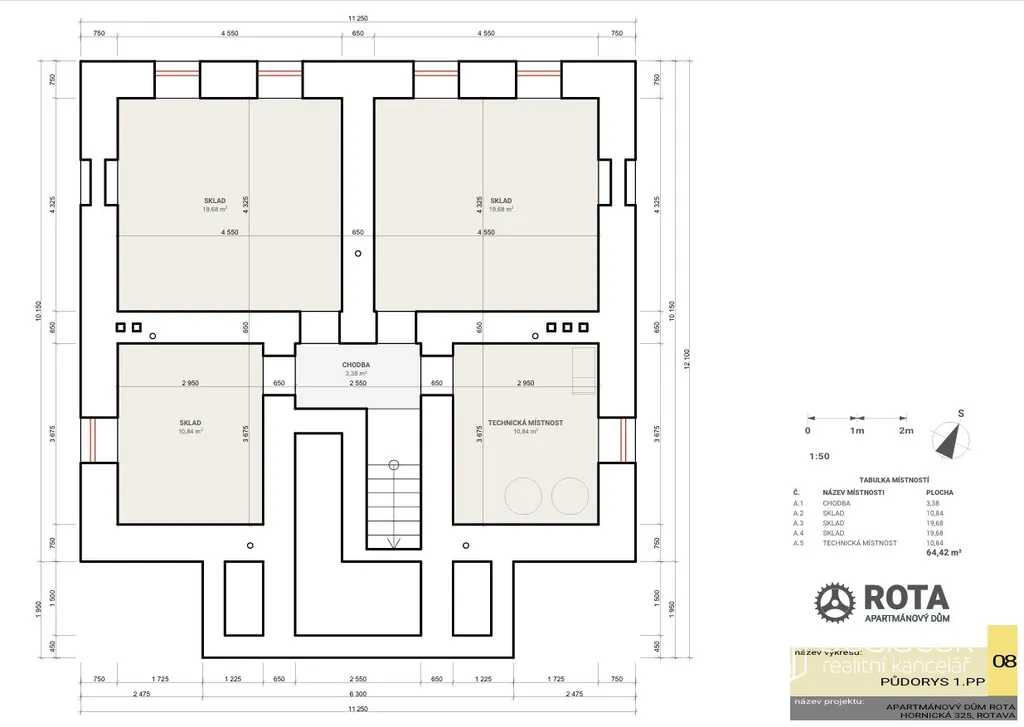
Součástí nabídky je projektová studie apartmánového domu:
- 6 samostatných apartmánů (2 na každém podlaží)
- kapacita cca 24 lůžek
- užitná plocha cca 326 m²

Lokalita Krušných hor nabízí celoroční využití lyžařský areál Bublava , běžkařské trasy Přebuz, dojezd do Kraslic a Německa (Klingenthal) vše cca 10 min.

Prohlídky jsou možné po domluvě. Podklady a studie k dispozici na vyžádání.

Makléř

Máte zájem o tento dům?

Tímto, v souladu s nařízením Evropského parlamentu a Rady (EU) 2016/679, v platném znění, prohlašuji, že mi je alespoň 16 let a uděluji tak svůj souhlas se zpracováním zadaných údajů (jméno, telefon, e-mail, ip adresa) společnosti B3 Technology, s.r.o., IČ: 07330600, se sídlem Novostavby 126/23, 435 11 Lom (správce dat), za účelem předání dotazu z tohoto formuláře Vámi vybranému inzerentovi a zpětného kontaktování mé osoby. Osobní údaje bude správce zpracovávat manuálně i automaticky přímo prostřednictvím svých zaměstnanců. Informace předané tímto formulářem budou uloženy v databázi správce maximálně po dobu 10 let. Odvolání souhlasu s uložením a zpracováním poskytnutých dat lze e-mailem na info@origo-reality.cz. V případě podezření na neoprávněné použití Vámi poskytnutých údajů máte právo předat podnět k šetření Úřadu pro ochranu osobních údajů. Více informací
Chystáte se prodat nemovitost?
Pomůžeme Vám!

Přihlášení k odběru

Nenechte si ujít nejnovější nabídky prodeje rodinných domů v Rotavě.