Soccer reality

Pronájem bytu 2+1, Praha - Letňany, Tupolevova, 61 m2

Tupolevova, Letňany - Praha 18

22 500 Kč
/za měsíc
vratná jistota, náklady na bydlení 6337 Kč, poplatek za podnájem 29000 Kč
Získejte výhodnou HYPOTÉKU Chci hypotéku

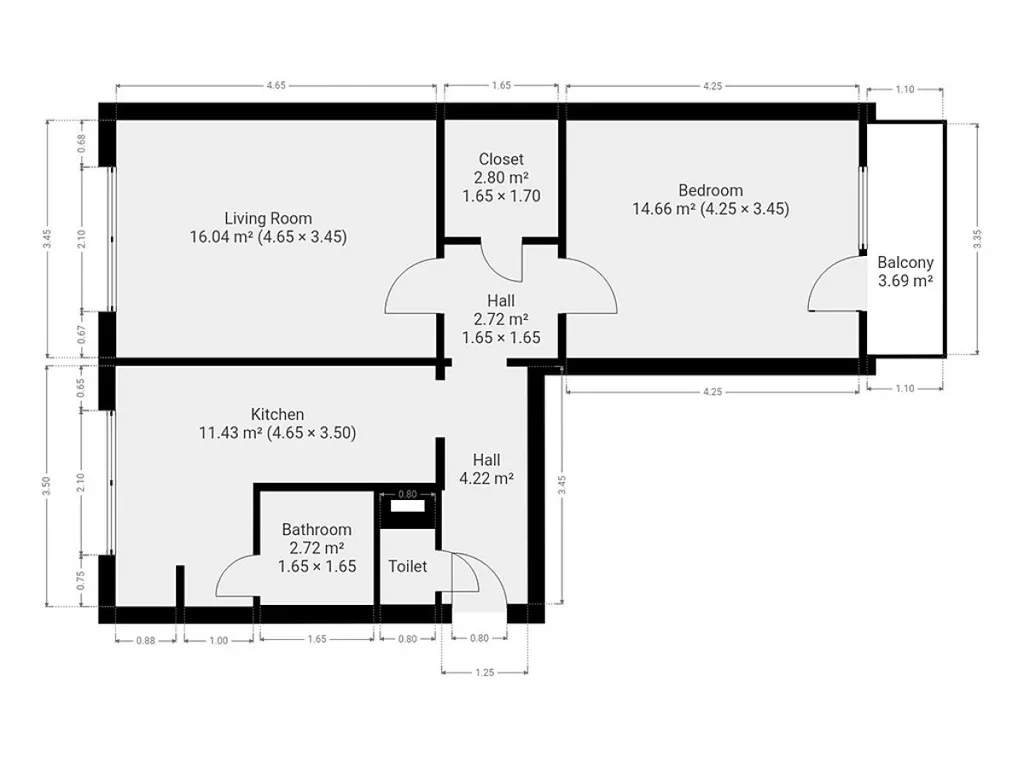
Parametry bytu

AdresaTupolevova, Letňany - Praha 18
IDN6738
StavbaPanelová
Stav objektuVelmi dobrý
Patro6. z 8
VybavenoNe
Typ objektuPatrový
Lokalita objektuKlidná část obce
VlastnictvíDružstevní
Užitná plocha61 m2
Podlahová plocha61 m2
Třída energetické náročnostiG - Mimořádně nehospodárná
Elektřina230V
TopeníÚstřední dálkové
DopravaSilnice, MHD, Autobus
Balkon
Sklep
Lodžie
Výtah
Převod do OV

Origo partneři v Praze 9

Stěhovací služby

Výkup a prodej starého nábytku

Popis

Nabízíme k dlouhodobému podnájmu útulný a světlý byt o dispozici 2+1 s výměrou 61 m², který se nachází v 6. patře udržovaného panelového domu s výtahem. K bytu náleží balkon a také praktický sklep.

Byt je pronajímán nezařízený, což dává novému podnájemníkovi možnost přizpůsobit si interiér dle vlastního vkusu.

Kuchyňská linka je vybavena lednicí s mrazákem, elektrickou troubou, plynovou varnou deskou, digestoří a jídelním koutem. Obývací pokoj nabízí světlý a prostorný interiér, doplněný moderním křeslem a menším stolkem. Další samostatný pokoj je vhodný například jako ložnice. Koupelna disponuje sprchovým koutem, umyvadlem a pračkou, toaleta je řešena odděleně.

Součástí bytu je také menší místnost, kterou lze využít jako šatnu či úložný prostor.

V bezprostředním okolí domu je kompletní občanská vybavenost – obchodní centrum Letňany, supermarket Lidl, školy a školky, poliklinika, restaurace, kavárny i dětská hřiště. K odpočinku a volnočasovým aktivitám je ideální Lesopark Letňany, vzdálený jen několik minut chůze.

Dopravní dostupnost je výborná – v docházkové vzdálenosti se nachází stanice metra C – Letňany a několik autobusových zastávek.

Byt je k nastěhování od 1. 8. 2026.

Energetická třída: G (průkaz nedodán).

Makléř

Máte zájem o tento byt?

Tímto, v souladu s nařízením Evropského parlamentu a Rady (EU) 2016/679, v platném znění, prohlašuji, že mi je alespoň 16 let a uděluji tak svůj souhlas se zpracováním zadaných údajů (jméno, telefon, e-mail, ip adresa) společnosti B3 Technology, s.r.o., IČ: 07330600, se sídlem Novostavby 126/23, 435 11 Lom (správce dat), za účelem předání dotazu z tohoto formuláře Vámi vybranému inzerentovi a zpětného kontaktování mé osoby. Osobní údaje bude správce zpracovávat manuálně i automaticky přímo prostřednictvím svých zaměstnanců. Informace předané tímto formulářem budou uloženy v databázi správce maximálně po dobu 10 let. Odvolání souhlasu s uložením a zpracováním poskytnutých dat lze e-mailem na info@origo-reality.cz. V případě podezření na neoprávněné použití Vámi poskytnutých údajů máte právo předat podnět k šetření Úřadu pro ochranu osobních údajů. Více informací
Chystáte se prodat nemovitost?
Pomůžeme Vám!