Prodej rodinného domu, Mysliboř, 140 m2 (ID: 2027834)

Mysliboř

5 950 000 Kč
/za nemovitost
včetně provize RK
Hypotéka od 26 593 Kč /měs. Chci hypotéku

Parametry domu

AdresaMysliboř
StavbaCihlová
Stav objektuNovostavba
Druh objektuŘadový
Lokalita objektuOkraj obce
Užitná plocha140 m2
Zastavěná plocha77 m2
Plocha pozemku200 m2
Třída energetické náročnostiC - Úsporná
Elektřina400V
PlynPlynovod
OdpadČOV pro celý objekt
TelekomunikaceInternet
DopravaVlak, Silnice, Autobus
VodaStudna
Topné tělesoRadiátory
Zdroj topeníPlynový kondenzační kotel
Zdroj teplé vodyBojler - plyn
Parkování

Origo partneři v Mysliboři

Popis

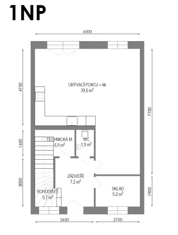
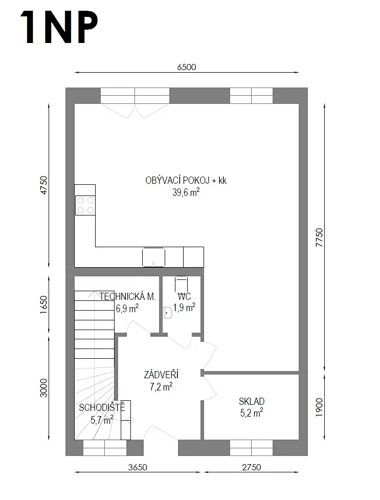
Ve výhradním zastoupení vám nabízím prodej řádového rodinného domu. Dům o dispozici 4+kk s užitnou plochou 140 m2 se nachází na okraji obce Mysliboř.

Jedná se o cihlovou novostavba, která byla zkolaudována v roce 2025 a užívána stávajícími majiteli od listopadu 2025. Řadový dům disponuje čtyřmi pokoji a je navržen s důrazem na komfort a praktičnost. Vytápění domu zajišťuje plynový kotel(radiátory), okna jsou trojskla. Dům je napojen na svoji čističku a zdrojem vody je nyní studna (od červena 2026 bude zhotovena i přípojka na veřejný vodovod). Podlahy v době jsou plovoucí + dlažba. Přestože je okolní zástavba venkovská, dopravní dostupnost je skvělá díky blízkosti vlakové stanice a četnosti autobusových spojů. Na pozemku před modem lze zrealizovat parkování až pro dvě auta. Energetická třída domu je C.

Prohlídky jsou možné po předchozí domluvě. Pro více informací o této nemovitosti nebo sjednání prohlídky nás prosím kontaktujte nebo vyplňte níže uvedený formulář. Rádi vám pomůžeme i s financováním domu.

Makléř

Máte zájem o tento dům?

Tímto, v souladu s nařízením Evropského parlamentu a Rady (EU) 2016/679, v platném znění, prohlašuji, že mi je alespoň 16 let a uděluji tak svůj souhlas se zpracováním zadaných údajů (jméno, telefon, e-mail, ip adresa) společnosti B3 Technology, s.r.o., IČ: 07330600, se sídlem Novostavby 126/23, 435 11 Lom (správce dat), za účelem předání dotazu z tohoto formuláře Vámi vybranému inzerentovi a zpětného kontaktování mé osoby. Osobní údaje bude správce zpracovávat manuálně i automaticky přímo prostřednictvím svých zaměstnanců. Informace předané tímto formulářem budou uloženy v databázi správce maximálně po dobu 10 let. Odvolání souhlasu s uložením a zpracováním poskytnutých dat lze e-mailem na info@origo-reality.cz. V případě podezření na neoprávněné použití Vámi poskytnutých údajů máte právo předat podnět k šetření Úřadu pro ochranu osobních údajů. Více informací
Chystáte se prodat nemovitost?
Pomůžeme Vám!

Přihlášení k odběru

Nenechte si ujít nejnovější nabídky prodeje rodinných domů v Mysliboři.