Prodej rodinného domu, Brno, Dolní louky, 130 m2

Dolní louky, Brno, Kníničky

22 500 000 Kč
/za nemovitost
Hypotéka od 100 561 Kč /měs. Chci hypotéku

Parametry domu

AdresaDolní louky, Brno, Kníničky
ID979836
StavbaCihlová
Stav objektuVelmi dobrý
VybavenoNe
Druh objektuSamostatný
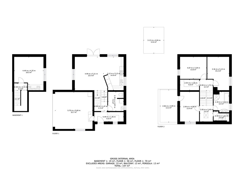
Užitná plocha130 m2
Zastavěná plocha112 m2
Podlahová plocha147 m2
Plocha pozemku544 m2
Plocha zahrady432 m2
Třída energetické náročnostiG - Mimořádně nehospodárná
Elektřina230V
PlynPlynovod
OdpadVeřejná kanalizace
KomunikaceAsfaltová
DopravaSilnice, MHD, Autobus
Garáž
Parkování
Bazén

Origo partneři v Brně

Popis

Nabízím k prodeji rodinný dům na vyhledávané adrese Dolní louky 264/36 v městské části Brno Kníničky. Tento moderní dům byl postaven v roce 2005 a vyniká svou kvalitou a designem, který splní očekávání i těch nejnáročnějších klientů.

Celková podlahová plocha domu je cca. 147 m² s dispozicí 4+kk, což umožňuje pohodlné bydlení i pro rodinu s dětmi. Zahrada poskytuje dostatečné soukromí a prostor pro odpočinek.

Dům je postaven z kvalitních materiálů, což zaručuje vysokou trvanlivost a minimální energické ztráty.
Pro parkování, je k dispozici garáž o ploše cca. 33m2 a dvě parkovací stání před ní. Celková výměra parcely je 544 m², což nabízí dostatek prostoru pro rozvoj dalších aktivit, jakými jsou například výstavba pergoly či další zahradní architektury.

Dům je umístěn v klidné části Brna s výbornou dostupností do centra. V blízkosti se nacházejí veškeré služby potřebné pro každodenní život obchody, školy, zdravotnická zařízení atd..

Kníničky jsou známé svým klidným prostředím, což dělá z této lokality velmi žádanou oblast pro bydlení. Oceníte nejen blízkost přírody a městských parků, ale i rychlý přístup k hlavním dopravním tepnám.

Tato nemovitost je vhodná pro ty, kteří hledají komfort a kvalitní bydlení v lokalitě, která patří k nejvyhledávanějším v Brně. S možností financování hypotékou je toto také skvělá investiční příležitost.

Těším se, že Vám tento dům můžu představit a pomoci Vám najít nový domov.

Makléř

Máte zájem o tento dům?

Tímto, v souladu s nařízením Evropského parlamentu a Rady (EU) 2016/679, v platném znění, prohlašuji, že mi je alespoň 16 let a uděluji tak svůj souhlas se zpracováním zadaných údajů (jméno, telefon, e-mail, ip adresa) společnosti B3 Technology, s.r.o., IČ: 07330600, se sídlem Novostavby 126/23, 435 11 Lom (správce dat), za účelem předání dotazu z tohoto formuláře Vámi vybranému inzerentovi a zpětného kontaktování mé osoby. Osobní údaje bude správce zpracovávat manuálně i automaticky přímo prostřednictvím svých zaměstnanců. Informace předané tímto formulářem budou uloženy v databázi správce maximálně po dobu 10 let. Odvolání souhlasu s uložením a zpracováním poskytnutých dat lze e-mailem na info@origo-reality.cz. V případě podezření na neoprávněné použití Vámi poskytnutých údajů máte právo předat podnět k šetření Úřadu pro ochranu osobních údajů. Více informací
Chystáte se prodat nemovitost?
Pomůžeme Vám!

Přihlášení k odběru

Nenechte si ujít nejnovější nabídky prodeje rodinných domů v Brně.