Molík reality

Pronájem bytu 2+1, Most, Jaroslava Vrchlického, 55 m2

Jaroslava Vrchlického, Most

10 500 Kč
/za měsíc
měsíční poplatky 1 900,- Kč jedna osoba + 600,- každá další osoba
Získejte výhodnou HYPOTÉKU Chci hypotéku

Parametry bytu

AdresaJaroslava Vrchlického, Most
ID202630014
Stav objektuDobrý
VybavenoAno
VlastnictvíOsobní
Užitná plocha55 m2
Třída energetické náročnostiC - Úsporná

Origo partneři v Mostě

Okna a dveře

Rekonstrukce

Popis

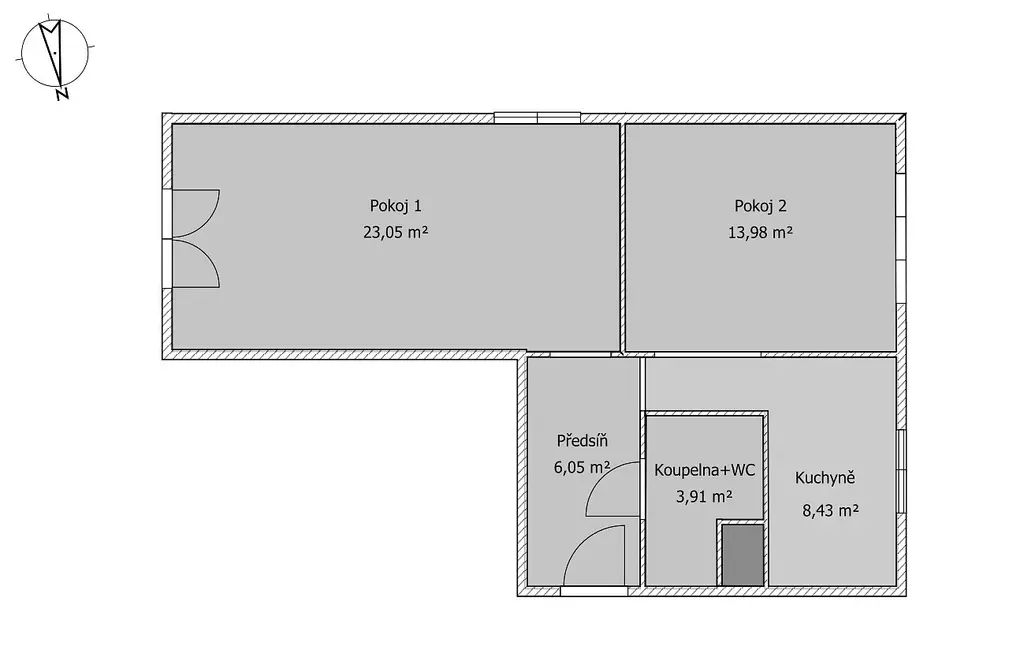
PRONÁJEM bytu 2+1, 55 m², Most, Jaroslava Vrchlického 2733

Nabízíme k pronájmu hezký byt 2+1 v klidné a žádané lokalitě města Most. Byt se nachází ve 2. patře panelového domu s výtahem a nabízí se včetně vybavení. Kuchyň disponuje kuchyňskou linkou s kombinovaným sporákem, lednicí, myčkou a dále vyvýšeným stolem s barovými židlemi. Součástí koupelny je vana včetně toalety. V dalších místnostech je několik úložných komod, skříň, postel, gauč a na chodbě oceníte prostornou vestavěnou skříň. K bytu náleží sklepní kóje v suterénu domu.

Nájemné zde činí 10.500,- Kč/měsíčně + poplatky za služby 1.900,- Kč/1 osoba, každá další osoba 600,- Kč. Elektřina a plyn se přepisují na nájemce. Vratná kauce činí 20.000,- Kč. Při podpisu rezervace se skládá provize realitní kanceláři ve výši 13.000 Kč.

Byt bude volný od 01.07.2026. V případě zájmu o prohlídku či více informací neváhejte kontaktovat makléře.

Makléř

Máte zájem o tento byt?

Tímto, v souladu s nařízením Evropského parlamentu a Rady (EU) 2016/679, v platném znění, prohlašuji, že mi je alespoň 16 let a uděluji tak svůj souhlas se zpracováním zadaných údajů (jméno, telefon, e-mail, ip adresa) společnosti B3 Technology, s.r.o., IČ: 07330600, se sídlem Novostavby 126/23, 435 11 Lom (správce dat), za účelem předání dotazu z tohoto formuláře Vámi vybranému inzerentovi a zpětného kontaktování mé osoby. Osobní údaje bude správce zpracovávat manuálně i automaticky přímo prostřednictvím svých zaměstnanců. Informace předané tímto formulářem budou uloženy v databázi správce maximálně po dobu 10 let. Odvolání souhlasu s uložením a zpracováním poskytnutých dat lze e-mailem na info@origo-reality.cz. V případě podezření na neoprávněné použití Vámi poskytnutých údajů máte právo předat podnět k šetření Úřadu pro ochranu osobních údajů. Více informací
Chystáte se prodat nemovitost?
Pomůžeme Vám!

Přihlášení k odběru

Nenechte si ujít nejnovější nabídky pronájmu bytů 2+1 v Mostě.