Pronájem bytu 2+1, Praha - Vokovice, Kamerunská, 53 m2

Kamerunská, Vokovice - Praha 6

23 500 Kč
/za měsíc
vratná jistota, náklady na bydlení 6209 Kč, poplatek za podnájem
Získejte výhodnou HYPOTÉKU Chci hypotéku

Parametry bytu

AdresaKamerunská, Vokovice - Praha 6
IDN3070
StavbaCihlová
Stav objektuVelmi dobrý
Patro6. z 6
VybavenoAno
Typ objektuPatrový
Lokalita objektuKlidná část obce
VlastnictvíOsobní
Užitná plocha53 m2
Podlahová plocha53 m2
Elektřina230V
TopeníÚstřední dálkové
Balkon
Sklep
Výtah

Origo partneři v Praze 6

Stěhovací služby

Výkup a prodej starého nábytku

Popis

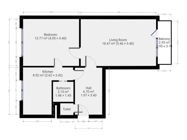
K dlouhodobému podnájmu nabízíme byt o dispozici 2+1 v atraktivní lokalitě Praha - Vokovice. Byt o celkové výměře 53 m2 se nachází v šestém patře panelového domu s výtahem. K bytu patří i balkon a sklep.

Byt se nabízí částečně vybavený. Kuchyně disponuje lednicí, elektrickou troubou, plynovým sporákem, digestoří a mikrovlnnou troubou. V kuchyni je také jídelní stůl s židlemi. Obývací pokoj je zařízen pohovkou a šatní skříní. V druhém pokoji je také sedací souprava. Součástí koupelny je vana, umyvadlo a pračka. Toaleta je oddělená.

V okolí domu jsou restaurace, supermarket Billa, základní a mateřská škola, dětská hřiště, pošta atd. Stanice metra Bořislavka je vzdálená pět minut chůze od domu.

Majitel preferuje zájemce bez domácích mazlíčků.

Uvedena energetická kategorie G, jelikož nemáme k dispozici PENB.

Byt pronajímá Ideální nájemce - služba, se kterou budete bydlet bezstarostně a za férových podmínek. Když se něco přihodí, k dispozici jsou správci, kteří s vámi vše vyřeší. Pomůžeme s veškerou administrativou, s nastavením plateb a zajistíme vám speciální pojištění. Pojďte bydlet s námi!

Makléř

Máte zájem o tento byt?

Tímto, v souladu s nařízením Evropského parlamentu a Rady (EU) 2016/679, v platném znění, prohlašuji, že mi je alespoň 16 let a uděluji tak svůj souhlas se zpracováním zadaných údajů (jméno, telefon, e-mail, ip adresa) společnosti B3 Technology, s.r.o., IČ: 07330600, se sídlem Novostavby 126/23, 435 11 Lom (správce dat), za účelem předání dotazu z tohoto formuláře Vámi vybranému inzerentovi a zpětného kontaktování mé osoby. Osobní údaje bude správce zpracovávat manuálně i automaticky přímo prostřednictvím svých zaměstnanců. Informace předané tímto formulářem budou uloženy v databázi správce maximálně po dobu 10 let. Odvolání souhlasu s uložením a zpracováním poskytnutých dat lze e-mailem na info@origo-reality.cz. V případě podezření na neoprávněné použití Vámi poskytnutých údajů máte právo předat podnět k šetření Úřadu pro ochranu osobních údajů. Více informací
Chystáte se prodat nemovitost?
Pomůžeme Vám!