Pronájem obchodního prostoru, Ludgeřovice, Hlučínská, 60 m2 (ID: 2026068)

Hlučínská, Ludgeřovice

18 000 Kč
/za měsíc
Získejte výhodnou HYPOTÉKU Chci hypotéku

Parametry nemovitosti

AdresaHlučínská, Ludgeřovice
StavbaSkeletová
Stav objektuNovostavba
Patro1.
Užitná plocha60 m2
Parkování

Origo partneři v Ludgeřovicích

Popis

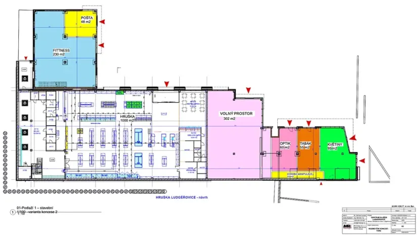
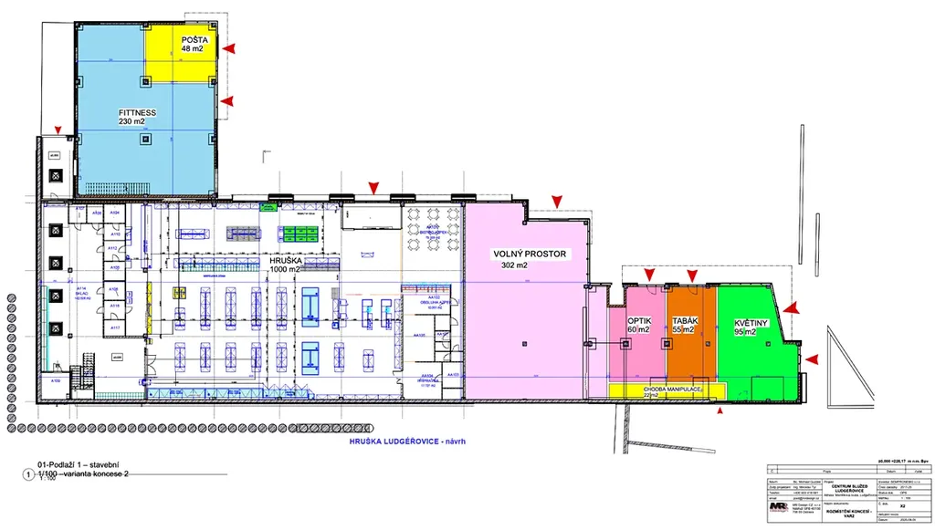
Dovolujeme si Vám nabídnout obchodní prostory v připravovaném projektu Centra služeb v Ludgeřovicích s plánovaným dokončením ve 2. čtvrtletí roku 2026.

Samotné centrum bude mít moderní a poutavý design a strategickou polohu v centru Ludgeřovic, v blízkosti kostela a hlavní silnice. Hlavním nájemcem a zároveň investorem je společnost Hruška, která zde otevře moderní prodejnu reflektující nový designový směr společnosti. Dále zde vznikne velké lékařské středisko, fitness centrum, bistro, pošta, trafika a s dalšími nájemci aktivně jednáme.

Nabízený prostor má výměru 60 m², je umístěn přímo u hlavní prodejny Hruška a disponuje velkými výlohami. Prostor bude ve stavu „shell & core“, případně je možná dohoda o úpravách formou kontribuce.

V případě dotazů mě neváhejte kontaktovat.

Makléř

Máte zájem o tuto nemovistost?

Tímto, v souladu s nařízením Evropského parlamentu a Rady (EU) 2016/679, v platném znění, prohlašuji, že mi je alespoň 16 let a uděluji tak svůj souhlas se zpracováním zadaných údajů (jméno, telefon, e-mail, ip adresa) společnosti B3 Technology, s.r.o., IČ: 07330600, se sídlem Novostavby 126/23, 435 11 Lom (správce dat), za účelem předání dotazu z tohoto formuláře Vámi vybranému inzerentovi a zpětného kontaktování mé osoby. Osobní údaje bude správce zpracovávat manuálně i automaticky přímo prostřednictvím svých zaměstnanců. Informace předané tímto formulářem budou uloženy v databázi správce maximálně po dobu 10 let. Odvolání souhlasu s uložením a zpracováním poskytnutých dat lze e-mailem na info@origo-reality.cz. V případě podezření na neoprávněné použití Vámi poskytnutých údajů máte právo předat podnět k šetření Úřadu pro ochranu osobních údajů. Více informací
Chystáte se prodat nemovitost?
Pomůžeme Vám!