Remax Monarcha

Pronájem rodinného domu, Olomouc, Větrná, 127 m2

Větrná, Olomouc, Nedvězí

35 000 Kč
/za měsíc
Získejte výhodnou HYPOTÉKU Chci hypotéku

Parametry domu

AdresaVětrná, Olomouc, Nedvězí
IDPN-260401
StavbaCihlová
Stav objektuNovostavba
Užitná plocha127 m2
Plocha pozemku385 m2
Garáž
Parkování

Origo partneři v Olomouci

Popis

Exkluzivně nabízíme k pronájmu rodinný dům v klidné a zajímavé městské části Nedvězí, na ulici Větrná.

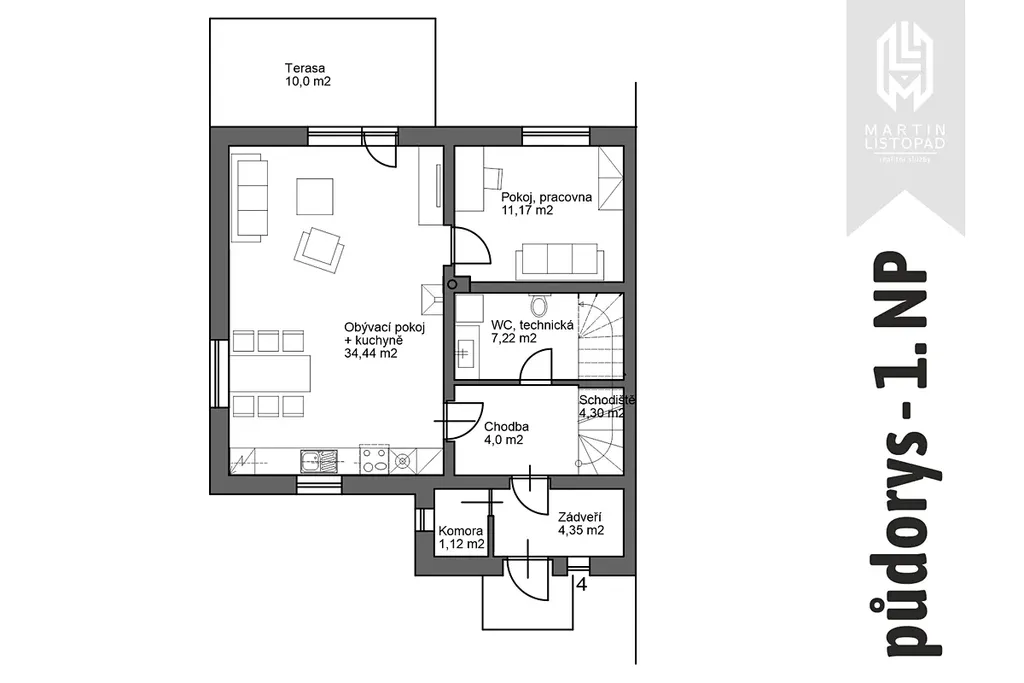
Rodinný dům je nízkoenergetická stavba v tradičním stylu, umístěním řešena jako dvojdomek se sedlovou střechou. Okna a vstupní dveře jsou plastová s trojskly. Dům je dispozičně řešen jako 5+kk o celkové užitné ploše 127 m2 + garáž pro dva automobily. V přízemí se nachází obývací pokoj s kuchyňským koutem, krytá terasa se vstupem do obývacího pokoje, pracovna, technická místnost se sprchovým koutem, umyvadlem a WC, zádveří, šatna a schodiště. V druhém nadzemním podlaží jsou situovány 2 pokoje, ložnice a prostorná koupelna se sprchovým koutem, vanou, umyvadlem a WC. Nemovitost má následující zařízení interiérů: kuchyňskou linku osazenou kvalitními vestavěnými spotřebiči (myčka, lednice s mrazákem, indukční sklokeramická deska, elektrická a mikrovlnná trouba, plovoucí podlahy kombinované s dlažbou, moderní zařizovací prvky koupelen, nadstandardní interiérové dveře vč. zárubní a vestavěné skříně v pokojích. Topení je teplovodní radiátorové v kombinaci s kondenzačním plynovým kotlem, v koupelně a technické místnosti jsou umístěny topné žebříky.

Dům stojí na samostatném pozemku o velikosti 385 m2.
Nabízíme vám moderní bydlení v nízkoenergetickém rodinném domě ve velmi klidné a zajímavé lokalitě s dojezdovou vzdáleností 5 minut do centra Olomouce, v blízkosti hlavního dálničního tahu na Brno, Ostravu a Hradec Králové.

Dům se pronajímá jako částečně zařízený a bude připraven k nastěhování 01.5.2026.

Nájemné činí: 35.000,- Kč
Zálohy na energie a služby: zálohy na vodu 1.500,- Kč, plyn a elektřina převádí se na nájemce
Vratná kauce 60.000,- Kč
Provize RK 40.000,-Kč

Pro více informací kontaktujte makléře.

Makléř

Máte zájem o tento dům?

Tímto, v souladu s nařízením Evropského parlamentu a Rady (EU) 2016/679, v platném znění, prohlašuji, že mi je alespoň 16 let a uděluji tak svůj souhlas se zpracováním zadaných údajů (jméno, telefon, e-mail, ip adresa) společnosti B3 Technology, s.r.o., IČ: 07330600, se sídlem Novostavby 126/23, 435 11 Lom (správce dat), za účelem předání dotazu z tohoto formuláře Vámi vybranému inzerentovi a zpětného kontaktování mé osoby. Osobní údaje bude správce zpracovávat manuálně i automaticky přímo prostřednictvím svých zaměstnanců. Informace předané tímto formulářem budou uloženy v databázi správce maximálně po dobu 10 let. Odvolání souhlasu s uložením a zpracováním poskytnutých dat lze e-mailem na info@origo-reality.cz. V případě podezření na neoprávněné použití Vámi poskytnutých údajů máte právo předat podnět k šetření Úřadu pro ochranu osobních údajů. Více informací
Chystáte se prodat nemovitost?
Pomůžeme Vám!

Přihlášení k odběru

Nenechte si ujít nejnovější nabídky pronájmu rodinných domů v Olomouci.