Pronájem skladu, Ústí nad Labem, U Tonasa, 572 m2 (ID: 2023379)

U Tonasa, Ústí nad Labem, Neštěmice

Cena na vyžádání
/za metr čtvereční / měsíc
Získejte výhodnou HYPOTÉKU Chci hypotéku

Parametry nemovitosti

AdresaU Tonasa, Ústí nad Labem, Neštěmice
StavbaCihlová
Stav objektuDobrý
Patro1. z 4
Lokalita objektuOkraj obce
Užitná plocha572 m2
Elektřina230V, 400V
PlynPlynovod
OdpadVeřejná kanalizace
TopeníLokální plynové
KomunikaceBetonová, Dlážděná, Asfaltová
TelekomunikaceTelefon, Internet
DopravaVlak, Silnice, MHD, Autobus
VodaVodovod
Zdroj topeníWAW
Výtah

Origo partneři v Ústí nad Labem

Okna a dveře

Popis

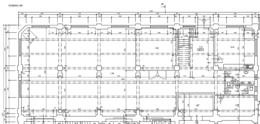
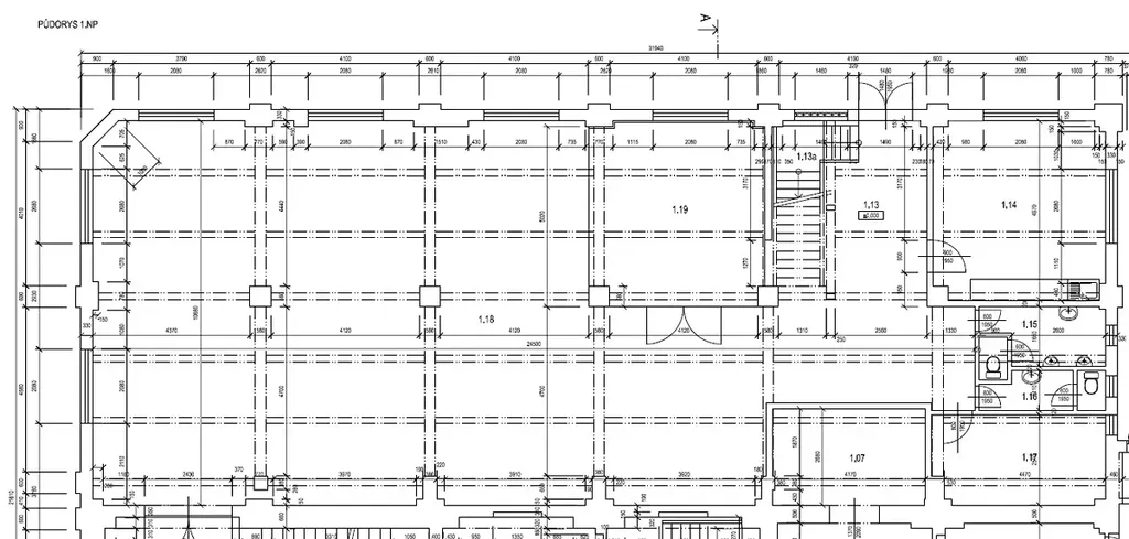
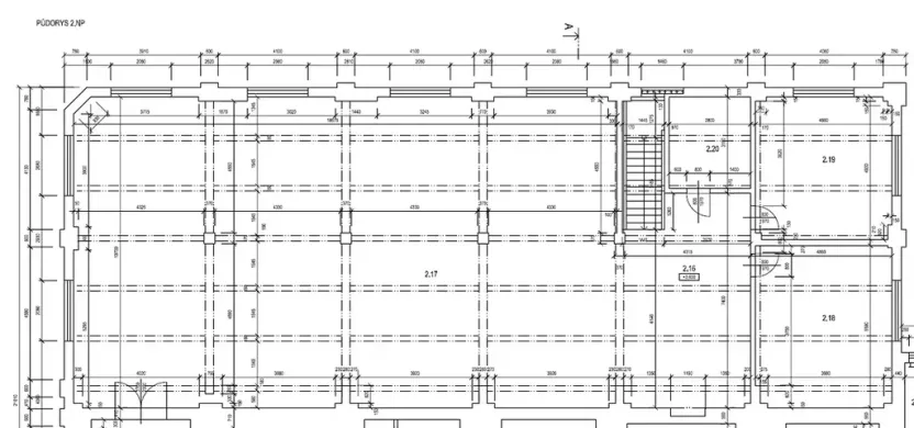
Pronajmeme výrobní nebi skladovací prostor v v 1.NP a 2.NP v budově č.g.310b. Budova se nachází v průmyslové zóně TONASO Neštěmice.

Stručný popis:
- Objekt bývalých měřičských dílen.
- Celková plocha ve dvou podlažích 572 m2.
- Elektřina, voda, kanalizace, plyn.
- Vytápění plynem.
- Možnost připojení k internetu.
- Vertikální manipulace mezi patry je možná pomocí nákladního výtahu.
- V prostoru jsou k dispozici kanceláře a sociální zázemí.
- U budovy je menší nákladní rampa.

Možnost i pronájmu dalších skladových nebo výrobních prostor, kanceláři a venkovních ploch nacházejících se v okolí haly.

Více informací poskytneme na osobní prohlídce.

Makléř

Máte zájem o tuto nemovistost?

Tímto, v souladu s nařízením Evropského parlamentu a Rady (EU) 2016/679, v platném znění, prohlašuji, že mi je alespoň 16 let a uděluji tak svůj souhlas se zpracováním zadaných údajů (jméno, telefon, e-mail, ip adresa) společnosti B3 Technology, s.r.o., IČ: 07330600, se sídlem Novostavby 126/23, 435 11 Lom (správce dat), za účelem předání dotazu z tohoto formuláře Vámi vybranému inzerentovi a zpětného kontaktování mé osoby. Osobní údaje bude správce zpracovávat manuálně i automaticky přímo prostřednictvím svých zaměstnanců. Informace předané tímto formulářem budou uloženy v databázi správce maximálně po dobu 10 let. Odvolání souhlasu s uložením a zpracováním poskytnutých dat lze e-mailem na info@origo-reality.cz. V případě podezření na neoprávněné použití Vámi poskytnutých údajů máte právo předat podnět k šetření Úřadu pro ochranu osobních údajů. Více informací
Chystáte se prodat nemovitost?
Pomůžeme Vám!

Přihlášení k odběru

Nenechte si ujít nejnovější nabídky pronájmu skladů v Ústí nad Labem.