Prodej rodinného domu, Ovčáry, Obecní, 93 m2

Obecní, Ovčáry

9 290 000 Kč
/za nemovitost
Hypotéka od 41 521 Kč /měs. Chci hypotéku

Parametry domu

AdresaObecní, Ovčáry
ID25299
StavbaCihlová
Stav objektuNovostavba
VybavenoNe
Typ objektuPatrový
Druh objektuŘadový
Lokalita objektuKlidná část obce
Užitná plocha93 m2
Plocha pozemku192 m2
Třída energetické náročnostiB - Velmi úsporná
Ukazatel energetické náročnosti72 kWh/m2 za rok
Elektřina230V, 400V
OdpadVeřejná kanalizace
KomunikaceDlážděná, Asfaltová
DopravaSilnice, Autobus
VodaVodovod
Terasa
Výtah
Parkování

Origo partneři v Ovčárech

Popis

Nabízíme k prodeji novostavbu řadového rodinného domu o dispozici 4+kk v obci Ovčáry, která je aktuálně ve výstavbě s plánovaným dokončením 03/2027. Jedná se o moderní bydlení, kde bude vše zcela nové, navržené s důrazem na funkčnost, kvalitu a současný design, zasazené do klidné a příjemné lokality.

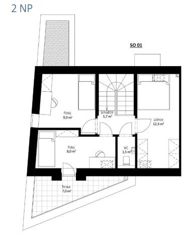
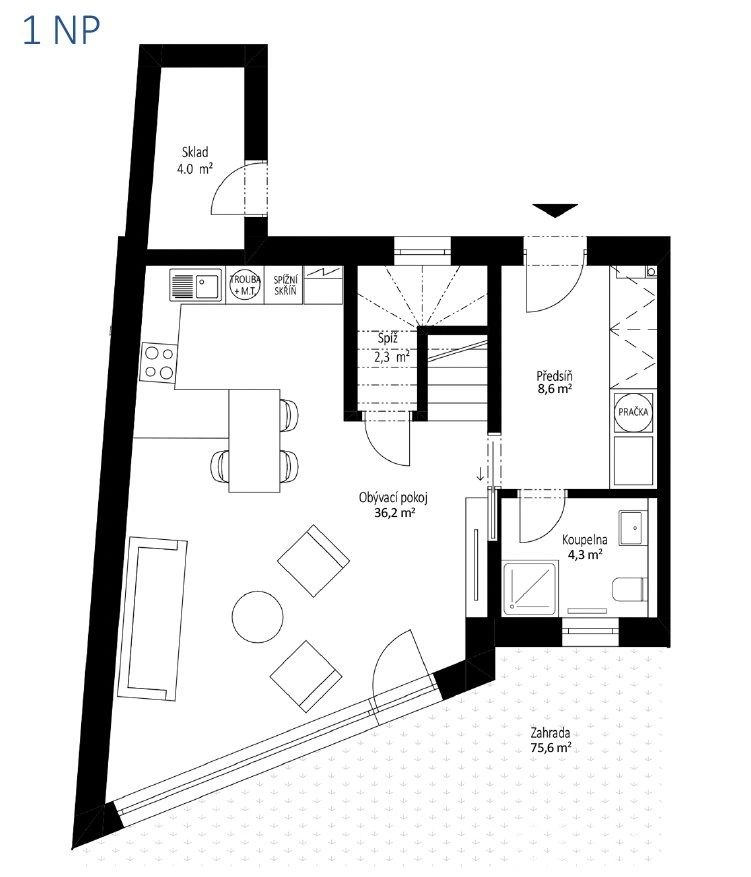
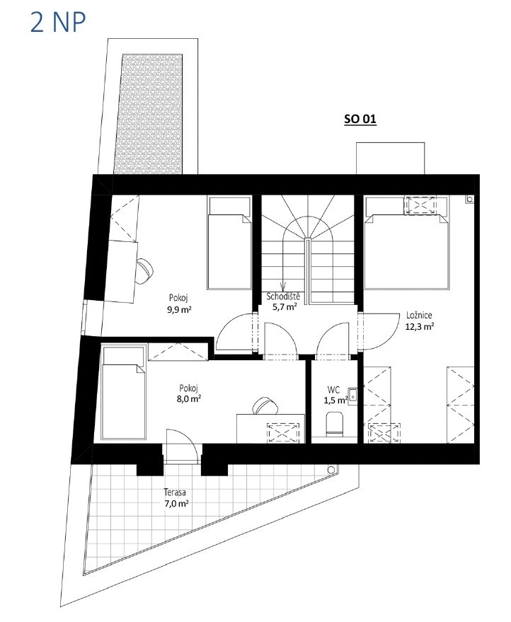
Dům je součástí tří samostatných řadových rodinných domů, přičemž každý z nich stojí na vlastním pozemku a má vlastní přípojky elektřiny, vodovodu i kanalizace. Nabízen je pouze jeden z těchto domů, což z něj činí zajímavou a omezenou příležitost. Dispozice 4+kk nabízí ideální rozložení prostoru pro rodinné bydlení, kdy v přízemí dominuje prostorný obývací pokoj s kuchyňským koutem o velikosti 36,2 m² s přímým vstupem na zahradu, dále zde najdete předsíň, koupelnu, praktickou spíž a samostatný sklad. V patře se nachází ložnice, dva další pokoje, samostatné WC a vstup na terasu.

Celková užitná plocha domu činí 92,8 m², podlahová plocha 99,2 m², k domu náleží zahrada o velikosti 75,6 m² a terasa 7,0 m². Celková plocha pozemku je 192 m². Samozřejmostí jsou dvě parkovací stání přímo u domu.

Dům bude dokončen ve vysokém standardu, který zahrnuje například cihlové pásky Klinker na fasádě, falcovanou střešní krytinu v antracitové barvě, moderní silikonovou omítku a okna s izolačním trojsklem. Interiér nabídne kvalitní vinylové podlahy značky Karndean, interiérové dveře Sapeli, plastová okna Vekra a moderně řešenou koupelnu s velkoformátovými obklady, sprchovým koutem, závěsným WC a kvalitní sanitou. Vytápění zajištěno tepelným čerpadlem a podlahovým topením.

Obec Ovčáry jsou ideálním místem pro ty, kteří chtějí bydlet v klidu menší obce, a přitom mít město na dosah. Najdete zde školu, školku, dětské i fotbalové hřiště, knihovnu a kulturní zázemí. Milovníci přírody ocení blízké jezero Mlejnek, turistické stezky i cyklotrasy vedoucí malebnou krajinou. Díky výbornému autobusovému spojení jste během chvilky v Kolíně a díky napojení na dálnici i rychle v Praze. Tento dům je skvělou volbou pro rodinu, která hledá moderní, úsporné bydlení s atmosférou domova a klidem venkova.

V případě zájmu nebo bližší informace se neváhejte ozvat.

Makléř

Máte zájem o tento dům?

Tímto, v souladu s nařízením Evropského parlamentu a Rady (EU) 2016/679, v platném znění, prohlašuji, že mi je alespoň 16 let a uděluji tak svůj souhlas se zpracováním zadaných údajů (jméno, telefon, e-mail, ip adresa) společnosti B3 Technology, s.r.o., IČ: 07330600, se sídlem Novostavby 126/23, 435 11 Lom (správce dat), za účelem předání dotazu z tohoto formuláře Vámi vybranému inzerentovi a zpětného kontaktování mé osoby. Osobní údaje bude správce zpracovávat manuálně i automaticky přímo prostřednictvím svých zaměstnanců. Informace předané tímto formulářem budou uloženy v databázi správce maximálně po dobu 10 let. Odvolání souhlasu s uložením a zpracováním poskytnutých dat lze e-mailem na info@origo-reality.cz. V případě podezření na neoprávněné použití Vámi poskytnutých údajů máte právo předat podnět k šetření Úřadu pro ochranu osobních údajů. Více informací
Chystáte se prodat nemovitost?
Pomůžeme Vám!

Přihlášení k odběru

Nenechte si ujít nejnovější nabídky prodeje rodinných domů v Ovčárech (okr. Kolín).