Pronájem bytu 4+kk, Praha - Nové Město, Kateřinská, 161 m2

Kateřinská, Praha 2, Nové Město

46 000 Kč
/za měsíc
Zálohy na služby ve výši Kč 2.000,-Kč, každá další osoba + 1.500,-Kč, převod elektřiny a plynu
Získejte výhodnou HYPOTÉKU Chci hypotéku

Parametry bytu

AdresaKateřinská, Praha 2, Nové Město
ID20033
StavbaCihlová
Stav objektuVelmi dobrý
Patro3. z 5
VybavenoAno
Typ objektuPatrový
VlastnictvíOsobní
Užitná plocha161 m2
Podlahová plocha161 m2
Třída energetické náročnostiD - Méně úsporná
PlynPlynovod
OdpadVeřejná kanalizace
TopeníLokální plynové
Zdroj topeníPlynový kotel
Zdroj teplé vodyPlynový kotel
Bezbarierový přístup

Origo partneři v Praze 2

Stěhovací služby

Výkup a prodej starého nábytku

Pojištění a finance

Popis

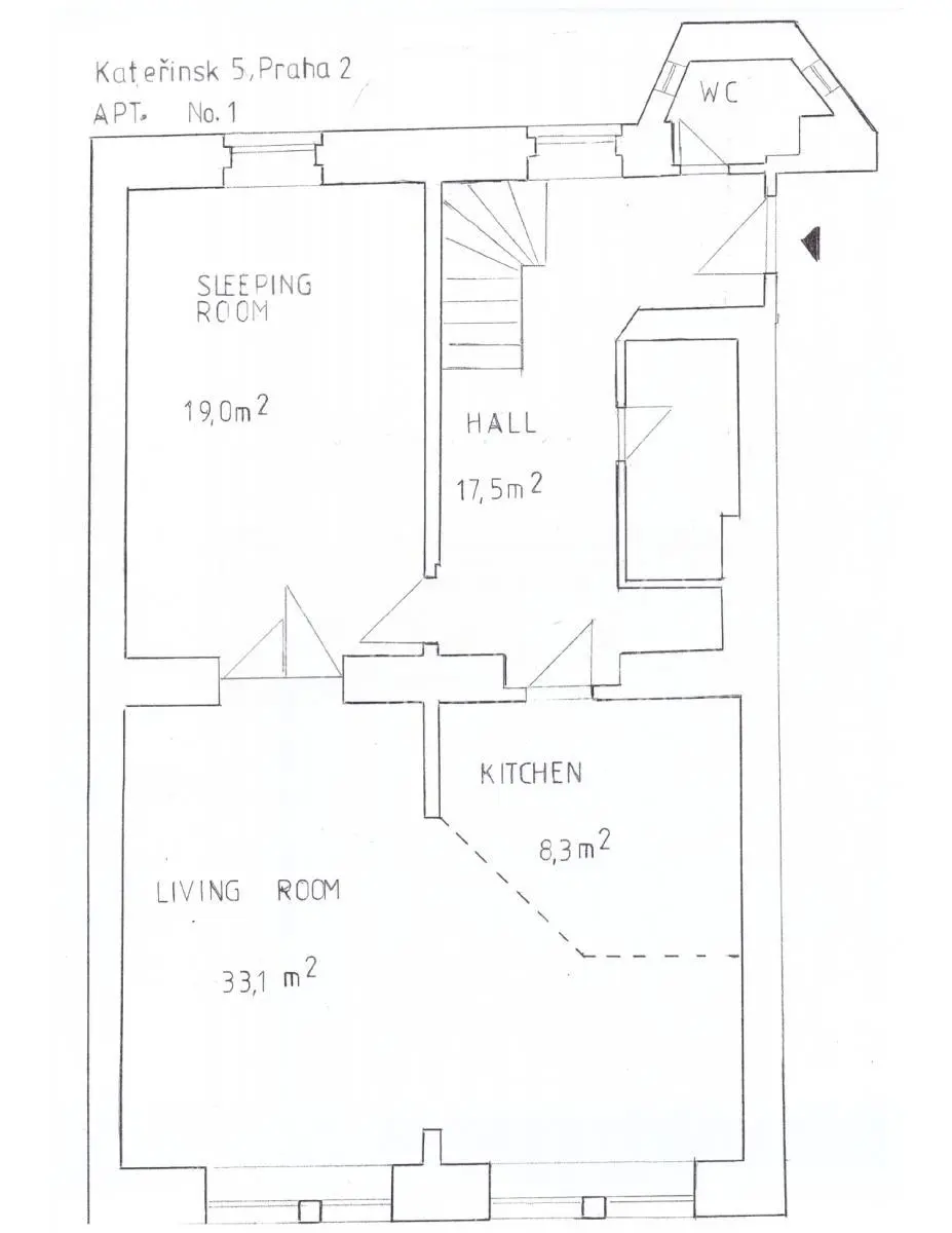
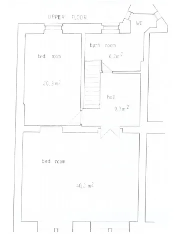
Nabízíme k pronájmu krásný mezonetový byt v prestižní ulici Kateřinská, v samém centru Prahy. Tento prostorný a světlý byt o podlahové ploše 161 m and sup2; je vymezen ve 2. a 3. nadzemním podlaží a nabízí komfortní bydlení s dostatkem prostoru i soukromí.

Dispozice zahrnuje: tři ložnice, velkorysý obývací pokoj propojený s plně vybavenou kuchyní a jídelnou a dvě koupelny. Byt je kompletně zařízen nábytkem a vybaven všemi potřebnými spotřebiči, takže je připraven k okamžitému nastěhování viz fotodokumentace.

Lokalita nabízí příjemně klidné bydlení s výbornou dostupností do centra. V pěší vzdálenosti se nachází stanice metra I. P. Pavlova a Karlovo náměstí, stejně jako široká nabídka obchodů, restaurací a kaváren. Pro relaxaci jsou v blízkosti parky Botanická zahrada Albertov a Kateřinská zahrada.

Dům je velmi dobře udržovaný a klidný, s důrazem na pohodové bydlení rezidentů. K dispozici je výtah (z mezipatra, přístup tedy není zcela bezbariérový).

Byt je ideální pro rodinu, případně sdílené bydlení klidných pracujících či studujících, kteří hledají dlouhodobé a nerušené zázemí.

Vytápění a ohřev vody zajišťuje vlastní plynový kotel.

Zálohy na služby činí 2.000 Kč pro 1 osobu, každá další osoba +1.500 Kč. Elektřina a plyn se převádí na nájemce.

K nastěhování od poloviny července.

V případě zájmu o více informací, dispoziční plánek nebo domluvení prohlídky mě neváhejte kontaktovat.

Makléř

Máte zájem o tento byt?

Tímto, v souladu s nařízením Evropského parlamentu a Rady (EU) 2016/679, v platném znění, prohlašuji, že mi je alespoň 16 let a uděluji tak svůj souhlas se zpracováním zadaných údajů (jméno, telefon, e-mail, ip adresa) společnosti B3 Technology, s.r.o., IČ: 07330600, se sídlem Novostavby 126/23, 435 11 Lom (správce dat), za účelem předání dotazu z tohoto formuláře Vámi vybranému inzerentovi a zpětného kontaktování mé osoby. Osobní údaje bude správce zpracovávat manuálně i automaticky přímo prostřednictvím svých zaměstnanců. Informace předané tímto formulářem budou uloženy v databázi správce maximálně po dobu 10 let. Odvolání souhlasu s uložením a zpracováním poskytnutých dat lze e-mailem na info@origo-reality.cz. V případě podezření na neoprávněné použití Vámi poskytnutých údajů máte právo předat podnět k šetření Úřadu pro ochranu osobních údajů. Více informací
Chystáte se prodat nemovitost?
Pomůžeme Vám!
Theleadway banner