Pronájem bytu 1+1, Cebiv, 36 m2

Cebiv

8 000 Kč
/za měsíc
Získejte výhodnou HYPOTÉKU Chci hypotéku

Parametry bytu

AdresaCebiv
ID1323
StavbaCihlová
Stav objektuDobrý
Patro1. z 3
Typ objektuPatrový
VlastnictvíOsobní
Užitná plocha36 m2
Podlahová plocha36 m2
Elektřina230V, 400V
OdpadVeřejná kanalizace
TopeníÚstřední tuhá paliva
KomunikaceZpevněná, Asfaltová
DopravaAutobus
VodaMístní zdroj vody
Topné tělesoRadiátory
Zdroj topeníKotel na tuhá paliva
Zdroj teplé vodyKotel na tuhá paliva
Bezbarierový přístup

Origo partneři v Cebivi

Stěhovací služby

Pojištění a finance

Popis

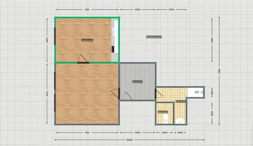
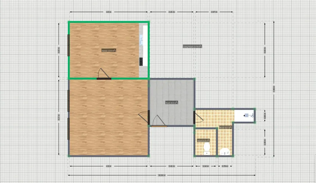
Nabízíme k pronájmu byt o dispozici 1+1 v obci Cebiv na adrese Cebiv 5. Bytová jednotka se nachází v klidné lokalitě a je vhodná pro jednotlivce či pár hledající dostupné bydlení.
Byt disponuje samostatnou kuchyní, kde je k dispozici kuchyňská linka se dřezem a sporákem. Prostor kuchyně nabízí základní zázemí pro vaření. Obytná místnost je světlá díky oknům s dostatkem denního světla a působí vzdušně.
Koupelna se sprchovým koutem a toaleta se nachází na společné chodbě domu.

Tato lokalita spojuje klidné bydlení rezidenčního charakteru se základním občanským vybavením přímo v místě. K dispozici je obecní úřad, pošta, prodejna smíšeného zboží, pohostinství, kulturní dům a zázemí pro volnočasové aktivity. Dopravní obslužnost je zajištěna autobusovým i vlakovým spojením. Širší občanská vybavenost a služby jsou dostupné zejména ve Stříbře, které je vzdáleno přibližně 10 km, případně v Bezdružicích a Konstantinových Lázních.
Neváhejte nás kontaktovat pro více informací.

Hledáme slušné a pracující nájemníky bez exekucí, se zájmem o dlouhodobý pronájem.
Volný ihned.

Čisté nájemné: 8 000,- Kč

Zálohy:
Studená voda: 700,- Kč
Teplo: 1 900,- Kč
Elektřina: 1 800,- Kč

Celkem zálohy za 1 osobu: 4 400,- Kč
Každá další osoba: 700,- Kč
Celkem nájemné včetně záloh za 1 osobu: 12 400,- Kč

Kauce: 16 000,- Kč
Provize: 5 000,- Kč

Makléř

Máte zájem o tento byt?

Tímto, v souladu s nařízením Evropského parlamentu a Rady (EU) 2016/679, v platném znění, prohlašuji, že mi je alespoň 16 let a uděluji tak svůj souhlas se zpracováním zadaných údajů (jméno, telefon, e-mail, ip adresa) společnosti B3 Technology, s.r.o., IČ: 07330600, se sídlem Novostavby 126/23, 435 11 Lom (správce dat), za účelem předání dotazu z tohoto formuláře Vámi vybranému inzerentovi a zpětného kontaktování mé osoby. Osobní údaje bude správce zpracovávat manuálně i automaticky přímo prostřednictvím svých zaměstnanců. Informace předané tímto formulářem budou uloženy v databázi správce maximálně po dobu 10 let. Odvolání souhlasu s uložením a zpracováním poskytnutých dat lze e-mailem na info@origo-reality.cz. V případě podezření na neoprávněné použití Vámi poskytnutých údajů máte právo předat podnět k šetření Úřadu pro ochranu osobních údajů. Více informací
Chystáte se prodat nemovitost?
Pomůžeme Vám!
Theleadway banner

Přihlášení k odběru

Nenechte si ujít nejnovější nabídky pronájmu bytů 1+1 v Cebivi.