Prodej rodinného domu, Praha - Suchdol, Stržná, 233 m2 (ID: 2021544)

Stržná, Praha 6, Suchdol

16 500 000 Kč
/za nemovitost
Včetně realitního i právního servisu
Hypotéka od 73 745 Kč /měs. Chci hypotéku

Parametry domu

AdresaStržná, Praha 6, Suchdol
ID20013
StavbaCihlová
Stav objektuDobrý
VybavenoAno
Typ objektuPatrový
Druh objektuŘadový
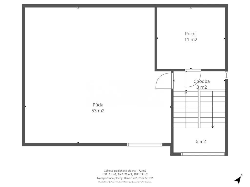
Užitná plocha233 m2
Zastavěná plocha99 m2
Podlahová plocha233 m2
Plocha pozemku401 m2
Plocha zahrady302 m2
Třída energetické náročnostiE - Nehospodárná
Elektřina230V, 400V
PlynPlynovod
OdpadVeřejná kanalizace
TopeníLokální plynové
KomunikaceAsfaltová
TelekomunikaceTelefon, Internet
DopravaSilnice, MHD, Autobus
Topné tělesoRadiátory
Zdroj topeníPlynový kotel
Garáž
Bezbarierový přístup

Origo partneři v Praze 6

Stěhovací služby

Výkup a prodej starého nábytku

Pojištění a finance

Popis

Nabízíme k prodeji rodinný dům o velkorysé užitné ploše 233 m2, v žádané a klidné lokalitě Praha 6, Suchdol. Dům se nachází ulici Stžná, v těsné blízkosti veškeré občanské vybavenosti.

Dům je postaven na vlastním pozemku o výměře 401 m2, je kompletně oplocen. Je napojen na veškeré inženýrské sítě ( plyn, elektřina, obecní vodovod a veřejná kanalizace). Na pozemku dále naleznete garáž s výjezdem přímo na ulici.

Nemovitost je celkově dobrém udržovaném stavu. Přesto je nutná kompletní rekonstrukce celého domu. V poslední patře se nachází prostorná půda a bylo v plánu dostavba posledního patra. K tomuto záměru existuje kompletní stavební dokumentace.

V blízkosti domu a v pěším dosahu se nachází mateřská škola, základní škola, obchody s potravinami, zdravotnické zařízení, lékárna, restaurace, plavecký bazén, komunitní zahrada a sportovní zařízení.
Výborné dopravní spojení do centra Prahy zajišťují různé autobusové linky s konečnou u stanice metra trasy A - Dejvická, V budoucnu se plánuje propojení Suchdola tramvajovou tratí.

Nemovitost není zatížena žádným omezením vlastnického práva, je možné ji financovat hypotečním úvěrem, který který vám rádi a zdarma pomůžeme zařídit.

Tato nemovitost představuje velmi dobrý investiční záměr jak pro investory, tak i pro příjemné bydlení rodiny s dětmi..

Velmi rád vás touto nemovitostí osobně provedu na prohlídce. Neváhejte mne kontaktovat.

Makléř

Máte zájem o tento dům?

Tímto, v souladu s nařízením Evropského parlamentu a Rady (EU) 2016/679, v platném znění, prohlašuji, že mi je alespoň 16 let a uděluji tak svůj souhlas se zpracováním zadaných údajů (jméno, telefon, e-mail, ip adresa) společnosti B3 Technology, s.r.o., IČ: 07330600, se sídlem Novostavby 126/23, 435 11 Lom (správce dat), za účelem předání dotazu z tohoto formuláře Vámi vybranému inzerentovi a zpětného kontaktování mé osoby. Osobní údaje bude správce zpracovávat manuálně i automaticky přímo prostřednictvím svých zaměstnanců. Informace předané tímto formulářem budou uloženy v databázi správce maximálně po dobu 10 let. Odvolání souhlasu s uložením a zpracováním poskytnutých dat lze e-mailem na info@origo-reality.cz. V případě podezření na neoprávněné použití Vámi poskytnutých údajů máte právo předat podnět k šetření Úřadu pro ochranu osobních údajů. Více informací
Chystáte se prodat nemovitost?
Pomůžeme Vám!
Theleadway banner

Přihlášení k odběru

Nenechte si ujít nejnovější nabídky prodeje rodinných domů v Praze 6.