Prodej rodinného domu, Strachotín, Sklepní, 285 m2 (ID: 2021512)

Sklepní, Strachotín

9 900 000 Kč
/za nemovitost
včetně provize
Hypotéka od 44 247 Kč /měs. Chci hypotéku

Parametry domu

AdresaSklepní, Strachotín
ID03859
StavbaCihlová
Stav objektuVelmi dobrý
VybavenoAno
Druh objektuŘadový
Lokalita objektuKlidná část obce
Užitná plocha285 m2
Podlahová plocha285 m2
Plocha pozemku140 m2
Třída energetické náročnostiG - Mimořádně nehospodárná
Sklep
Výtah
Parkování

Origo partneři v Strachotíně

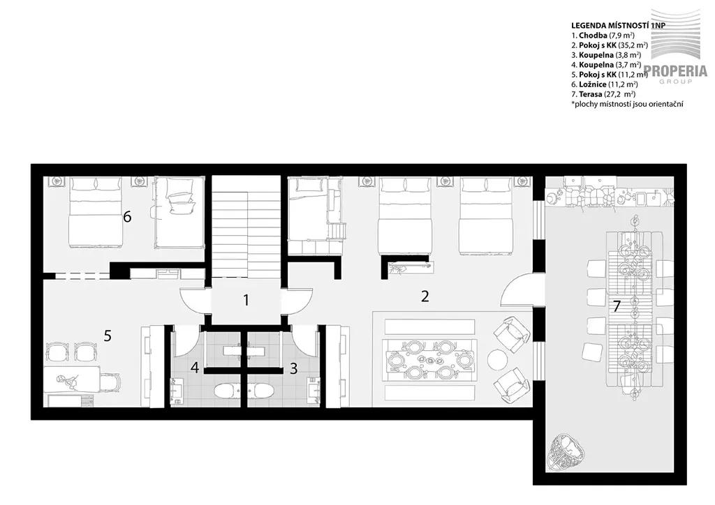
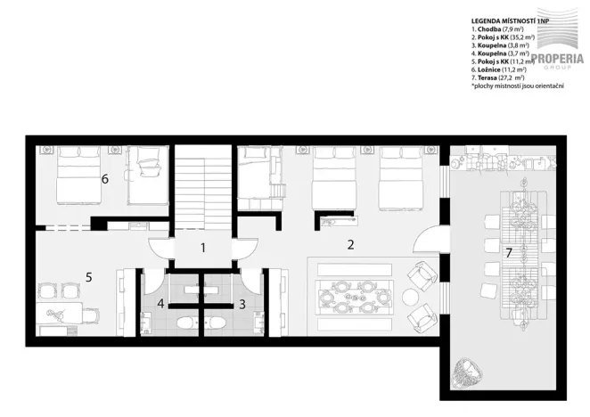
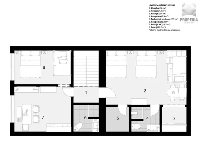
Popis

Lokalita: Nachází se na Sklepní ulici v obci Strachotín, v blízkosti oblíbené turistické destinace Pálava.

Plocha: Zastavěná plocha činí 95 m², celkový pozemek má rozlohu 132 m².

Stav: Nemovitost prošla kompletní rekonstrukcí (vč. nástavby + přístavby) v roce 2011

Kapacita: Penzion nabízí 23 lůžek, rozdělených do čtyř apartmánů.

Parkování: kupní cena zahrnuje parcelu pro parkování 4 vozidel cca 160 metrů od penzionu, další parkovací stání přímo před penzionem.

Vybavení: Vinný sklep, společenská místnost s krbem, kuchyňský kout a zastřešená terasa.

Apartmány: Každý má vlastní koupelnu, wc a plně vybavenou kuchyň.

Vytápění: Teplovodní podlahové topení napojené na elektrický kotel, ohřev vody přes elektrické bojlery.

Možnost pokračování provozu: Nemovitost je aktuálně využívána k ubytování, možnost pokračovat bez dalších investic.

Dostupnost: Blízkost Novomlýnských nádrží a výborné spojení – 12 minut od Aqualandu Moravia, 14 minut od Mikulova, 20 minut od Lednice, 40 minut do Brna, 1 hodina do Vídně.

Makléř

Máte zájem o tento dům?

Tímto, v souladu s nařízením Evropského parlamentu a Rady (EU) 2016/679, v platném znění, prohlašuji, že mi je alespoň 16 let a uděluji tak svůj souhlas se zpracováním zadaných údajů (jméno, telefon, e-mail, ip adresa) společnosti B3 Technology, s.r.o., IČ: 07330600, se sídlem Novostavby 126/23, 435 11 Lom (správce dat), za účelem předání dotazu z tohoto formuláře Vámi vybranému inzerentovi a zpětného kontaktování mé osoby. Osobní údaje bude správce zpracovávat manuálně i automaticky přímo prostřednictvím svých zaměstnanců. Informace předané tímto formulářem budou uloženy v databázi správce maximálně po dobu 10 let. Odvolání souhlasu s uložením a zpracováním poskytnutých dat lze e-mailem na info@origo-reality.cz. V případě podezření na neoprávněné použití Vámi poskytnutých údajů máte právo předat podnět k šetření Úřadu pro ochranu osobních údajů. Více informací
Chystáte se prodat nemovitost?
Pomůžeme Vám!

Přihlášení k odběru

Nenechte si ujít nejnovější nabídky prodeje rodinných domů v Strachotíně.