Pronájem bytu 3+kk, Praha - Vinohrady, Nad Primaskou, 56 m2 (ID: 2021375)

Nad Primaskou, Praha 10, Vinohrady

24 000 Kč
/za měsíc
Pronájem 24 000 Kč + poplatky 3 300 Kč, elektřina se převádí na nájemce, kauce 48 000 Kč, odměna RK
Získejte výhodnou HYPOTÉKU Chci hypotéku

Parametry bytu

AdresaNad Primaskou, Praha 10, Vinohrady
ID19272
StavbaCihlová
Stav objektuPo rekonstrukci
Patro5. z 5
VybavenoNe
Typ objektuPatrový
VlastnictvíOsobní
Užitná plocha56 m2
Podlahová plocha58 m2
Třída energetické náročnostiE - Nehospodárná
PlynPlynovod
OdpadVeřejná kanalizace
KomunikaceAsfaltová
VodaVodovod
Sklep
Bezbarierový přístup

Origo partneři v Praze 10

Stěhovací služby

Výkup a prodej starého nábytku

Popis

Nabízíme vám byt k pronájmu ve vyhledávané atraktivní čtvrti na pražských Vinohradech. Jedná se o klidnou lokalitu u vilkové čtvrti nedaleko stanice Metra A Strašnická.

V zastoupení majitele nabízíme pronájem příjemného bytu po celkové rekonstrukci, v úžasné pražské čtvrti v bloku cihlových domů které prošly částečnou revitalizací plastová okna, nový výtah a rozvody. Prestižní adresa se snadnou dostupností do centra a zároveň okolí plné zeleně, obchůdků a restaurací.

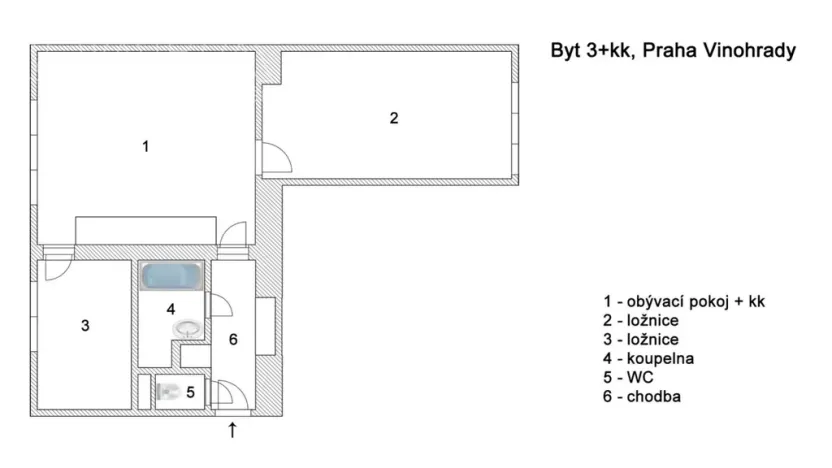
Byt 3+kk o podlahové ploše 56 m2 se nachází ve 5. nadzemním podlaží cihlového domu ze 70. let. Náleží k němu zděný sklep, který má další 2 m2. Obývací pokoj s kuchyní a menší pokoj jsou orientovány na sever do vnitrobloku a na jižní straně do ulice se nachází větší z ložnic.

Byt prošel v tomto roce celkovou rekonstrukcí vznikla nová větší koupelna s vanou a výklenkem pro pračku a sušičku, nový kuchyňský kout s indukční varnou deskou, elektrickou troubou, myčkou, digestoří a lednicí. Nové jsou rozvody vody a elektřiny, vinylové podlahy, dveře vč. vstupních a úložné prostory v chodbě.

Okolí je plné zeleně, parků a sportovišť. Prolíná se tu městský životní styl s přírodou a sportovním vyžitím. Zde budete žít ve velmi zajímavé a žádané lokalitě. Tady budete bydlet na tom správném místě.

Cena za měsíční pronájem bytu činí 24 000 Kč + poplatky (vč. tepla) ve výši 3 300 Kč, elektřina se převádí na nájemce. Kauce je ve výši 48 000 Kč. Odměna RK jeden měsíční nájem.

Zaujala vás tato nabídka? Hledáte klidný domov pro svou rodinu a zároveň chcete využívat možnosti městského zázemí?

Neváhejte a sjednejte si přesný termín a čas prohlídky. Budu se na vás těšit.

Makléř

Máte zájem o tento byt?

Tímto, v souladu s nařízením Evropského parlamentu a Rady (EU) 2016/679, v platném znění, prohlašuji, že mi je alespoň 16 let a uděluji tak svůj souhlas se zpracováním zadaných údajů (jméno, telefon, e-mail, ip adresa) společnosti B3 Technology, s.r.o., IČ: 07330600, se sídlem Novostavby 126/23, 435 11 Lom (správce dat), za účelem předání dotazu z tohoto formuláře Vámi vybranému inzerentovi a zpětného kontaktování mé osoby. Osobní údaje bude správce zpracovávat manuálně i automaticky přímo prostřednictvím svých zaměstnanců. Informace předané tímto formulářem budou uloženy v databázi správce maximálně po dobu 10 let. Odvolání souhlasu s uložením a zpracováním poskytnutých dat lze e-mailem na info@origo-reality.cz. V případě podezření na neoprávněné použití Vámi poskytnutých údajů máte právo předat podnět k šetření Úřadu pro ochranu osobních údajů. Více informací
Chystáte se prodat nemovitost?
Pomůžeme Vám!