Pronájem bytu 2+1, Praha - Břevnov, Veleslavínská, 69 m2

Veleslavínská, Praha 6, Břevnov

23 000 Kč
/za měsíc
+ 500,-/ osoba zálohy na služby, elektřina a plyn se převede na nájemce.
Získejte výhodnou HYPOTÉKU Chci hypotéku

Parametry bytu

AdresaVeleslavínská, Praha 6, Břevnov
ID9807/2918
StavbaCihlová
Stav objektuPo rekonstrukci
Patro2. z 4
VybavenoNe
Typ objektuPatrový
VlastnictvíOsobní
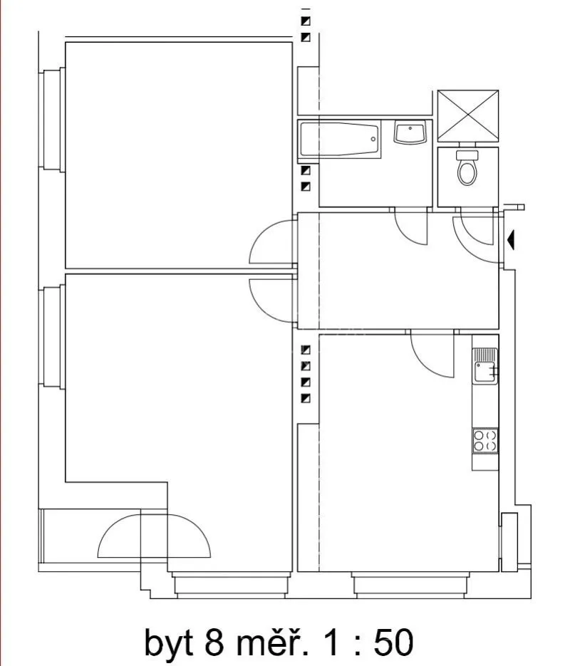
Užitná plocha69 m2
Podlahová plocha69 m2
Plocha zahrady450 m2
Třída energetické náročnostiD - Méně úsporná
Ukazatel energetické náročnosti144 kWh/m2 za rok
TopeníLokální plynové
TelekomunikaceInternet
DopravaSilnice, MHD, Autobus
Bezbarierový přístup

Origo partneři v Praze 6

Stěhovací služby

Výkup a prodej starého nábytku

Popis

Exkluzivně pronajmeme zrekonstruovaný byt 2+1/L, 69 m2, v 1. patře (2. NP) cihlového činžovního domu nacházející se ve velmi žádané lokalitě Praha 6 - Veleslavínská ulice. Metro A - zastávka Nádraží Veleslavín, tramvaj a autobus, vše pouze 150 m od domu. Klidné prostředí. Veškeré pokoje odděleně (pokoje jsou neprůchozí), vhodné také pro studenty. V bytě se nalézá také nová myčka nádobí v kuchyni. Výhodné připojení k internetu. Vytápění plynové. Podlahové krytiny dřevo a dlažba.
Nájemné 23 000 Kč/měsíc + 500 Kč na osobu zálohy na služby. Energie budou převedeny na nájemce (elektřina a plyn). Kauce a odměna RK ve výši nájemného. Výhodná cena. Možnost užívání společné zahrady. Bez domácích mazlíčků. V okolí veškerá občanská vybavenost - 3 nemocnice (Ústřední vojenská nemocnice, Motol, Homolka) Billa, Kaufland, Lidl, Hornbach, Obi, mateřské školy, základní školy, restaurace, pošta, lékaři, atd.
V okolí mnoho zeleně - Obora Hvězda, Šárka, Ladronka, atd.
Dostupnost do centra Prahy je 10 minut, napojení na městský okruh 5 minut, Letiště Václava Havla 8 minut. Volné ihned.

Makléř

Máte zájem o tento byt?

Tímto, v souladu s nařízením Evropského parlamentu a Rady (EU) 2016/679, v platném znění, prohlašuji, že mi je alespoň 16 let a uděluji tak svůj souhlas se zpracováním zadaných údajů (jméno, telefon, e-mail, ip adresa) společnosti B3 Technology, s.r.o., IČ: 07330600, se sídlem Novostavby 126/23, 435 11 Lom (správce dat), za účelem předání dotazu z tohoto formuláře Vámi vybranému inzerentovi a zpětného kontaktování mé osoby. Osobní údaje bude správce zpracovávat manuálně i automaticky přímo prostřednictvím svých zaměstnanců. Informace předané tímto formulářem budou uloženy v databázi správce maximálně po dobu 10 let. Odvolání souhlasu s uložením a zpracováním poskytnutých dat lze e-mailem na info@origo-reality.cz. V případě podezření na neoprávněné použití Vámi poskytnutých údajů máte právo předat podnět k šetření Úřadu pro ochranu osobních údajů. Více informací
Chystáte se prodat nemovitost?
Pomůžeme Vám!