Prodej rodinného domu, Hlučín, Pekařská, 140 m2 (ID: 2020859)

Pekařská, Hlučín

7 600 000 Kč
/za nemovitost
Hypotéka od 33 967 Kč /měs. Chci hypotéku

Parametry domu

AdresaPekařská, Hlučín
ID26-07-103
StavbaCihlová
Stav objektuVelmi dobrý
Druh objektuRohový
Lokalita objektuCentrum obce
Užitná plocha140 m2
Zastavěná plocha109 m2
Podlahová plocha502 m2
Plocha pozemku502 m2
Třída energetické náročnostiG - Mimořádně nehospodárná
Elektřina230V, 400V
PlynPlynovod
OdpadVeřejná kanalizace
TopeníÚstřední plynové
VodaVodovod
Výtah
Bezbarierový přístup
Parkování

Origo partneři v Hlučíně

Popis

Každý kout zde má svůj příběh, a už při vstupu je jasné, že tohle není žádná tuctová stavba. Zvenku působí dům nenápadně – o to větší překvapení čeká uvnitř. Za fasádou se skrývá překvapivě velkorysý prostor, který nabízí víc, než byste čekali.

Tento rodinný dům v samotném centru Hlučína je ideální volbou pro velkou rodinu, vícegenerační bydlení i pro ty, kteří chtějí propojit bydlení s podnikáním nebo investicí. Dispozice domu umožňuje rozdělení na dvě samostatné bytové jednotky, aniž by ztratil svůj charakter a atmosféru skutečného domova. Navíc se na zahradě nachází dřevostavba, sloužící jako kadeřnictví a bistro klub.

Dům se nachází přímo v centru Hlučína, kde máte vše, co potřebujete pro pohodlný každodenní život. Obchody, školy, školky, lékaři i veškeré služby jsou v docházkové vzdálenosti, takže se obejdete bez zdlouhavého dojíždění. Lokalita je ideální jak pro rodinné bydlení, tak pro podnikání – centrum města zajišťuje výbornou dostupnost, viditelnost a dlouhodobou hodnotu nemovitosti.

Rodinný dům
- kombinace původní části s přístavbou
- cca 140 m² obytné plochy
- plastová okna (pouze dvě původní okna dodávají domu autentický šarm)
- voda v plastu, přístavba zateplená
- velmi dobrý stav – dům je obyvatelný ihned
- možnost rozdělení na dvě bytové jednotky
- zahrada s novým přístřeškem na auto, zahradní chata na nářadí, 3 dlážděná parkovací stání
- parkování možné také na ulici před domem

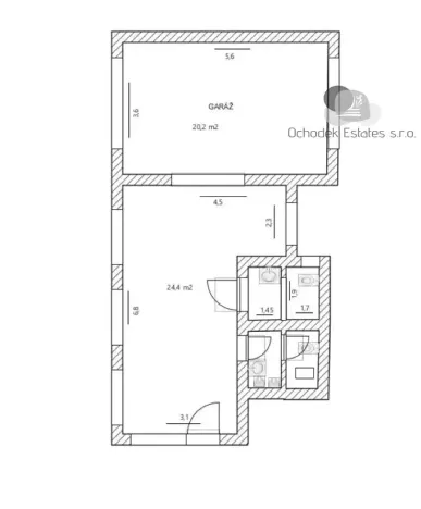
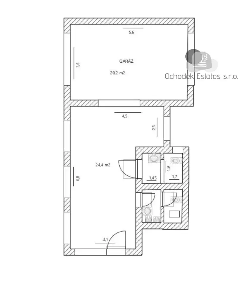
Dispozice RD
V přízemí kuchyň s jídelnou, ložnice, obývák, dětský pokoj, koupelna s vanou i sprchovým koutem, samostatné WC, praktický úložný prostor pod schodištěm
V prvním patře velký otevřený obývací prostor se vstupem do ložnice a druhého pokoje, kde je příprava sítí pro vybudování kuchyně, koupelna s WC, a hlavně vstup na velkou terasu, která výrazně rozšiřuje obytný prostor

Komerční prostor
Podnikatelský bonus, který dává smysl a kde se otevírá obrovský potenciál celé nemovitosti. Od prvního dne zde můžete provozovat kadeřnictví, bistro nebo klidně obojí společně.
- dva samostatné záchody, z toho jeden bezbariérový
- velký otevřený prostor, dříve využívaný k posezení a výčep.


Proč právě tato nemovitost?

_ centrum města
_ bydlení + podnikání nebo pronájem na jednom místě
_ možnost dvou bytových jednotek
_ zachovalý stav, pouze drobné úpravy dle vkusu
_ investice s reálným výnosem

Možná výměna za byt v Hlučíně.
Pozn.: Financování pomůžeme zařídit. Energetický štítek se v současné době zpracovává, prozatím uvádíme zákonné "G". Uvedená kupní cena nezahrnuje zprostředkovatelský poplatek ve výši 3%+DPH z ujednané ceny.

Makléř

Máte zájem o tento dům?

Tímto, v souladu s nařízením Evropského parlamentu a Rady (EU) 2016/679, v platném znění, prohlašuji, že mi je alespoň 16 let a uděluji tak svůj souhlas se zpracováním zadaných údajů (jméno, telefon, e-mail, ip adresa) společnosti B3 Technology, s.r.o., IČ: 07330600, se sídlem Novostavby 126/23, 435 11 Lom (správce dat), za účelem předání dotazu z tohoto formuláře Vámi vybranému inzerentovi a zpětného kontaktování mé osoby. Osobní údaje bude správce zpracovávat manuálně i automaticky přímo prostřednictvím svých zaměstnanců. Informace předané tímto formulářem budou uloženy v databázi správce maximálně po dobu 10 let. Odvolání souhlasu s uložením a zpracováním poskytnutých dat lze e-mailem na info@origo-reality.cz. V případě podezření na neoprávněné použití Vámi poskytnutých údajů máte právo předat podnět k šetření Úřadu pro ochranu osobních údajů. Více informací
Chystáte se prodat nemovitost?
Pomůžeme Vám!

Přihlášení k odběru

Nenechte si ujít nejnovější nabídky prodeje rodinných domů v Hlučíně.