Prodej rodinného domu, Ostrovec - Dolní Ostrovec, 134 m2

Dolní Ostrovec

1 790 000 Kč
/za nemovitost
Hypotéka od 8 000 Kč /měs. Chci hypotéku

Parametry domu

AdresaDolní Ostrovec
ID18284
StavbaSmíšená
Stav objektuPřed rekonstrukcí
Typ objektuPřízemní
Druh objektuSamostatný
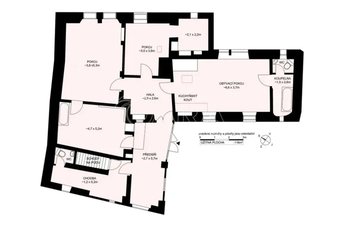
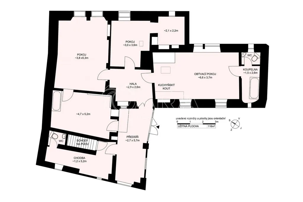
Užitná plocha134 m2
Zastavěná plocha189 m2
Podlahová plocha134 m2
Plocha pozemku324 m2
Plocha zahrady1188 m2
Třída energetické náročnostiG - Mimořádně nehospodárná
Elektřina230V, 400V
OdpadSeptik, Jímka
VodaVodovod, Studna
Bezbarierový přístup

Origo partneři v Ostrovci

Výkup a prodej starého nábytku

Popis

Exkluzivně nabízíme k prodeji chalupu určenou ke 2+1 k rekonstrukci v malebné obci Dolní Ostrovec,
která leží v krásném a klidném prostředí jihočeské přírody nedaleko Písku. Obec je obklopena lesy a
loukami, ideální pro milovníky klidu, turistiky a cyklistiky. Díky zastávce Českých drah v obci je zajištěna
pohodlná dopravní dostupnost i bez vlastního automobilu.

Doporučuji zhlédnutí virtuální prohlídky a plánku, umístěné v galerii.

Chalupa se nachází na pozemku o celkové výměře 1 480 m, z čehož 292 m tvoří zastavěná plocha a
nádvoří a 1 188 m přiléhající zahrada s travním porostem, kam se prochází kolem domu. Objekt nabízí tři
obytné místnosti, halu, koupelnu s vanou a WC, samostatné WC a nebytový prostor bývalou prádelnu.
Dílna se samostatným vchodem.
V domě je zavedena voda z veřejného řádu, užitková voda ve studni, odpady jsou svedeny do jímky.
Vytápění je řešeno lokálně na tuhá paliva v jednotlivých místnostech.
Ohřev vody zajišťuje bojler.

Financování Vám rádi zajistíme.

U dvou snímků byla použita vizualizace pro představu možného stavu po rekonstrukci.
Uvedené výměry jsou orientační. V případě více zájemců bude nemovitost prodána nejlepší nabídce a majitel si vyhrazuje právo vybrat kupujícího na základě jim zvolených kritérií. Veškeré zveřejněné údaje obsažené v tomto inzerátu mají pouze informativní charakter a nejsou nabídkou ve smyslu § 1731 nebo § 1732 občanského zákoníku, ani se nejedná o veřejný příslib dle § 1733 občanského zákoníku

Pro další informace a prohlídku kontaktujte makléřku zakázky Markétu Jenčíkovou.

Makléř

Máte zájem o tento dům?

Tímto, v souladu s nařízením Evropského parlamentu a Rady (EU) 2016/679, v platném znění, prohlašuji, že mi je alespoň 16 let a uděluji tak svůj souhlas se zpracováním zadaných údajů (jméno, telefon, e-mail, ip adresa) společnosti B3 Technology, s.r.o., IČ: 07330600, se sídlem Novostavby 126/23, 435 11 Lom (správce dat), za účelem předání dotazu z tohoto formuláře Vámi vybranému inzerentovi a zpětného kontaktování mé osoby. Osobní údaje bude správce zpracovávat manuálně i automaticky přímo prostřednictvím svých zaměstnanců. Informace předané tímto formulářem budou uloženy v databázi správce maximálně po dobu 10 let. Odvolání souhlasu s uložením a zpracováním poskytnutých dat lze e-mailem na info@origo-reality.cz. V případě podezření na neoprávněné použití Vámi poskytnutých údajů máte právo předat podnět k šetření Úřadu pro ochranu osobních údajů. Více informací
Chystáte se prodat nemovitost?
Pomůžeme Vám!

Přihlášení k odběru

Nenechte si ujít nejnovější nabídky prodeje rodinných domů v Ostrovci.