Pronájem bytu 2+1, Ostrava, 30. dubna, 58 m2

30. dubna, Moravská Ostrava

15 000 Kč
/za měsíc
Cena nájmu BEZ služeb, kauce a provize
Získejte výhodnou HYPOTÉKU Chci hypotéku

Parametry bytu

Adresa30. dubna, Moravská Ostrava
ID0376
StavbaSmíšená
Stav objektuPo rekonstrukci
Patro2. z 6
VybavenoNe
Lokalita objektuCentrum obce
VlastnictvíOsobní
Užitná plocha58 m2
Podlahová plocha58 m2
Třída energetické náročnostiB - Velmi úsporná
Elektřina230V
OdpadVeřejná kanalizace
KomunikaceAsfaltová
TelekomunikaceInternet, Kabelové rozvody
DopravaVlak, Dálnice, Silnice, MHD, Autobus
VodaVodovod
Topné tělesoRadiátory
Zdroj topeníÚstřední dálkové
Výtah

Origo partneři v Ostravě

Popis

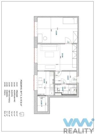
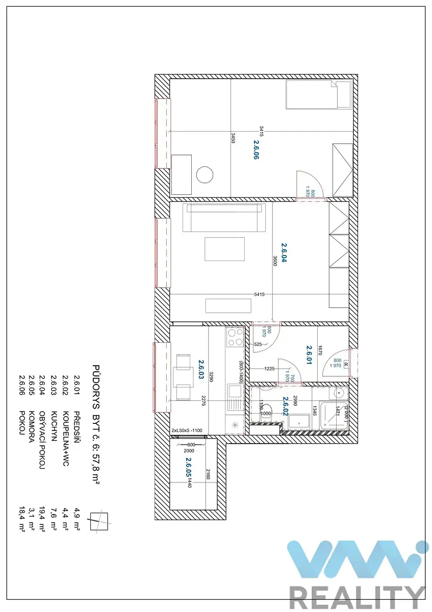
Nabízíme pronájem bytu 2+1 o ploše 58 m2 v kompletně zrekonstruovaném domě na ulici 30. dubna v Ostravě-Moravské Ostravě. Byt se nachází v 1. poschodí (II. NP), je prostorný a světlý, orientace do Bezručova sadu. K bytu náleží kóje na chodbě vedle bytu.

Kuchyň je samostatná, za kuchyní je prostor pro lednici. Další pokoj je samostatný, průchozí do dalšího samostatného pokoje. Kuchyň je vybavená linkou včetně vestavěných spotřebičů (myčka, sklokeramická deska, elektrická trouba, digestoř, bez lednice). Koupelna a toaleta jsou spojené, v koupelně je sprchový kout a umyvadlo se skříňkou.

Podlahy v bytě jsou v kombinaci vinyl a velkoformátová dlažba, celý byt má stropní světla, na všech oknech jsou žaluzie. Byt je vybaven EZS, připojením k internetu a domovní anténou.
V domě je výtah, dům i byt je bezbariérový.

Cena za nájem je 15.000,- Kč bez záloh na služby spojených s užíváním bytu, které se pohybují ve výši cca 5.000,- Kč (elektřina pro byt, teplo-dálkové od Veolia, teplá a studená voda, výtah, úklid a elektřina společných prostor, internet). Vratná jistota/kauce je stanovena ve výši 30.000,- Kč a provize 15.000,- Kč. Nabízíme možnost dlouhodobého pronájmu, jedná se o nájemní bydlení, kdy pronajímatel je vlastník domu.

K dispozici od 15. 4. 2026.

V případě jakýchkoliv dotazů nás kontaktujte, doporučujeme prohlídku!

Makléř

Máte zájem o tento byt?

Tímto, v souladu s nařízením Evropského parlamentu a Rady (EU) 2016/679, v platném znění, prohlašuji, že mi je alespoň 16 let a uděluji tak svůj souhlas se zpracováním zadaných údajů (jméno, telefon, e-mail, ip adresa) společnosti B3 Technology, s.r.o., IČ: 07330600, se sídlem Novostavby 126/23, 435 11 Lom (správce dat), za účelem předání dotazu z tohoto formuláře Vámi vybranému inzerentovi a zpětného kontaktování mé osoby. Osobní údaje bude správce zpracovávat manuálně i automaticky přímo prostřednictvím svých zaměstnanců. Informace předané tímto formulářem budou uloženy v databázi správce maximálně po dobu 10 let. Odvolání souhlasu s uložením a zpracováním poskytnutých dat lze e-mailem na info@origo-reality.cz. V případě podezření na neoprávněné použití Vámi poskytnutých údajů máte právo předat podnět k šetření Úřadu pro ochranu osobních údajů. Více informací
Chystáte se prodat nemovitost?
Pomůžeme Vám!

Přihlášení k odběru

Nenechte si ujít nejnovější nabídky pronájmu bytů 2+1 v Ostravě.