Pronájem bytu 2+kk, Ostrava, 30. dubna, 48 m2

30. dubna, Moravská Ostrava

15 000 Kč
/za měsíc
Cena nájmu BEZ služeb, kauce a provize
Získejte výhodnou HYPOTÉKU Chci hypotéku

Parametry bytu

Adresa30. dubna, Moravská Ostrava
ID0377
StavbaSmíšená
Stav objektuPo rekonstrukci
Patro3. z 6
VybavenoNe
Lokalita objektuCentrum obce
VlastnictvíOsobní
Užitná plocha48 m2
Podlahová plocha48 m2
Třída energetické náročnostiB - Velmi úsporná
Elektřina230V
OdpadVeřejná kanalizace
KomunikaceAsfaltová
TelekomunikaceKabelové rozvody
DopravaVlak, Dálnice, Silnice, MHD, Autobus
VodaVodovod
Topné tělesoRadiátory
Zdroj topeníÚstřední dálkové
Balkon
Výtah

Origo partneři v Ostravě

Popis

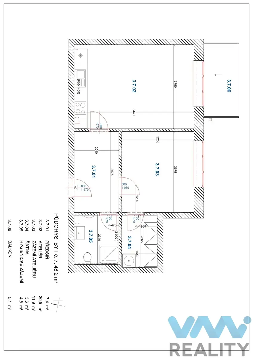
Nabízíme pronájem bytu 2+kk o ploše 48 m2 v kompletně zrekonstruovaném domě na ulici 30. dubna v Ostravě-Moravské Ostravě. Byt se nachází ve 2. poschodí (III. NP), je prostorný a světlý, orientovaný do intravilánu. Součástí bytu je komora/šatna, byt má samostatnou kóji mimo byt.

Kuchyň je propojená s obývací částí, odkud je vstup na balkón, další pokoj je samostatný a neprůchozí. Kuchyň je vybavená linkou včetně vestavěných spotřebičů (myčka, sklokeramická deska, elektrická trouba, digestoř, bez lednice). Koupelna a toaleta jsou spojené, v koupelně je sprchový kout a umyvadlo se skříňkou.

Podlahy v bytě jsou v kombinaci vinyl a velkoformátová dlažba, celý byt má stropní světla, na všech oknech jsou žaluzie. Byt je vybaven EZS, připojením k internetu a domovní anténou.
V domě je výtah, dům i byt je bezbariérový.

Cena za nájem je 15.000,- Kč bez záloh na služby spojených s užíváním bytu, které se pohybují ve výši cca 5.000,- Kč (elektřina pro byt, teplo-dálkové od Veolia, teplá a studená voda, výtah, úklid a elektřina společných prostor, internet). Vratná jistota/kauce je stanovena ve výši 30.000,- Kč a provize 15.000,- Kč. Nabízíme možnost dlouhodobého pronájmu, jedná se o nájemní bydlení, kdy pronajímatel je vlastník domu.

K dispozici ihned.

V případě jakýchkoliv dotazů nás kontaktujte, doporučujeme prohlídku!

Makléř

Máte zájem o tento byt?

Tímto, v souladu s nařízením Evropského parlamentu a Rady (EU) 2016/679, v platném znění, prohlašuji, že mi je alespoň 16 let a uděluji tak svůj souhlas se zpracováním zadaných údajů (jméno, telefon, e-mail, ip adresa) společnosti B3 Technology, s.r.o., IČ: 07330600, se sídlem Novostavby 126/23, 435 11 Lom (správce dat), za účelem předání dotazu z tohoto formuláře Vámi vybranému inzerentovi a zpětného kontaktování mé osoby. Osobní údaje bude správce zpracovávat manuálně i automaticky přímo prostřednictvím svých zaměstnanců. Informace předané tímto formulářem budou uloženy v databázi správce maximálně po dobu 10 let. Odvolání souhlasu s uložením a zpracováním poskytnutých dat lze e-mailem na info@origo-reality.cz. V případě podezření na neoprávněné použití Vámi poskytnutých údajů máte právo předat podnět k šetření Úřadu pro ochranu osobních údajů. Více informací
Chystáte se prodat nemovitost?
Pomůžeme Vám!

Přihlášení k odběru

Nenechte si ujít nejnovější nabídky pronájmu bytů 2+kk v Ostravě.