Prodej bytu 3+1, Otrokovice, SNP, 69 m2 (ID: 2019969)

SNP, Otrokovice

5 500 000 Kč
/za nemovitost
za nemovitost
Hypotéka od 24 582 Kč /měs. Chci hypotéku

Parametry bytu

AdresaSNP, Otrokovice
StavbaPanelová
Stav objektuPo rekonstrukci
Patro12.
Lokalita objektuKlidná část obce
VlastnictvíOsobní
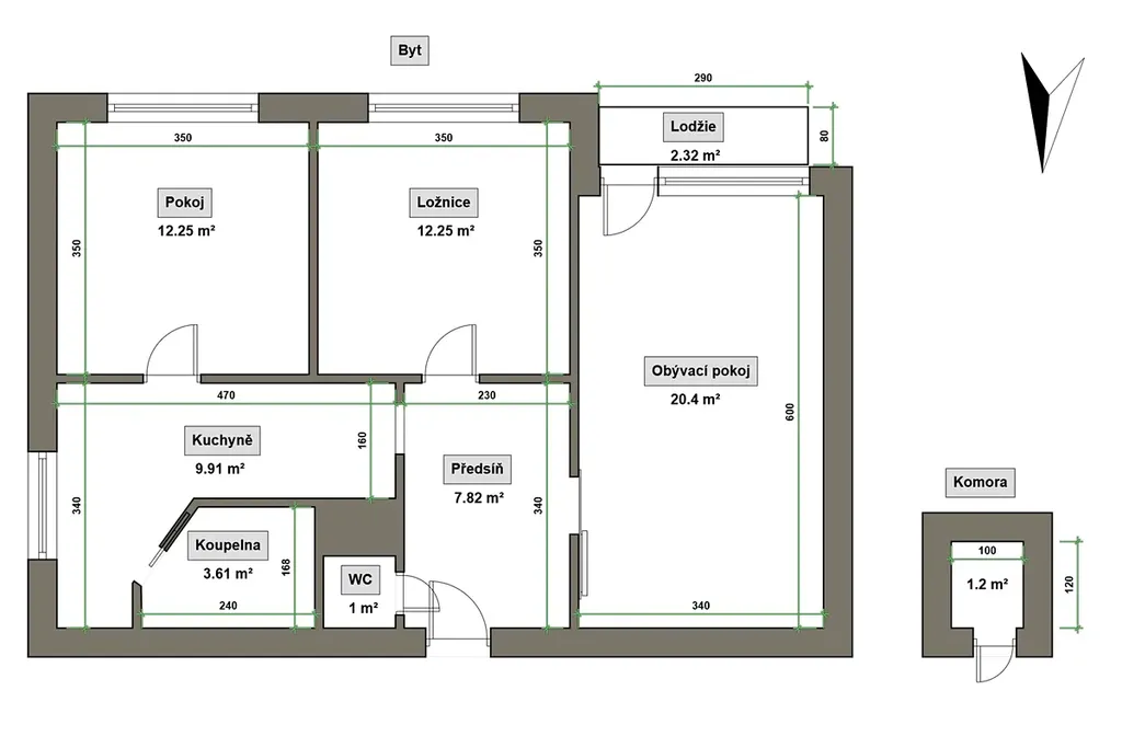
Užitná plocha69 m2
Třída energetické náročnostiC - Úsporná
OdpadVeřejná kanalizace
DopravaVlak, Dálnice, Silnice, MHD, Autobus
VodaMístní zdroj vody
Zdroj topeníCentrální dálkové
Sklep
Lodžie

Origo partneři v Otrokovicích

Popis

Ráda bych Vás provedla a představila Vám ke koupi moderní a slunný byt 3+1 po rekonstrukci s jednou zasklenou lodžií ve vyhledávané, a přitom klidné lokalitě Otrokovic – Trávníky, ul. SNP.

Bytová jednotka je umístěna v 12. NP panelového domu se dvěma výtahy.

K bytu náleží komora na patře a sklepní kóje v suterénu.

Tato nemovitost je svou rozlohou velmi prostorná.

Jistě Vás bude zajímat a oceníte:
• byt je po rekonstrukci s klimatizací
• celková plocha bytu cca 69 m² + ( plocha lodžie 2,5m², plocha
komory 1.2m² a klep 2m²)
• stínění v interiéru a venkovní elektrické rolety
• na míru zhotovená kuchyň včetně spotřebičů
• tři samostatné, neprůchozí pokoje s novými podlahami
• zděná koupelna s vanou a oddělené WC
• komora na chodbě
• v předsíni vestavěná skříň a úložné prostory
• sklepní kóje

Byt nabízí krásný výhled na okolí a zeleň, působí vzdušně a propojuje interiér s okolním prostředím.

Byt je ideální pro všechny věkové kategorie – rodiny s dětmi i seniory, kteří hledají moderní bydlení s minimálními nároky na údržbu a chtějí si užívat komfort bez nutnosti dalších úprav.

Energetická náročnost budovy (třída C) zaručuje nízké provozní náklady, což přispívá k pohodlnému a úspornému bydlení.

V blízkosti domu se nachází parky, cyklostezka, dětská hřiště, škola, školka, pošta, obchody, kavárna, zdravotnické středisko a autobusová zastávka MHD, odkud je snadné spojení do centra Otrokovic.

Doporučuji Vám toto příjemné a komfortní bydlení – určitě nebudete litovat.

Prohlídky a návštěva bytu jsou možné po dohodě s makléřkou Martinou.

Makléř

Máte zájem o tento byt?

Tímto, v souladu s nařízením Evropského parlamentu a Rady (EU) 2016/679, v platném znění, prohlašuji, že mi je alespoň 16 let a uděluji tak svůj souhlas se zpracováním zadaných údajů (jméno, telefon, e-mail, ip adresa) společnosti B3 Technology, s.r.o., IČ: 07330600, se sídlem Novostavby 126/23, 435 11 Lom (správce dat), za účelem předání dotazu z tohoto formuláře Vámi vybranému inzerentovi a zpětného kontaktování mé osoby. Osobní údaje bude správce zpracovávat manuálně i automaticky přímo prostřednictvím svých zaměstnanců. Informace předané tímto formulářem budou uloženy v databázi správce maximálně po dobu 10 let. Odvolání souhlasu s uložením a zpracováním poskytnutých dat lze e-mailem na info@origo-reality.cz. V případě podezření na neoprávněné použití Vámi poskytnutých údajů máte právo předat podnět k šetření Úřadu pro ochranu osobních údajů. Více informací
Chystáte se prodat nemovitost?
Pomůžeme Vám!

Přihlášení k odběru

Nenechte si ujít nejnovější nabídky prodeje bytů 3+1 v Otrokovicích.