Prodej bytu 2+kk, Praha - Žižkov, Žerotínova, 35 m2

Žerotínova, Praha 3, Žižkov

5 900 000 Kč
/za nemovitost
včetně provize RK
Hypotéka od 26 369 Kč /měs. Chci hypotéku

Parametry bytu

AdresaŽerotínova, Praha 3, Žižkov
IDMN75
StavbaCihlová
Stav objektuPo rekonstrukci
Patro4. z 7
Typ objektuPatrový
VlastnictvíOsobní
Užitná plocha35 m2
Podlahová plocha36 m2
Třída energetické náročnostiF - Velmi nehospodárná
TopeníÚstřední plynové
TelekomunikaceInternet, Kabelové rozvody
Topné tělesoRadiátory
Zdroj topeníPlynový kondenzační kotel
Zdroj teplé vodyPlynový kondenzační kotel
Lodžie
Bezbarierový přístup

Origo partneři v Praze 3

Stěhovací služby

Výkup a prodej starého nábytku

Popis

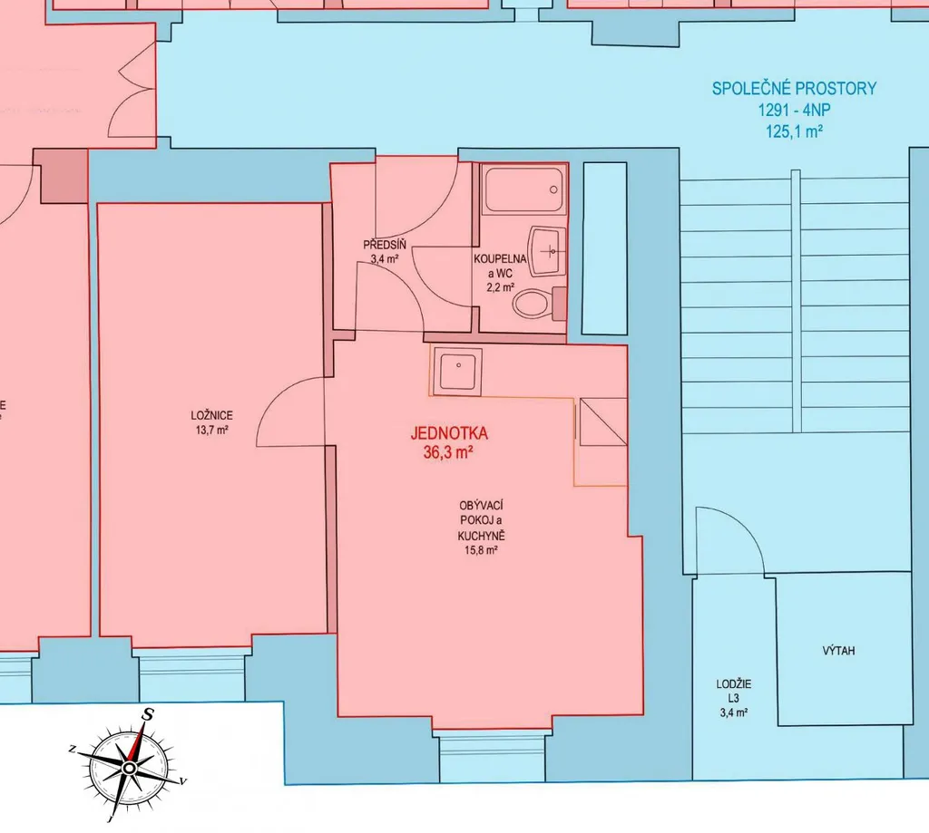
Nabízíme k prodeji byt v osobním vlastnictví o dispozici 2+kk s příslušenstvím a celkové výměře 36,3 m2 (čistá obytná plocha 35,1 m2) ve 4. nadzemním podlaží (3. patro) cihlového domu v ulici Žerotínova, městské části Žižkov. K bytu náleží uzamykatelná lodžie (3,4 m2) umístěná mimo byt, přístupná z chodby vedle výtahu.

Byt je po cca 5 let staré rekonstrukci zahrnující zejména koupelnu, elektrorozvody, pokládku nových podlahových krytin, nové interiérové dveře, umístění nové kuchyňské linky, instalaci kondenzačního plynového kotle a teplovodního systému vytápění s termostatem, výmalba apod.

Standardem bytu jsou špaletová okna (s orientací na jih do klidného vnitrobloku), kuchyňská linka s plynovou varnou deskou, elektrickou troubou a malou myčkou nádobí, nové interiérové dveře s obložkami zárubní, podlahy - plovoucí lamino v pokojích a keramická dlažba v předsíni a koupelně, prostorný sprchový kout, závěsné WC s vestavěným zásobníkem vody, topný žebřík. Ohřev vody a vytápění zajišťuje kondenzační plynový kotel zn. Baxi.

Samotný dům je velice dobře udržovaný, má např. nový výtah (zastávky v mezipatrech), ovládání dveří na čip, vyměněny páteřní rozvody vody a elektřiny, renovovanou střechu, osvětlení s pohybovými senzory, udržované společné části apod.

Ulice Žerotínova se nachází v městské části Žižkov mezi vrchem Vítkov a parkem Parukářka. V blízkém okolí naleznete veškerou občanskou vybavenost a výborné dopravní spojení z nedalekých zastávek MHD (tram, bus) na metro trasy A (Jana Želivského), B (Palmovka) i C (Florenc).

V případě, že Vás naše nabídka zaujala, neváhejte se přihlásit o podrobnější informace, popřípadě si rovnou sjednejte prohlídku tohoto bytu. Rádi se Vám budeme věnovat.

Dovolujeme si upozornit, že vlastník bytu si vyhradil právo na určení kupujícího dle svého výběru, včetně práva upřednostnit nejvyšší cenovou nabídku v případě zvýšeného zájmu o byt.

Makléř

Máte zájem o tento byt?

Tímto, v souladu s nařízením Evropského parlamentu a Rady (EU) 2016/679, v platném znění, prohlašuji, že mi je alespoň 16 let a uděluji tak svůj souhlas se zpracováním zadaných údajů (jméno, telefon, e-mail, ip adresa) společnosti B3 Technology, s.r.o., IČ: 07330600, se sídlem Novostavby 126/23, 435 11 Lom (správce dat), za účelem předání dotazu z tohoto formuláře Vámi vybranému inzerentovi a zpětného kontaktování mé osoby. Osobní údaje bude správce zpracovávat manuálně i automaticky přímo prostřednictvím svých zaměstnanců. Informace předané tímto formulářem budou uloženy v databázi správce maximálně po dobu 10 let. Odvolání souhlasu s uložením a zpracováním poskytnutých dat lze e-mailem na info@origo-reality.cz. V případě podezření na neoprávněné použití Vámi poskytnutých údajů máte právo předat podnět k šetření Úřadu pro ochranu osobních údajů. Více informací
Chystáte se prodat nemovitost?
Pomůžeme Vám!

Přihlášení k odběru

Nenechte si ujít nejnovější nabídky prodeje bytů 2+kk v Praze 3.