Prodej bytu 3+1, Praha - Ruzyně, Vlastina, 73 m2 (ID: 2019412)

Vlastina, Praha, Ruzyně

10 400 000 Kč
/za nemovitost
Hypotéka od 46 482 Kč /měs. Chci hypotéku

Parametry bytu

AdresaVlastina, Praha, Ruzyně
StavbaCihlová
Stav objektuDobrý
Patro2.
VlastnictvíOsobní
Užitná plocha73 m2
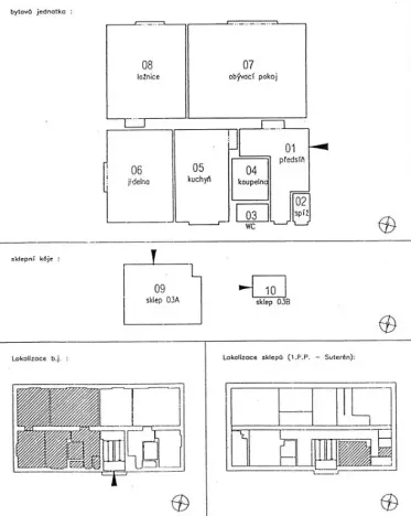
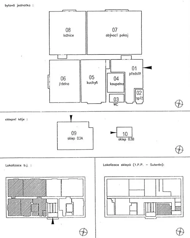
Sklep

Origo partneři v Praze 6

Stěhovací služby

Výkup a prodej starého nábytku

Popis

Prodej bytu 3+1 o výměře 73,35 m² + dva sklepy (10,6 m2) + možnost garáže, Praha 6 - Ruzyně

Nabízíme k prodeji prostorný byt o dispozici 3+1 a podlahové ploše 73,35 m2, k bytu navíc dále náleží dva sklepy (9,16 m2 a 1,44 m2). Samostatnou garáž, nacházející se u domu, je možné dokoupit. Byt je v prvním patře (2.NP) zděného domu v ulici Vlastina, Praha 6 - Ruzyně. Menší bytový dům, celkem o šesti bytových jednotkách, je udržovaný, v roce 2016 proběhla rekonstrukce střechy.

Dispozičně byt nabízí obývací pokoj (22,05 m2), ložnici (15,33 m2), kuchyň (10,31 m2), jídelnu (12,43 m2), předsíň (8,1 m2), spíž (1 m2), koupelnu (3 m2) a samostatné WC (1,1 m2).

Byt je situován na tři světové strany (S, V, J). V roce 2011 se v bytě uskutečnila rekonstrukce (voda, kanalizace, elektřina), dále proběhla výměna oken za plastová a vnitřních dveří (lamino). V předsíni, kuchyni, koupelně a na WC je dlažba, ostatní místnosti lamino. Vytápění a teplá voda zajištěno dálkovým zdrojem, do bytu je zaveden plyn. Kuchyň je vybavena, v předsíni a ložnici se nachází prostorné vestavěné skříně, které nabízí dostatek úložného prostoru. V domě se také nachází společná sušárna.

Lokalita Ruzyně je vyhledávaná zejména pro blízkost přírody – přírodní park Divoká Šárka s vodní nádrží Džbán a obora Hvězda jsou v docházkové vzdálenosti, přesto s rychlým spojením do centra Prahy. V okolí domu naleznete veškerou občanskou vybavenost (potraviny, zdravotní služby, základní a mateřská škola, sportoviště), kousek od domu menší nákupní centrum Delta (Billa, restaurace, lékárna, bankomat, knihovna). V roce 2023 byla nově postavená tramvajová trať. Zastávky tramvají a autobusů Sídliště Na Dědině a Vlastina cca 150 m od domu, z nich přímé spojení na metro (za 5 minut) a do centra města několika linkami, přímý spoj také na vlakovou zastávku Praha – Ruzyně. Poloha tohoto bytu tedy nabízí perfektní kombinaci přírody a městského komfortu.

Cena: 10 400 000,- Kč + 1 000 000,-Kč za samostatnou garáž

Makléř

Máte zájem o tento byt?

Tímto, v souladu s nařízením Evropského parlamentu a Rady (EU) 2016/679, v platném znění, prohlašuji, že mi je alespoň 16 let a uděluji tak svůj souhlas se zpracováním zadaných údajů (jméno, telefon, e-mail, ip adresa) společnosti B3 Technology, s.r.o., IČ: 07330600, se sídlem Novostavby 126/23, 435 11 Lom (správce dat), za účelem předání dotazu z tohoto formuláře Vámi vybranému inzerentovi a zpětného kontaktování mé osoby. Osobní údaje bude správce zpracovávat manuálně i automaticky přímo prostřednictvím svých zaměstnanců. Informace předané tímto formulářem budou uloženy v databázi správce maximálně po dobu 10 let. Odvolání souhlasu s uložením a zpracováním poskytnutých dat lze e-mailem na info@origo-reality.cz. V případě podezření na neoprávněné použití Vámi poskytnutých údajů máte právo předat podnět k šetření Úřadu pro ochranu osobních údajů. Více informací
Chystáte se prodat nemovitost?
Pomůžeme Vám!

Přihlášení k odběru

Nenechte si ujít nejnovější nabídky prodeje bytů 3+1 v Praze 6.