Prodej vily, Králův Dvůr, Na Vinohradech, 140 m2

Na Vinohradech, Králův Dvůr, Křižatky

20 225 000 Kč
/za nemovitost
včetně provize, poplatků a právního servisu
Hypotéka od 90 394 Kč /měs. Chci hypotéku

Parametry domu

AdresaNa Vinohradech, Králův Dvůr, Křižatky
ID535
StavbaCihlová
Stav objektuNovostavba
VybavenoAno
Druh objektuSamostatný
Užitná plocha140 m2
Zastavěná plocha216 m2
Podlahová plocha200 m2
Plocha pozemku663 m2
Třída energetické náročnostiC - Úsporná
Elektřina230V
OdpadVeřejná kanalizace
TopeníLokální elektrické
KomunikaceAsfaltová
DopravaDálnice, Silnice, MHD, Autobus
VodaVodovod
Topné tělesoPodlahové vytápění, Krbová kamna
Zdroj topeníElektrokotel
Garáž
Bezbarierový přístup
Parkování
Bazén

Origo partneři v Královu Dvoru

Popis

PRODEJ MODERNÍHO A ELEGANTNÍHO BUNGALOVU 4+kk S PROSTORNOU TERASOU, BAZÉNEM A 2 GARÁŽEMI - KRÁLŮV DVŮR, KŘIŽATKY

Toužíte po bydlení, které spojuje eleganci, soukromí a jedinečný kontakt s přírodou?
Představuji Vám výjimečný, moderní bungalov z roku 2019, situovaný v klidné, slepé ulici nové rezidenční zástavby - Králův Dvůr, Křižatky. ul. Na Vinohradech.

Tato nemovitost nabízí to, co je dnes skutečně vzácné - otevřený prostor, dostatek světla, soukromí a ničím nerušené výhledy do krajiny.

DOMINANTOU DOMU je vzdušný obývací prostor s designovou kuchyní, který plynule navazuje na velkorysou terasu (cca 40 m2) orientovanou na jihovýchod. Každý den zde můžete začínat s výhledem do zeleně a v naprostém klidu.

EXTERIÉR je navržen pro maximální komfort i relaxaci - najdete zde bazén, kryté venkovní posezení, plně vybavenou venkovní kuchyni i zázemí pro společenské chvíle s rodinou a přáteli. Díky svažitému pozemku máte zajištěn trvalý výhled do krajiny směrem na Koněpruské jeskyně, bez rizika další výstavby.

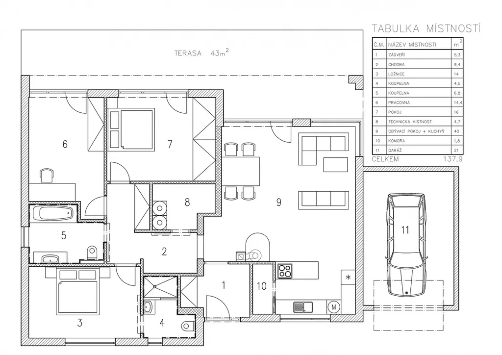
DISPOZICE DOMU 4+kk je promyšlená do posledního detailu: (VIZ. PŮDORYS)
- podlahová plocha cca 120 m2, užitná plocha s terasou cca 140 m2 + 2 garáže a prostor pod terasou
- vstupní chodba/zádveří
- prostorný obývací pokoj s designovou kuchyňskou linkou a komorou
- hlavní ložnice s vlastní koupelnou
- další dva pokoje s přímým vstupem na terasu
- druhá koupelna s WC
- technická místnost

Cena domu zahrnuje i většinu vybavení, nábytek dle dohody.

DŮRAZ NA KVALITU A TECHNOLOGIE:
- moderní stavební systém Pasifbrick
- kvalitně zateplená rovná střecha
- dům je napojen na elektřinu, vodovod a kanalizaci
- elektrický kotel s podlahovým vytápěním + krbová kamna
- plastová okna s trojskly
- kvalitní interiérové dveře, většina pouzdrových
- kvalitní podlahy
- zabezpečovací a kamerový systém
- energetická třída C (měsíční náklady cca 10.500 Kč)

Komfort parkování zajišťují dvě garáže a další 2 parkovací místa na pozemku.

Lokalita je ideální pro ty, kteří hledají klidné rodinné bydlení s výbornou dostupností - Beroun 9 km, Praha 30 km. V docházkové vzdálenosti je dětské a sportovní hřiště i MHD.

Financování hypotečním úvěrem je samozřejmostí,rádi Vám zajistíme individuální podmínky.

Tento dům není jen nemovitost. Je to životní styl.
Zvu Vás na osobní prohlídku.

Pozn. rozměry jsou orientační

Makléř

Máte zájem o tento dům?

Tímto, v souladu s nařízením Evropského parlamentu a Rady (EU) 2016/679, v platném znění, prohlašuji, že mi je alespoň 16 let a uděluji tak svůj souhlas se zpracováním zadaných údajů (jméno, telefon, e-mail, ip adresa) společnosti B3 Technology, s.r.o., IČ: 07330600, se sídlem Novostavby 126/23, 435 11 Lom (správce dat), za účelem předání dotazu z tohoto formuláře Vámi vybranému inzerentovi a zpětného kontaktování mé osoby. Osobní údaje bude správce zpracovávat manuálně i automaticky přímo prostřednictvím svých zaměstnanců. Informace předané tímto formulářem budou uloženy v databázi správce maximálně po dobu 10 let. Odvolání souhlasu s uložením a zpracováním poskytnutých dat lze e-mailem na info@origo-reality.cz. V případě podezření na neoprávněné použití Vámi poskytnutých údajů máte právo předat podnět k šetření Úřadu pro ochranu osobních údajů. Více informací
Chystáte se prodat nemovitost?
Pomůžeme Vám!

Přihlášení k odběru

Nenechte si ujít nejnovější nabídky prodeje vil v Královu Dvoru.