Prodej bytu 2+kk, Brno, Elgartova, 40 m2 (ID: 2019188)

Elgartova, Brno, Husovice

6 420 000 Kč
/za nemovitost
Konečná cena včetně právního servisu. Prodej přímo od majitele. Neplatíte provizi., včetně poplatků, včetně provize, včetně právního servisu
Hypotéka od 28 694 Kč /měs. Chci hypotéku

Parametry bytu

AdresaElgartova, Brno, Husovice
ID00414
StavbaCihlová
Stav objektuNovostavba
Patro3. z 3
VybavenoNe
Lokalita objektuKlidná část obce
VlastnictvíOsobní
Užitná plocha40 m2
Třída energetické náročnostiB - Velmi úsporná
Ukazatel energetické náročnosti92 kWh/m2 za rok
Elektřina230V
PlynPlynovod
OdpadVeřejná kanalizace
KomunikaceAsfaltová
TelekomunikaceInternet, Kabelová televize
VodaVodovod
Topné tělesoPodlahové vytápění
Zdroj topeníPlynový kondenzační kotel
Zdroj teplé vodyPlynový kondenzační kotel
Balkon
Garáž
Výtah

Origo partneři v Brně

Popis

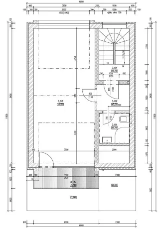
Nabízíme do prodeje moderní podkrovní byt 2+kk s balkónem na ulici Elgartova.

Klidná ulice na samém okraji Husovic.
Velký, nově zrekonstruovaný park jen 50 metrů od domu a rychlé spojení do centra.

Byt se nachází ve 3.NP novostavby cihlového domu o třech jednotkách, na každém patře jedna.
Disponuje 42 m² podlahové plochy a 5m² balkonem s pěkným výhledem do zeleného vnitrobloku.

Dispozičně 2+KK (dělicí příčka se ještě bude dodělávat), ideální pro jednotlivce nebo pár. Obývací část s kuchyní (dodáváme standardně bez kuchyňské linky) a vstupem na balkon. Předsíňka s prostorem pro pračku a úložné prostory a koupelna s vanou (změna oproti projektu z půdorysu).
Dokončeny budou samozřejmě i vstupní a interierové dveře, zábradlí a podlahy.
Kolaudace cca 07/2026.

Vytápění a ohřev vody zajišťuje společný plynový kondenzační kotel Baxi a podlahové vytápění po celém bytě.
Díky izolačním trojsklům a energetické třídě B tak nabízí nízké provozní náklady.
Podružná měřidla má každá jednotka samostatná.

Možnost dokoupit i garážové stání (vrata a vchodové dveře Lomax).

Jakékoliv dotazy Vám rád zodpovím po telefonu, nebo osobně na prohlídce.

Makléř

Máte zájem o tento byt?

Tímto, v souladu s nařízením Evropského parlamentu a Rady (EU) 2016/679, v platném znění, prohlašuji, že mi je alespoň 16 let a uděluji tak svůj souhlas se zpracováním zadaných údajů (jméno, telefon, e-mail, ip adresa) společnosti B3 Technology, s.r.o., IČ: 07330600, se sídlem Novostavby 126/23, 435 11 Lom (správce dat), za účelem předání dotazu z tohoto formuláře Vámi vybranému inzerentovi a zpětného kontaktování mé osoby. Osobní údaje bude správce zpracovávat manuálně i automaticky přímo prostřednictvím svých zaměstnanců. Informace předané tímto formulářem budou uloženy v databázi správce maximálně po dobu 10 let. Odvolání souhlasu s uložením a zpracováním poskytnutých dat lze e-mailem na info@origo-reality.cz. V případě podezření na neoprávněné použití Vámi poskytnutých údajů máte právo předat podnět k šetření Úřadu pro ochranu osobních údajů. Více informací
Chystáte se prodat nemovitost?
Pomůžeme Vám!

Přihlášení k odběru

Nenechte si ujít nejnovější nabídky prodeje bytů 2+kk v Brně.