Prodej rodinného domu, Děčín, V Kolonii, 130 m2

V Kolonii, Děčín IX-Bynov

6 290 000 Kč
/za nemovitost
Hypotéka od 28 112 Kč /měs. Chci hypotéku

Parametry domu

AdresaV Kolonii, Děčín IX-Bynov
ID25304
StavbaCihlová
Stav objektuDobrý
VybavenoČástečně
Typ objektuPatrový
Druh objektuŘadový
Užitná plocha130 m2
Zastavěná plocha193 m2
Podlahová plocha130 m2
Plocha pozemku472 m2
Plocha zahrady279 m2
Třída energetické náročnostiG - Mimořádně nehospodárná
OdpadJímka
TopeníÚstřední tuhá paliva
KomunikaceAsfaltová
TelekomunikaceInternet
VodaVodovod
Garáž
Sklep
Bezbarierový přístup
Parkování

Origo partneři v Děčíně

Okna a dveře

Rekonstrukce

Popis

Nabízíme Vám v zastoupení majitelů rodinný dům v ulici V Kolonii, v klidné městské části Děčín - Bynov.
Tento dům je ideální volbou pro rodinu, která hledá klidné bydlení v bezprostřední blízkosti přírody, ale zároveň potřebuje mít město a veškerou občanskou vybavenost na dosah ruky.

Dům prošel v rámci probíhající rekonstrukce zásadními úpravami, které vám ušetří nejnáročnější práce:
Nová střecha: Kompletně vyměněná střešní krytina.
Špičková okna: Nová plastová okna s trojskly značky Vekra.
Nová elektřina: Kompletně hotové rozvody v celém patře domu. V přízemí domu je elektřina také v mědi.
Vytápění: Součástí prodeje je zánovní plně automatický kotel na uhlí, připravený k zapojení novým majitelem.

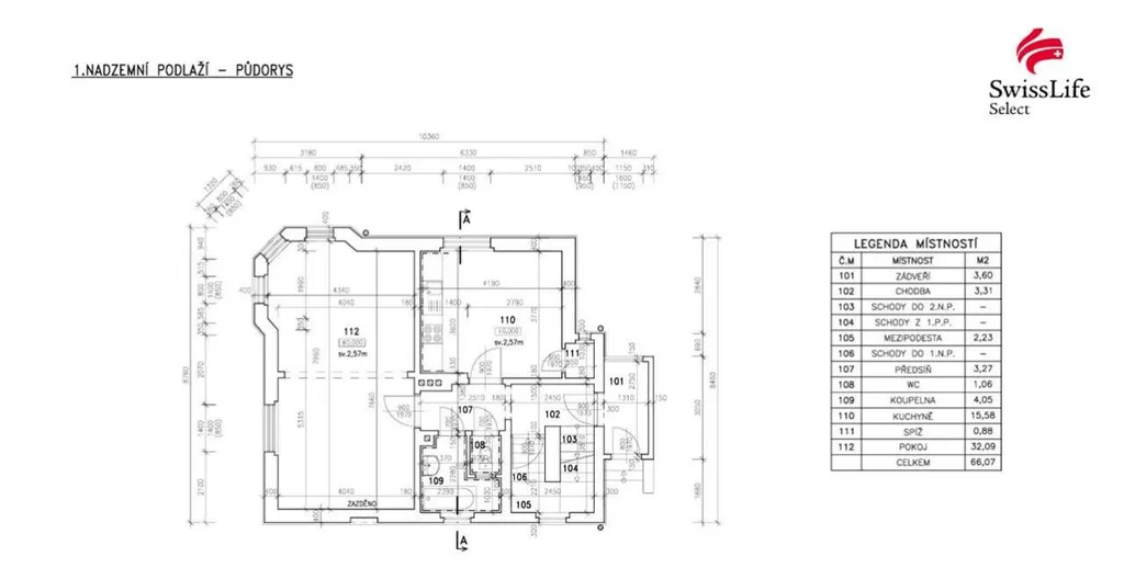
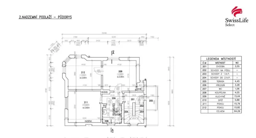
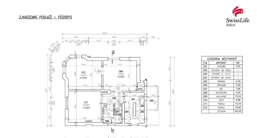
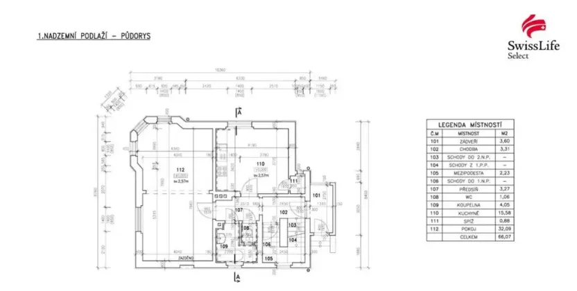
Dispozice a zázemí:
Dům je plně podsklepený a nabízí užitnou plochu cca 65 m na každé patro:

1. NP: Kuchyň, obývací pokoj a původní, plně funkční koupelna se samostatným WC. Tato koupelna umožňuje v domě okamžitě bydlet, zatímco si v patře budete v klidu budovat nové zázemí.

2. NP: Dva čerstvě zrekonstruované pokoje, druhý dětský pokoj před dokončením a prostor připravený na vybudování nové horní koupelny.

Podkroví: Krásné a prostorné půdní prostory nabízejí možnost vybudování dalších obytných místností.

Suterén: Sklepní prostory zahrnují dílnu, uhelnu, úložné prostory a kotelnu.

Zahrada a okolí
Na pozemku o celkové výměře 472 m se nachází původní garáž a dvě praktické kolny pro uskladnění nářadí či kol. Dům je napojen na veřejný vodovod, splaškové vody jsou svedeny do jímky.
Lokalita: Bynov nabízí perfektní kombinaci klidu a dostupnosti. Dům stojí přímo u lesa, ale v docházkové vzdálenosti najdete školu, školku i obchod.

Hlavní výhoda: Možnost dokončit si rekonstrukci interiéru přesně podle svých představ, přičemž ty nejdůležitější a nejnákladnější prvky (střecha, okna) jsou již hotové.

Zaujala Vás tato nabídka?
Rádi Vám zajistíme výhodné financování nemovitosti a domluvíme termín osobní prohlídky.

Kontaktujte nás a přijďte se přesvědčit o potenciálu tohoto domu osobně!

Makléř

Máte zájem o tento dům?

Tímto, v souladu s nařízením Evropského parlamentu a Rady (EU) 2016/679, v platném znění, prohlašuji, že mi je alespoň 16 let a uděluji tak svůj souhlas se zpracováním zadaných údajů (jméno, telefon, e-mail, ip adresa) společnosti B3 Technology, s.r.o., IČ: 07330600, se sídlem Novostavby 126/23, 435 11 Lom (správce dat), za účelem předání dotazu z tohoto formuláře Vámi vybranému inzerentovi a zpětného kontaktování mé osoby. Osobní údaje bude správce zpracovávat manuálně i automaticky přímo prostřednictvím svých zaměstnanců. Informace předané tímto formulářem budou uloženy v databázi správce maximálně po dobu 10 let. Odvolání souhlasu s uložením a zpracováním poskytnutých dat lze e-mailem na info@origo-reality.cz. V případě podezření na neoprávněné použití Vámi poskytnutých údajů máte právo předat podnět k šetření Úřadu pro ochranu osobních údajů. Více informací
Chystáte se prodat nemovitost?
Pomůžeme Vám!

Přihlášení k odběru

Nenechte si ujít nejnovější nabídky prodeje rodinných domů v Děčíně.