Pronájem bytu 3+1, Brno, Horní, 68 m2 (ID: 2017930)

Horní, Brno, Štýřice

25 000 Kč
/za měsíc
služby 7000,- Kč
Získejte výhodnou HYPOTÉKU Chci hypotéku

Parametry bytu

AdresaHorní, Brno, Štýřice
IDN00053
StavbaPanelová
Stav objektuVelmi dobrý
Patro4. z 5
VybavenoNe
Lokalita objektuKlidná část obce
VlastnictvíOsobní
Užitná plocha68 m2
Podlahová plocha72 m2
Třída energetické náročnostiG - Mimořádně nehospodárná
Elektřina230V
TopeníÚstřední dálkové
DopravaVlak, Dálnice, Silnice
VodaVodovod
Topné tělesoRadiátory
Zdroj topeníÚstřední dálkové
Balkon
Sklep
Bezbarierový přístup

Origo partneři v Brně

Popis

Nabízíme k pronájmu byt 3+1 s balkonem o výměře 72,7 m2 na ulici Horní.

Chcete být prvním nájemníkem v tomto zcela novém bytě ?
Byt aktuálně prochází rozsáhlou rekonstrukcí, která zahrnuje kompletní elektroinstalaci v mědi, nové omítky a zateplení stropů. Součástí úprav budou také interiérové dveře, podlahy, obklady i dlažby, vestavěné skříně v chodbě, moderní osvětlení, nové nátěry topení a obložení dveří, koupelna s vanou, umyvadlem a skříňkou, WC zn. Geberit.


Vše bude úplně nové, nepoužívané, připravené k nastěhování. Byt nabízí možnost dlouhodobého bydlení v moderně zrekonstruovaném a komfortním prostředí.

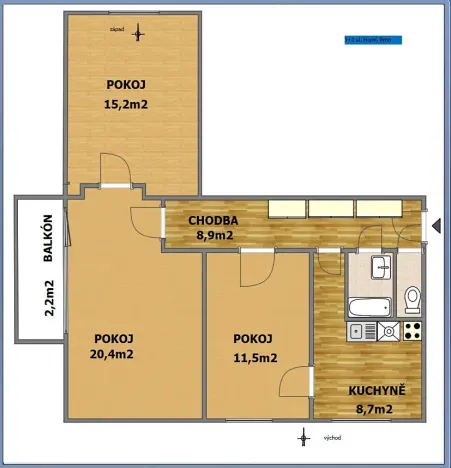
Dispozice bytu:
kuchyň 8,7 m2 a pokoj 11,5 m2 směrem k východu, pokoj 20,4 m2 s balkonem 2,2 m2, pokoj 15,2 m2 směrem k západu, chodba 8,9 m2, samostatná koupelna s vanou 2,3 m2, WC 0,8 m2.
Byt se nachází ve 4 .patře v domě bez výtahu.
Vybavení:
kuchyňská linka s myčkou, indukční deska, digestoř, vestavěné skříně v chodbě.

Prohlídky možné po domluvě. K nastěhování od 1.4.2026.

Měsíční platby:
nájemné 25.000,- + 7.000,- Kč služby včetně elektřiny, celkem tedy 32.000,- Kč.
Kauce je ve výši 35.000,- Kč
+ provize RK

Makléř

Máte zájem o tento byt?

Tímto, v souladu s nařízením Evropského parlamentu a Rady (EU) 2016/679, v platném znění, prohlašuji, že mi je alespoň 16 let a uděluji tak svůj souhlas se zpracováním zadaných údajů (jméno, telefon, e-mail, ip adresa) společnosti B3 Technology, s.r.o., IČ: 07330600, se sídlem Novostavby 126/23, 435 11 Lom (správce dat), za účelem předání dotazu z tohoto formuláře Vámi vybranému inzerentovi a zpětného kontaktování mé osoby. Osobní údaje bude správce zpracovávat manuálně i automaticky přímo prostřednictvím svých zaměstnanců. Informace předané tímto formulářem budou uloženy v databázi správce maximálně po dobu 10 let. Odvolání souhlasu s uložením a zpracováním poskytnutých dat lze e-mailem na info@origo-reality.cz. V případě podezření na neoprávněné použití Vámi poskytnutých údajů máte právo předat podnět k šetření Úřadu pro ochranu osobních údajů. Více informací
Chystáte se prodat nemovitost?
Pomůžeme Vám!

Přihlášení k odběru

Nenechte si ujít nejnovější nabídky pronájmu bytů 3+1 v Brně.