Pronájem kanceláře, Praha - Nové Město, Krakovská, 115 m2

Krakovská, Praha, Nové Město

33 795 Kč
/za měsíc
Získejte výhodnou HYPOTÉKU Chci hypotéku

Parametry nemovitosti

AdresaKrakovská, Praha, Nové Město
StavbaCihlová
Stav objektuDobrý
Patro1. z 6
VybavenoNe
Lokalita objektuKlidná část obce
Užitná plocha115 m2
Třída energetické náročnostiE - Nehospodárná
Elektřina230V
PlynIndividuální
OdpadVeřejná kanalizace
KomunikaceAsfaltová
TelekomunikaceInternet
DopravaVlak, Silnice, MHD
VodaVodovod
Topné tělesoRadiátory
Zdroj topeníPlynový kotel
Zdroj teplé vodyPrůtokový ohřívač
Garáž
Výtah
Bezbarierový přístup
Parkování

Origo partneři v Praze 1

Stěhovací služby

Výkup a prodej starého nábytku

Pojištění a finance

Popis

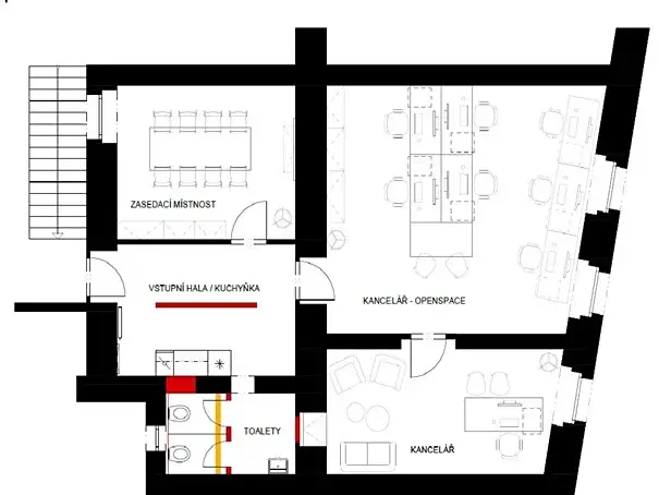
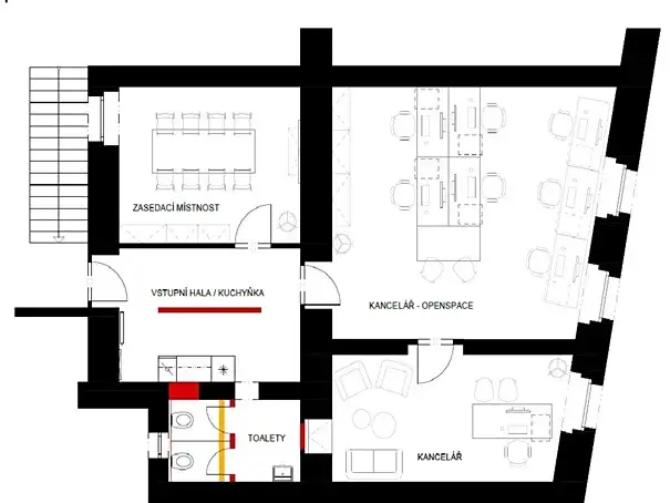
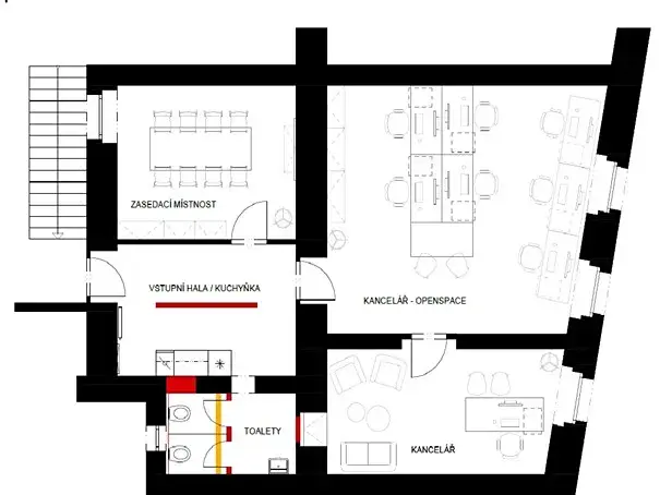
KANCELÁŘE K PRONÁJMU - 115 m2

!! NEPLATÍTE PROVIZI !!
Firma Real Top s.r.o., která je přímým majitelem a správcem objektu, nabízí k pronájmu kancelářské prostory v administrativní budově BUSINESS RESIDENCE v Krakovské ulici.
Objekt se nachází v blízkosti Václavského náměstí, 300 m od stanice metra Muzeum, I. P. Pavlova. K dispozici je 24 hodinová ostraha, výtah, možnost parkování v zakladači.
Nabízíme k pronájmu jednotku po celkové rekonstrukci o výměře 115m2 (vstupní hala s přípojkami na kuchyňku, 3 kanceláře, sociální zázemí) umístěná ve 2NP.
Cena nájmu 295,-Kč/m2, provozní náklady 105 Kč/m2, topné náklady 20 Kč/m2.
Elektrická energie hrazena PŘÍMO DLE SPOTŘEBY NÁJEMCE (měřiče)

k nastěhování IHNED

Makléř

Máte zájem o tuto nemovistost?

Tímto, v souladu s nařízením Evropského parlamentu a Rady (EU) 2016/679, v platném znění, prohlašuji, že mi je alespoň 16 let a uděluji tak svůj souhlas se zpracováním zadaných údajů (jméno, telefon, e-mail, ip adresa) společnosti B3 Technology, s.r.o., IČ: 07330600, se sídlem Novostavby 126/23, 435 11 Lom (správce dat), za účelem předání dotazu z tohoto formuláře Vámi vybranému inzerentovi a zpětného kontaktování mé osoby. Osobní údaje bude správce zpracovávat manuálně i automaticky přímo prostřednictvím svých zaměstnanců. Informace předané tímto formulářem budou uloženy v databázi správce maximálně po dobu 10 let. Odvolání souhlasu s uložením a zpracováním poskytnutých dat lze e-mailem na info@origo-reality.cz. V případě podezření na neoprávněné použití Vámi poskytnutých údajů máte právo předat podnět k šetření Úřadu pro ochranu osobních údajů. Více informací
Chystáte se prodat nemovitost?
Pomůžeme Vám!
Theleadway banner