Prodej rodinného domu, Pašinka, 153 m2

Pašinka

8 200 000 Kč
/za nemovitost
včetně provize, včetně právního servisu
Hypotéka od 36 649 Kč /měs. Chci hypotéku

Parametry domu

AdresaPašinka
ID00224
StavbaCihlová
Stav objektuVelmi dobrý
VybavenoAno
Druh objektuRohový
Lokalita objektuKlidná část obce
Užitná plocha153 m2
Plocha pozemku272 m2
Třída energetické náročnostiG - Mimořádně nehospodárná
Elektřina400V
OdpadVeřejná kanalizace
TelekomunikaceInternet, Kabelová televize
DopravaSilnice, Autobus
VodaVodovod
Topné tělesoRadiátory
Zdroj topeníElektrokotel
Zdroj teplé vodyBojler - elektro
Garáž
Sklep
Výtah
Parkování

Origo partneři v Pašince

Pojištění a finance

Popis

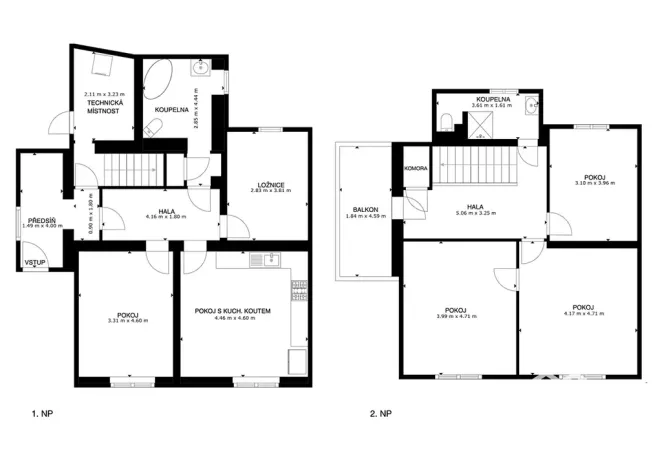
Nabízíme Vám ke koupi prostorný rodinný dům v klidné části obce Pašinka, okres Kolín ve Středočeském kraji. Leží asi čtyři kilometry jihozápadně od Kolína, kde je veškerá občanská vybavenost. Dům má celkem dvě nadzemní podlaží: přízemí a první patro. Dispozice v přízemí domu: předsíň, hala, tři samostatné pokoje s kuchyní, pokoje jsou neprůchozí, prostorná koupelna s vanou, dohromady s toaletou, technická místnost. Dispozice prvního patra: hala, celkem tři pokoje, v jednom pokoji vše připraveno na kuchyňský kout. Dále koupelna se sprchovým koutem, dohromady s toaletou, komora - úložný prostor, z kterého se vchází do půdního prostoru, (Připravené k půdní vestavbě). V roce 2025 se dělalo zateplení pěnou 40 cm, také výměna střešní krytiny + fotovoltaika, na ohřev vody (celkem pět panelů) a balkón. Obě dvě bytové jednotky mají samostatný vchod s dispozicí 3kk, vlastní zdroj vytápění, samostatný elektroměr, vodoměr je společný. Tento dům prošel průběžně rekonstrukcí. Nabízí se tedy možnost investice a následného pronájmu, nebo společného bydlení, pro dvě generace a přitom bude mít každá své soukromí. Popřípadě je dům vhodný pro větší rodinu. (Bytové jednotky jsou mezi sebou odděleny průchozí chodbou, kde jsou dveře). Do domu je přivedena obecní voda a kanalizace. Náleží k němu sklep, garáž a parkovat lze také přímo před domem, dvě auta. V prezentaci je k dispozice půdorys domu a také virtuální prohlídka domu. Veškerá občanská vybavenost v blízkém Kolíně, zastávka MHD téměř u domu.
Přímo v obci Pašinka se nachází restaurace, obecní knihovna, zámek, obchod.
Průkaz energetické náročnosti budovy prozatím není vyhotoven, proto uvádíme dle zákona třídu G

Pro více informací či domluvení prohlídky mě neváhejte kontaktovat.
Budu se těšit na setkání s Vámi.

Makléř

Máte zájem o tento dům?

Tímto, v souladu s nařízením Evropského parlamentu a Rady (EU) 2016/679, v platném znění, prohlašuji, že mi je alespoň 16 let a uděluji tak svůj souhlas se zpracováním zadaných údajů (jméno, telefon, e-mail, ip adresa) společnosti B3 Technology, s.r.o., IČ: 07330600, se sídlem Novostavby 126/23, 435 11 Lom (správce dat), za účelem předání dotazu z tohoto formuláře Vámi vybranému inzerentovi a zpětného kontaktování mé osoby. Osobní údaje bude správce zpracovávat manuálně i automaticky přímo prostřednictvím svých zaměstnanců. Informace předané tímto formulářem budou uloženy v databázi správce maximálně po dobu 10 let. Odvolání souhlasu s uložením a zpracováním poskytnutých dat lze e-mailem na info@origo-reality.cz. V případě podezření na neoprávněné použití Vámi poskytnutých údajů máte právo předat podnět k šetření Úřadu pro ochranu osobních údajů. Více informací
Chystáte se prodat nemovitost?
Pomůžeme Vám!
Theleadway banner

Přihlášení k odběru

Nenechte si ujít nejnovější nabídky prodeje rodinných domů v Pašince.