Prodej rodinného domu, Rohatec, Revoluční, 358 m2 (ID: 2016909)

Revoluční, Rohatec

6 600 000 Kč
/za nemovitost
Hypotéka od 29 498 Kč /měs. Chci hypotéku

Parametry domu

AdresaRevoluční, Rohatec
ID933492
StavbaSmíšená
Stav objektuPřed rekonstrukcí
VybavenoNe
Druh objektuŘadový
Lokalita objektuKlidná část obce
VlastnictvíOsobní
Užitná plocha358 m2
Plocha pozemku563 m2

Origo partneři v Rohatci

Pojištění a finance

Popis

Nabízíme k prodeji řadový rodinný dům v klidné části obce Rohatec. Dům je vhodný pro velkou rodinu nebo jako investiční příležitost.
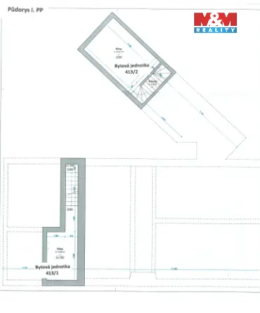
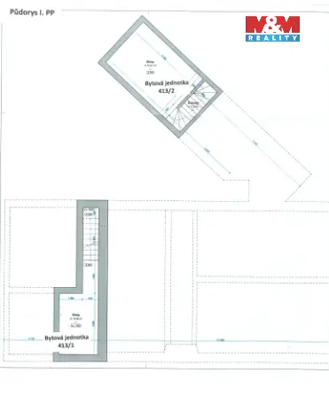
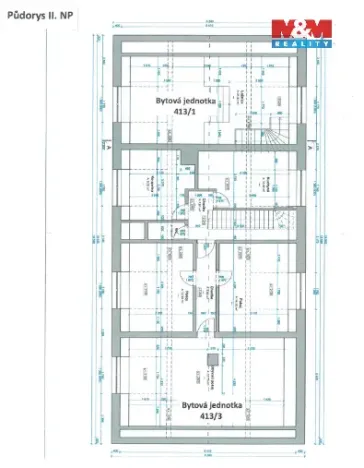
Dvoupodlažní objekt smíšené konstrukce s užitnou plochou 358 m² nabízí tři bytové jednotky a celkem 14 místností – ideální pro vícegenerační bydlení, sídlo firmy nebo investici.
V domě se nacházejí tři zkolaudované bytové jednotky:
- byt 2+1 o rozloze 81,3 m²,
- byt 3+2 o rozloze 124,4 m²,
- byt 3+1 o rozloze 92,9 m².
Dům je ve stavu před rekonstrukcí a poskytuje široký prostor pro modernizaci podle vlastních představ. Pozemek má výměru 563 m².
Nemovitost se nachází v klidném okolí s dobrou dostupností občanské vybavenosti. Obec Rohatec leží v blízkosti Hodonína a najdete zde mateřskou i základní školu, obchody i lékařskou péči.
Pro více informací a sjednání termínu prohlídky kontaktujte realitního makléře.

Makléř

Máte zájem o tento dům?

Tímto, v souladu s nařízením Evropského parlamentu a Rady (EU) 2016/679, v platném znění, prohlašuji, že mi je alespoň 16 let a uděluji tak svůj souhlas se zpracováním zadaných údajů (jméno, telefon, e-mail, ip adresa) společnosti B3 Technology, s.r.o., IČ: 07330600, se sídlem Novostavby 126/23, 435 11 Lom (správce dat), za účelem předání dotazu z tohoto formuláře Vámi vybranému inzerentovi a zpětného kontaktování mé osoby. Osobní údaje bude správce zpracovávat manuálně i automaticky přímo prostřednictvím svých zaměstnanců. Informace předané tímto formulářem budou uloženy v databázi správce maximálně po dobu 10 let. Odvolání souhlasu s uložením a zpracováním poskytnutých dat lze e-mailem na info@origo-reality.cz. V případě podezření na neoprávněné použití Vámi poskytnutých údajů máte právo předat podnět k šetření Úřadu pro ochranu osobních údajů. Více informací
Chystáte se prodat nemovitost?
Pomůžeme Vám!
Theleadway banner

Přihlášení k odběru

Nenechte si ujít nejnovější nabídky prodeje rodinných domů v Rohatci.