Prodej rodinného domu, Zlonice - Vyšínek, 130 m2 (ID: 2016537)

Zlonice, Vyšínek

8 490 000 Kč
/za nemovitost
Hypotéka od 37 945 Kč /měs. Chci hypotéku

Parametry domu

AdresaZlonice, Vyšínek
ID939020
StavbaCihlová
Stav objektuVelmi dobrý
VybavenoAno
Druh objektuSamostatný
Lokalita objektuKlidná část obce
VlastnictvíOsobní
Užitná plocha130 m2
Plocha pozemku640 m2

Origo partneři v Zlonicích

Popis

Hledáte klidné rodinné bydlení, kde má každý své místo a Praha zůstává na dosah? Tenhle dům vás zaujme hned při první návštěvě.

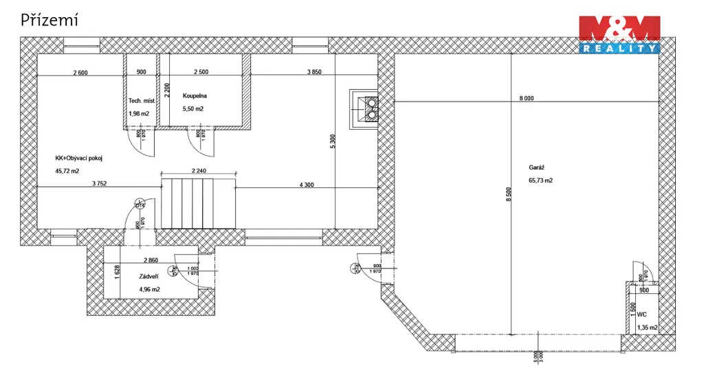
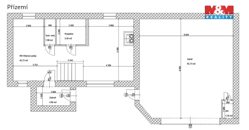
Rodinný dům z roku 2012 je promyšlený do posledního detailu a ideální pro pohodový rodinný život. V přízemí s podlahovým vytápěním naleznete plně vybavenou kuchyň s jídelnou, praktickou komoru, koupelnu s toaletou a světlý obývací pokoj s majestátným krbem. Interiér působí útulně díky kombinaci dřeva, bílé barvy a kamene.

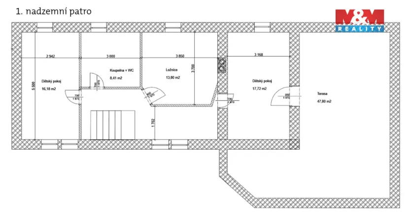
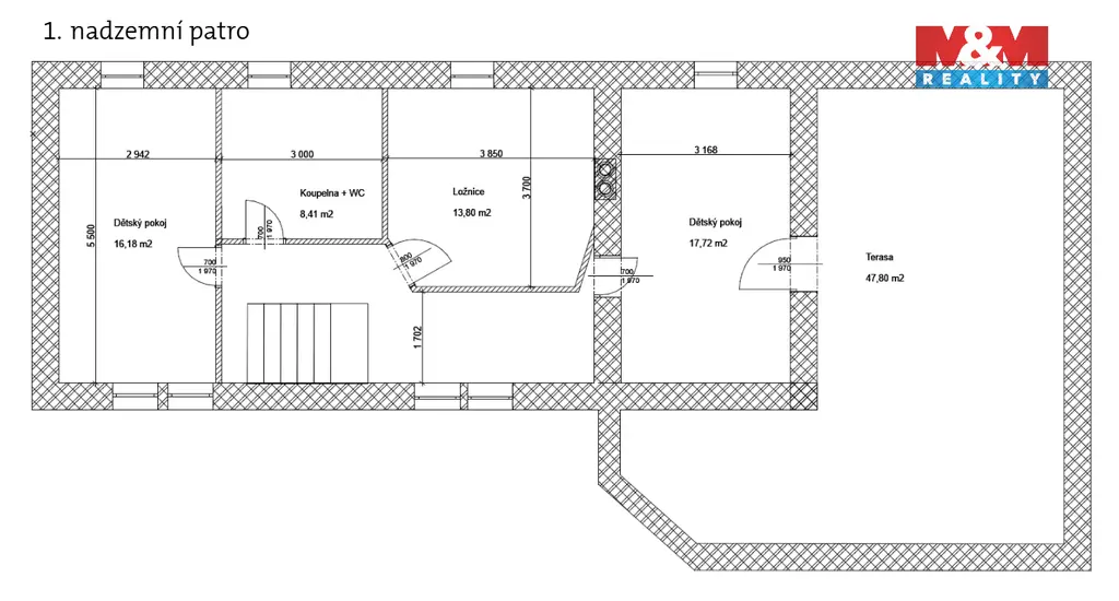
V patře najdete tři samostatné pokoje, druhou koupelnu a terasu s výhledem na okolní krajinu.
Na dům navazuje velká dvougaráž s pneumatickým heverem, která dříve sloužila jako pneuservis a nabízí tak široké možnosti využití i pro podnikání.
Na oploceném pozemku je posezení pod pergolou, nadzemní bazén a komfort zajišťuje dálkově ovládaná pojezdová brána.

Lokalita Zlonice - Vyšínek nabízí přesně to, co rodiny hledají – klid, bezpečí, přírodu a zároveň rozumnou dojezdovou vzdálenost do Prahy, dostupnost škol, školek i základní infrastruktury

Makléř

Máte zájem o tento dům?

Tímto, v souladu s nařízením Evropského parlamentu a Rady (EU) 2016/679, v platném znění, prohlašuji, že mi je alespoň 16 let a uděluji tak svůj souhlas se zpracováním zadaných údajů (jméno, telefon, e-mail, ip adresa) společnosti B3 Technology, s.r.o., IČ: 07330600, se sídlem Novostavby 126/23, 435 11 Lom (správce dat), za účelem předání dotazu z tohoto formuláře Vámi vybranému inzerentovi a zpětného kontaktování mé osoby. Osobní údaje bude správce zpracovávat manuálně i automaticky přímo prostřednictvím svých zaměstnanců. Informace předané tímto formulářem budou uloženy v databázi správce maximálně po dobu 10 let. Odvolání souhlasu s uložením a zpracováním poskytnutých dat lze e-mailem na info@origo-reality.cz. V případě podezření na neoprávněné použití Vámi poskytnutých údajů máte právo předat podnět k šetření Úřadu pro ochranu osobních údajů. Více informací
Chystáte se prodat nemovitost?
Pomůžeme Vám!

Přihlášení k odběru

Nenechte si ujít nejnovější nabídky prodeje rodinných domů v Zlonicích.