Prodej obchodního prostoru, Bošice, 99 m2

Bošice

1 850 000 Kč
/za nemovitost
Hypotéka od 8 268 Kč /měs. Chci hypotéku

Parametry nemovitosti

AdresaBošice
ID44009
StavbaCihlová
Stav objektuDobrý
VybavenoČástečně
Typ objektuPřízemní
Lokalita objektuCentrum obce
Užitná plocha99 m2
Zastavěná plocha139 m2
Podlahová plocha316 m2
Plocha zahrady177 m2
Třída energetické náročnostiG - Mimořádně nehospodárná
Elektřina230V, 400V
OdpadSeptik
KomunikaceAsfaltová
DopravaSilnice, Autobus
VodaVodovod
Převod do OV
Parkování

Origo partneři v Bošicích

Výkup a prodej starého nábytku

Popis

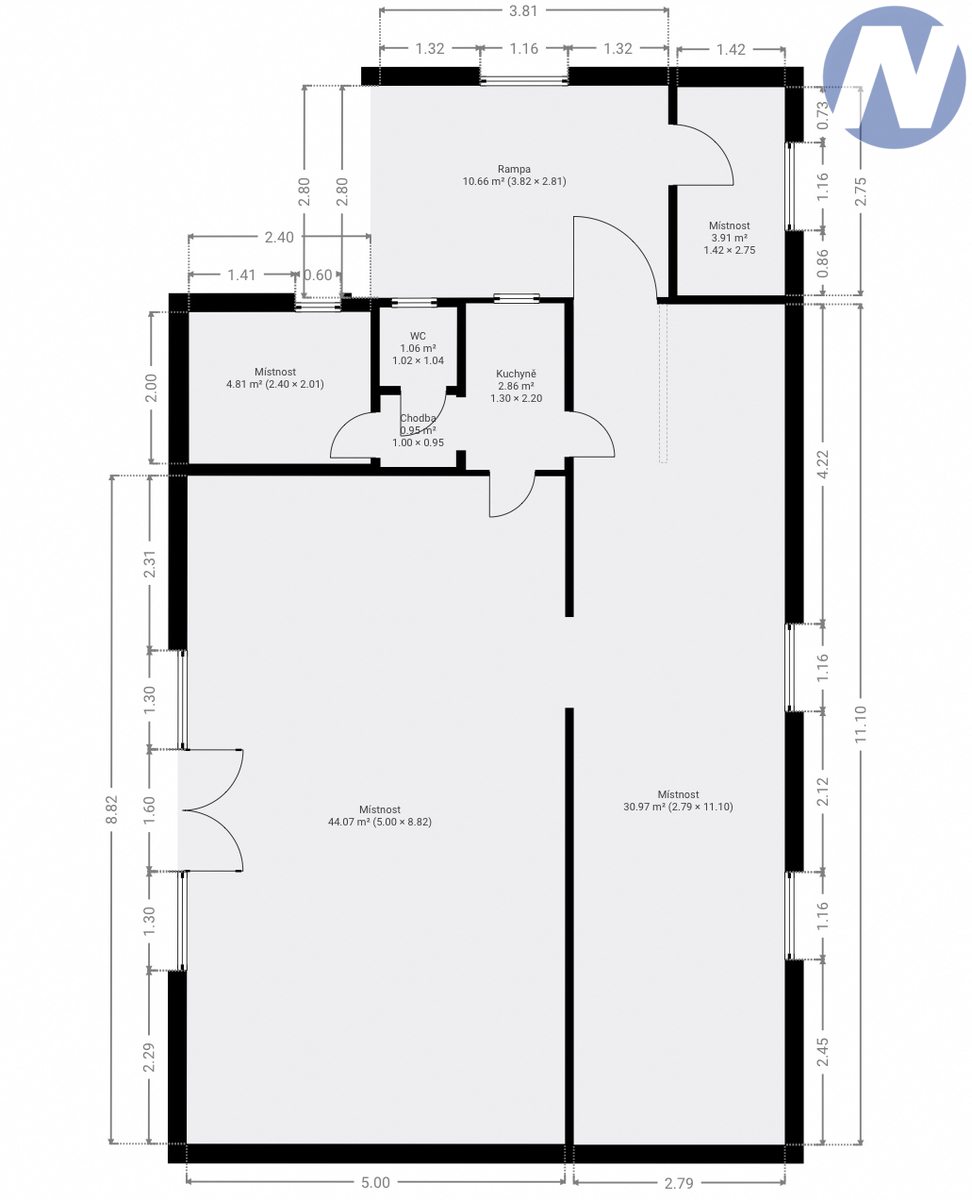
Nabízím prodej stavby občanské vybavenosti v obci Bošice. Jde o zděnou přízemní budovu z roku 1977 o podlahové ploše 99 m2 a zatravněný pozemek o výměře 177 m2. Dle územního plánu oba pozemky leží v oblasti zastavěné, SV - smíšené obytné venkovské. Tudíž je možné objekt předělat a rekolaudovat na objekt určený k bydlení. Budova je připojena na obecní vodovod a elektřinu. Odpad je sveden do vlastního biologického septiku (3m3) umístěném na vlastním pozemku. Objekt je vytápěn kotlem na tuhá paliva. Střešní krytina je plech, přes který je IPA. Okna jsou dřevěná původní. Stavba sloužila jako prodejna potravin, nyní jako dílna. Část stavby tvoří rampa a dlážděná plocha před domem. Celý objekt je oplocený. V domě je kuchyňka, WC, dále sklad, hlavní místnost a sklad za rampou. Strop je pevný (železobeton). Nejbližší občanská vybavenost je ve 4 km vzdálené Čkyni. V obci Bošice je obchod s potravinami a pohostinství. Více informací u makléřky.

Makléř

Máte zájem o tuto nemovistost?

Tímto, v souladu s nařízením Evropského parlamentu a Rady (EU) 2016/679, v platném znění, prohlašuji, že mi je alespoň 16 let a uděluji tak svůj souhlas se zpracováním zadaných údajů (jméno, telefon, e-mail, ip adresa) společnosti B3 Technology, s.r.o., IČ: 07330600, se sídlem Novostavby 126/23, 435 11 Lom (správce dat), za účelem předání dotazu z tohoto formuláře Vámi vybranému inzerentovi a zpětného kontaktování mé osoby. Osobní údaje bude správce zpracovávat manuálně i automaticky přímo prostřednictvím svých zaměstnanců. Informace předané tímto formulářem budou uloženy v databázi správce maximálně po dobu 10 let. Odvolání souhlasu s uložením a zpracováním poskytnutých dat lze e-mailem na info@origo-reality.cz. V případě podezření na neoprávněné použití Vámi poskytnutých údajů máte právo předat podnět k šetření Úřadu pro ochranu osobních údajů. Více informací
Chystáte se prodat nemovitost?
Pomůžeme Vám!

Přihlášení k odběru

Nenechte si ujít nejnovější nabídky prodeje obchodních prostor v Bošicích.