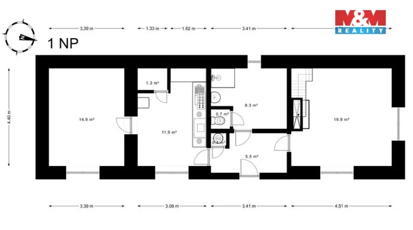
Prodej rodinného domu, Dvory, 89 m2

Dvory

4 195 000 Kč
/za nemovitost
Hypotéka od 18 749 Kč /měs. Chci hypotéku

Parametry domu

AdresaDvory
ID938627
StavbaSmíšená
Stav objektuDobrý
VybavenoAno
Druh objektuSamostatný
Lokalita objektuKlidná část obce
VlastnictvíOsobní
Užitná plocha89 m2
Plocha pozemku590 m2

Origo partneři v Dvorech

Popis

Hledáte místo, kde si vytvoříte domov přesně podle svých představ? Nabízíme k prodeji dům (chalupu) v obci Dvory u Nymburka o dispozici 3+1, který čeká na citlivou rekonstrukci a nový život. Dům je napojen na vodovod i kanalizaci, navíc je k dispozici vlastní studna. Na pozemku najdete kůlnu, dílnu i přístřešek s posezením, ideální pro letní večery. Zahrada nabízí příjemné soukromí a prostor pro relaxaci i realizaci vašich nápadů. Rohová poloha v klidné části obce zaručuje pohodu a minimum ruchu. Velkým benefitem je také základní a mateřská škola přímo v místě. Ideální kombinace klidu venkova a dostupnosti služeb.

Makléř

Máte zájem o tento dům?

Tímto, v souladu s nařízením Evropského parlamentu a Rady (EU) 2016/679, v platném znění, prohlašuji, že mi je alespoň 16 let a uděluji tak svůj souhlas se zpracováním zadaných údajů (jméno, telefon, e-mail, ip adresa) společnosti B3 Technology, s.r.o., IČ: 07330600, se sídlem Novostavby 126/23, 435 11 Lom (správce dat), za účelem předání dotazu z tohoto formuláře Vámi vybranému inzerentovi a zpětného kontaktování mé osoby. Osobní údaje bude správce zpracovávat manuálně i automaticky přímo prostřednictvím svých zaměstnanců. Informace předané tímto formulářem budou uloženy v databázi správce maximálně po dobu 10 let. Odvolání souhlasu s uložením a zpracováním poskytnutých dat lze e-mailem na info@origo-reality.cz. V případě podezření na neoprávněné použití Vámi poskytnutých údajů máte právo předat podnět k šetření Úřadu pro ochranu osobních údajů. Více informací
Chystáte se prodat nemovitost?
Pomůžeme Vám!

Přihlášení k odběru

Nenechte si ujít nejnovější nabídky prodeje rodinných domů v Dvorech (okr. Nymburk).