Pronájem kanceláře, Brno, Cejl, 21 m2 (ID: 2015667)

Cejl, Brno

6 670 Kč
/za měsíc
cena včetně energií a služeb, + DPH
Získejte výhodnou HYPOTÉKU Chci hypotéku

Parametry nemovitosti

AdresaCejl, Brno
IDSR513
StavbaSkeletová
Stav objektuDobrý
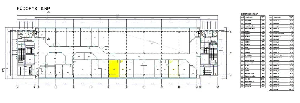
Patro6.
VybavenoNe
Lokalita objektuRušná část obce
Užitná plocha21 m2
Třída energetické náročnostiG - Mimořádně nehospodárná
Elektřina230V
TelekomunikaceInternet
DopravaMHD
Výtah
Bezbarierový přístup
Parkování

Origo partneři v Brně

Popis

Nabízíme k pronájmu kancelářské prostory o velikosti 21 m2 v 6.NP komerčního objektu na ulici Cejl. Kancelář má velká plastová okna orientovaná na východ. Prostory jsou ve standardním stavu, na podlaze je koberec.
V objektu jsou 4 osobní a jeden nákladní výtah. Sociální zázemí je na patře společné pro ostatní kanceláře.
Objekt se nachází v uzavřením a hlídaném areálu, přístupném 24 hod/7 dní týdnu.
Parkování je možné v areálu za poplatek.
Prostor je vhodný pro obchodní firmu, e-shop, ateliér a ev. podobnou firmu.


Pro více informací nebo sjednání prohlídky je Vám k dispozici realitní makléřka.


Cena:
- Nájemné, topení, vodné, stočné, služby areálu – 6.670,-Kč/ měs.
- Jistota - 2 x měsíční nájemné
- Parkovací karta pro nájemce - 1.500,-Kč/ měs.
- Uvedené ceny jsou bez DPH
- Provize za služby realitního zprostředkovatele

Makléř

Máte zájem o tuto nemovistost?

Tímto, v souladu s nařízením Evropského parlamentu a Rady (EU) 2016/679, v platném znění, prohlašuji, že mi je alespoň 16 let a uděluji tak svůj souhlas se zpracováním zadaných údajů (jméno, telefon, e-mail, ip adresa) společnosti B3 Technology, s.r.o., IČ: 07330600, se sídlem Novostavby 126/23, 435 11 Lom (správce dat), za účelem předání dotazu z tohoto formuláře Vámi vybranému inzerentovi a zpětného kontaktování mé osoby. Osobní údaje bude správce zpracovávat manuálně i automaticky přímo prostřednictvím svých zaměstnanců. Informace předané tímto formulářem budou uloženy v databázi správce maximálně po dobu 10 let. Odvolání souhlasu s uložením a zpracováním poskytnutých dat lze e-mailem na info@origo-reality.cz. V případě podezření na neoprávněné použití Vámi poskytnutých údajů máte právo předat podnět k šetření Úřadu pro ochranu osobních údajů. Více informací
Chystáte se prodat nemovitost?
Pomůžeme Vám!

Přihlášení k odběru

Nenechte si ujít nejnovější nabídky pronájmu kanceláří v Brně.